Sustainable Architecture in Bangkok: A Spotlight on Khlongsan Studio Office
Exploring Khlongsan Studio Office, a sustainable architecture project in Bangkok blending vernacular design, practicality, and eco-conscious innovation.
Bangkok, a city known for its dynamic urban landscape, has become a hub for architectural innovation. Among the gems of sustainable design is the Khlongsan Studio Office, designed by Everyday Architects & Design Studio. This project exemplifies how architects can transform traditional spaces into modern, eco-conscious work environments while preserving cultural identity.
In this article, we explore the design principles and unique features of the Khlongsan Studio Office, demonstrating how it sets a benchmark for sustainable architecture in Bangkok.


The Vision Behind Khlongsan Studio Office
Everyday Architects & Design Studio: A Background
Founded by Chatchavan Suwansawat in 2020, Everyday Architects & Design Studio operates as an architectural laboratory. Nestled in a humble shophouse in Bangkok's Old Town community, the studio draws inspiration from the vibrant vernacular elements of the city.
Chatchavan’s essays, compiled in the book Architect-ure (literally “Architect Found”), invite readers to recognize and appreciate the often-overlooked features of Thai architecture. These observations heavily influenced the design of the studio.


Key Features of Khlongsan Studio Office
1. Economical Design on a Budget
The renovation of the Khlongsan Studio Office was guided by practicality and frugality. The design preserved much of the existing structure while integrating functional and aesthetic improvements.
- Reuse of Materials:The old wooden staircase and steel grille partitions were retained, minimizing waste and construction costs.
- DIY Innovations:Items like PVC pipes were repurposed for furniture and decor, reflecting Bangkok's creative street culture.

2. Integration of Vernacular Elements
Bangkok’s urban fabric influenced the studio’s design. Everyday materials and features commonly seen in the city were incorporated, including:
- Steel Grilles and Canvas Awnings:These elements were used to enhance security, protect from the elements, and maintain privacy.
- Blue Door Stretch and Pot Garden:Aesthetic and functional, these additions shield the workspace from sunlight while contributing to neighborhood charm.

3. Sustainability in Small Spaces
With a floor area of just 20 square meters, the Khlongsan Studio Office demonstrates how sustainable principles can thrive in compact urban settings.
- Energy Efficiency:Clear glass panels added to steel grille partitions improve insulation, reducing energy consumption for air conditioning.
- Green Spaces:A small pot garden at the entrance introduces greenery into the bustling urban environment.

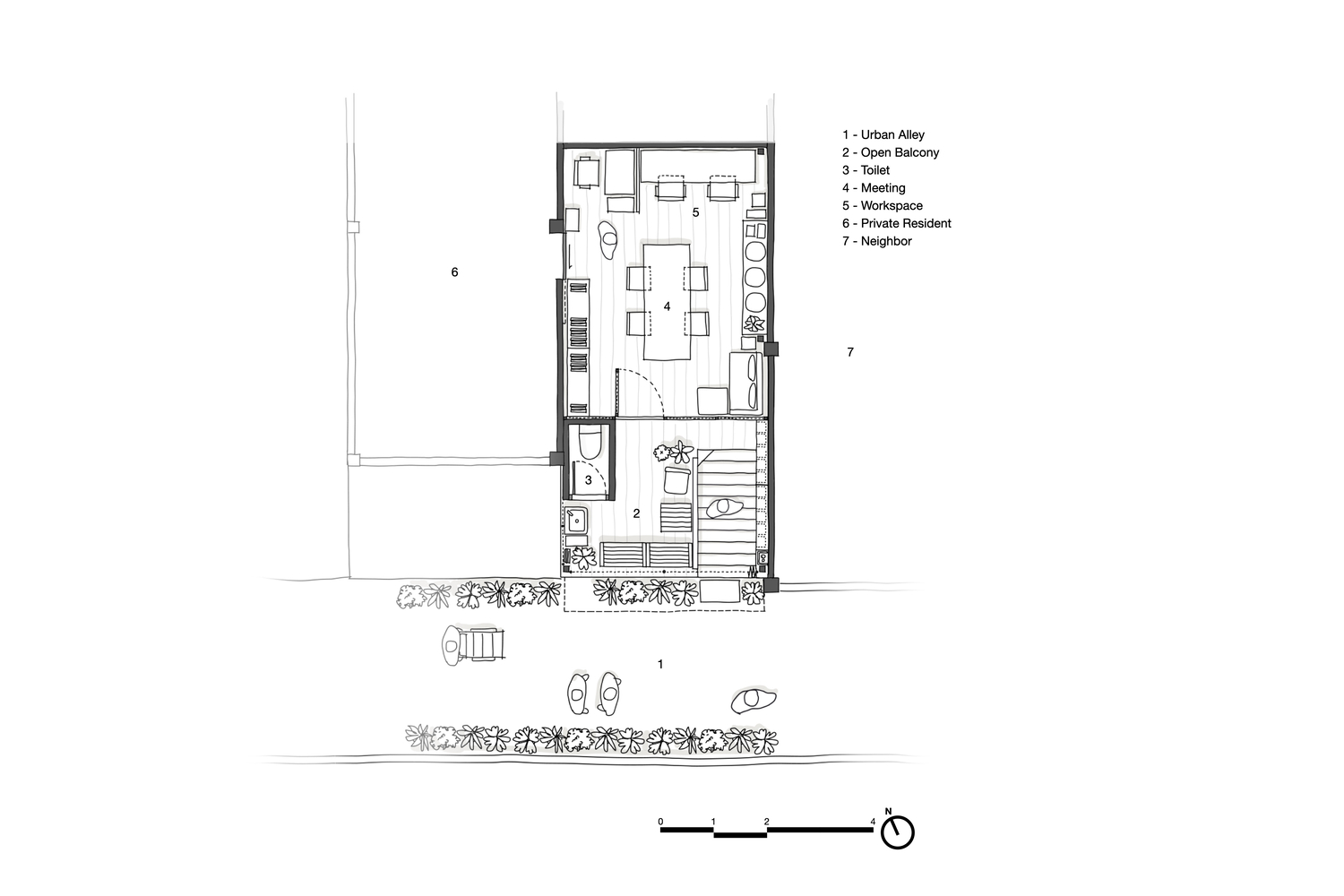
Design Layout and Functionality
Exterior Features
The studio’s exterior embodies a harmonious blend of functionality and aesthetics. A bright green steel grille balcony provides a welcoming area for guests, while a simple canvas awning offers protection from rain.
Interior Layout
The second-floor workspace embraces an open-plan design with minimal partitions:
- Meeting and Workspace:An old wooden dining table serves as a meeting table, complemented by repurposed wooden shelves and simple DIY furniture.
- Lighting:Track lighting, seamlessly integrated from the balcony, adds a sophisticated touch to the otherwise modest design.


Addressing Urban Challenges Through Design
The Khlongsan Studio Office reflects solutions to pressing urban issues in Bangkok, such as:
- Overcrowding and Crime:Secure steel doors and grilles enhance safety.
- Pedestrian-Friendly Design:Incorporating features like pot gardens contributes to a more pleasant street environment.
These elements demonstrate how architecture can address urban challenges while promoting sustainability.


Why Khlongsan Studio Office Matters
A Model for Sustainable Architecture
The Khlongsan Studio Office exemplifies sustainable design through its:
- Minimal Environmental Impact:The reuse of existing materials and small-scale modifications highlight resource efficiency.
- Cultural Relevance:The design celebrates Bangkok’s vernacular identity, setting a standard for culturally respectful architecture.
Inspiration for Future Projects
As Bangkok continues to grow, projects like the Khlongsan Studio Office offer a roadmap for balancing modernization with sustainability. Architects and designers can draw inspiration from this project to create spaces that align with both urban needs and environmental priorities.
The Khlongsan Studio Office by Everyday Architects & Design Studio is more than just an office—it’s a testament to the potential of sustainable architecture in Bangkok. By seamlessly blending practicality, cultural relevance, and environmental consciousness, this project serves as a beacon for future urban developments in the city.
As sustainable architecture continues to evolve, the Khlongsan Studio Office reminds us that innovation often lies in simplicity and respect for the local context.


All the photographs are work of Ohm Anawat