Sustainable Campus Architecture: California College of the Arts by Studio Gang
Studio Gang’s sustainable campus architecture for CCA fosters creativity and collaboration while reducing environmental impact in San Francisco.
Redefining Learning Spaces with Sustainability and Creativity
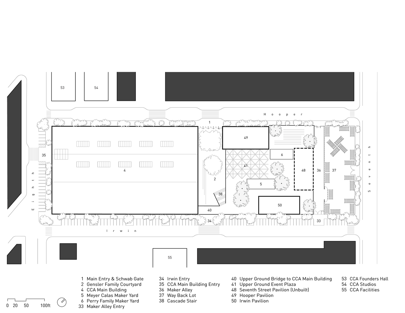
The California College of the Arts (CCA) in San Francisco, designed by Studio Gang, represents an innovative approach to sustainable campus architecture. By blending indoor-outdoor spaces with cutting-edge green design, this 82,305-square-foot addition fosters collaboration, creativity, and sustainability. Led by Jeanne Gang, the project reflects CCA's mission to merge diverse art disciplines while reducing environmental impact.



Historical Context: CCA's Evolution in Design Education
Founded during the Arts and Crafts movement, CCA has evolved into a hub for 34 art and design disciplines, ranging from ceramics to architecture. The expansion builds upon this legacy by creating a vibrant ecosystem that encourages interdisciplinary connections and collaboration among students and faculty.


Architectural Design: A Creative Ecosystem
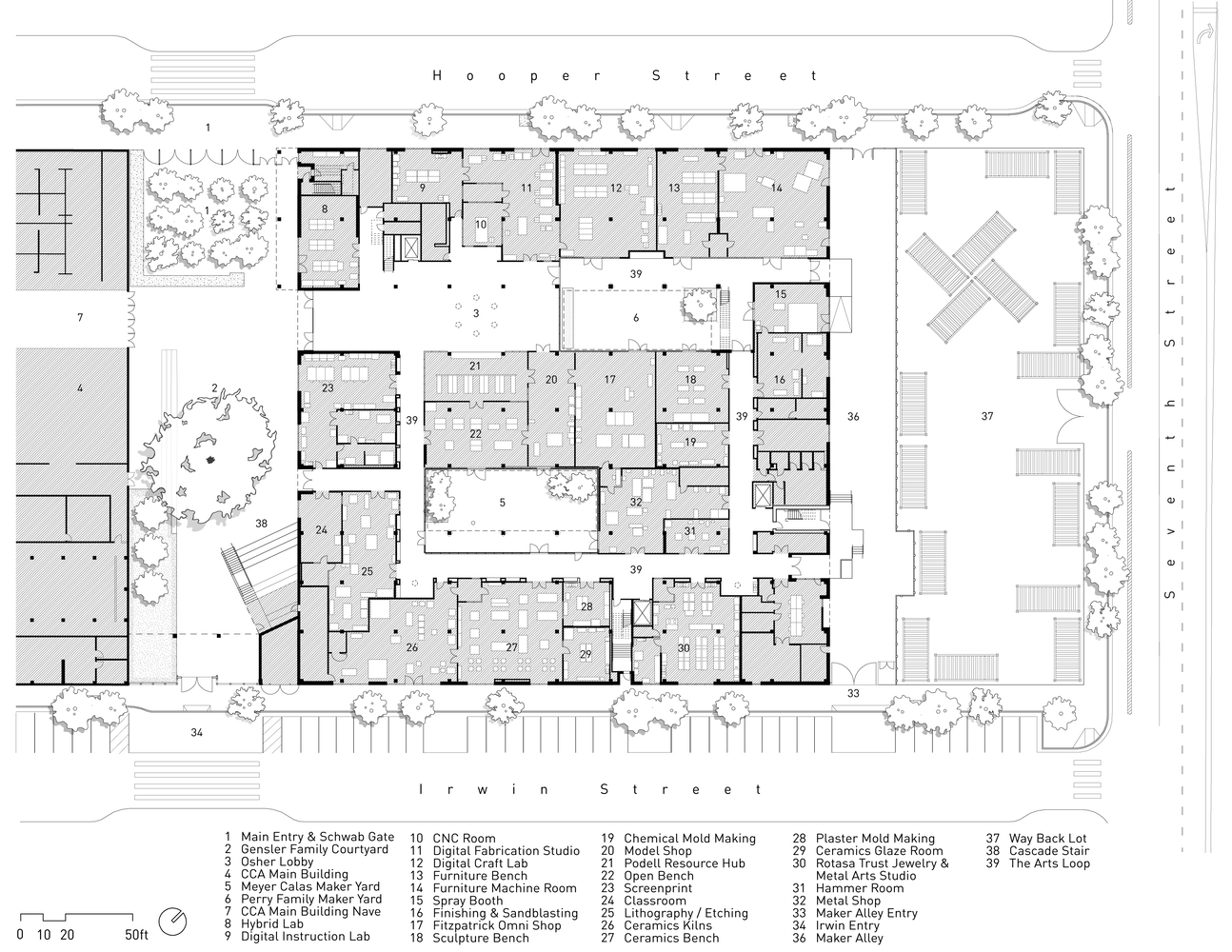
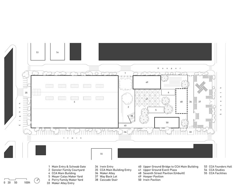
Ground-Level Design: A Hub for Making
The concrete ground level serves as the heart of physically intensive practices like large-scale fabrication and workshops. Its open-plan layout, organized around shared materials and equipment, promotes visibility and interaction among different programs. Two maker yards carved into this level bring in fresh air and natural light, enhancing the creative environment.



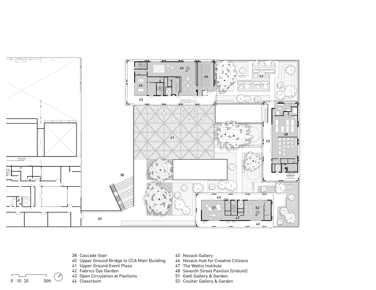
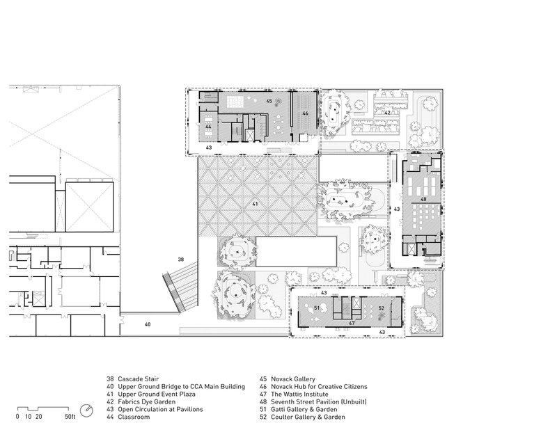
Mass Timber Pavilions: Sustainable and Functional
Above the concrete base, two mass timber pavilions house classrooms, studios, and the Wattis Institute for Contemporary Arts. These pavilions feature exposed timber structures, showcasing sustainability and innovation. Their terraced green landscape connects the building’s levels, offering outdoor circulation, informal learning spaces, and panoramic views.



Sustainability at the Core
Embodied Carbon Reduction
The hybrid mass timber structure reduces the building’s embodied carbon footprint by nearly half compared to traditional designs. Minimal finishes further contribute to lowering environmental impact.


Passive Design Strategies
The design incorporates self-shading façades, night-flush ventilation, and strategically placed structural loads to minimize energy consumption. These features naturally cool the building and adapt to future technologies.


Closed-Loop Vision
Infrastructure is in place for a net-positive, closed-loop system, aligning with CCA’s long-term sustainability goals.


Enhancing Community Connection
Studio Gang’s design strengthens CCA’s role within San Francisco’s design and innovation district. The streetscape welcomes the wider community, while the integration of outdoor and indoor spaces invites interaction between students, faculty, and visitors.




The Future of Art and Design Education
This expansion reflects Studio Gang's philosophy of shaping environments that inspire collaboration and innovation. Jeanne Gang’s vision for the California College of the Arts sets a benchmark for sustainable campus architecture, blending design, sustainability, and education in an environment that inspires the next generation of creatives.



All Photographs are work of Jason O Rear