Sustainable Home Renovation UK: Woodbury House by Of Architecture
A sustainable renovation of an Edwardian home in Barnet blending modern living, accessibility, and heritage for aging-in-place architecture.
A Thoughtful Transformation of an Edwardian Home in Barnet
Located in Barnet, United Kingdom, Woodbury House by Of Architecture exemplifies a sophisticated balance between architectural heritage and modern sustainability. This 130-square-meter residence reimagines the Edwardian home for a new chapter in the life of its octogenarian resident, Kathryn. Rather than clinging to a past defined by memory-laden spaces, she embraced a forward-looking transformation rooted in meaning, care, and sustainable innovation.




The Architectural Inspiration Behind Woodbury House
Woodbury House draws its conceptual strength from decalcomania, the art of mirrored pattern-making through folded paint. This technique inspired the design not through literal mimicry but through a dialectic of contrast and dialogue—between past and present, between original structure and contemporary insertion.



Kathryn’s personal ethos played a significant role in shaping the project. She sought a modern environment that still preserved echoes of her life’s journey: her husband’s handcrafted rosewood table, a handwoven shawl, and heirloom Edwardian furniture all found their way into the new design. The architecture thus becomes a curatorial act, selectively bringing the past forward into a light-filled and efficient new reality.



Overcoming Design Challenges with Purpose
One of the core challenges faced in this sustainable home renovation in the UK was the need to preserve the character of the Edwardian structure while creating a highly efficient thermal envelope. The house had to meet modern sustainability standards without losing its soul.



Designing for aging in place also required attention to detail. Accessibility had to be integrated seamlessly without invoking an institutional feel. The steep natural site levels of the plot in Barnet posed yet another complexity, demanding creative architectural interventions to ensure spatial continuity and ease of movement.



Environmental Performance through Passivhaus Principles
Woodbury House achieves high-performance environmental standards through the application of Passivhaus principles. The architects crafted a continuous thermal envelope using mineral wool insulation and equipped the home with mechanical ventilation and heat recovery systems. An air-source heat pump and photovoltaic panels were installed to reduce carbon footprint and energy dependence, while the spatial plan allowed for natural cross-ventilation.



Sustainability also extended to materials. Handmade burgundy bricks from Cumbria resonate with the existing architecture. Terracotta tiles from a demolished music room were salvaged and reused. Original elm floorboards were transformed into bespoke kitchen cabinetry. A custom oak screen in the stairwell, honoring Kathryn’s husband—an ecclesiastical designer—functions as both a sculptural element and a symbolic thread linking past to present.


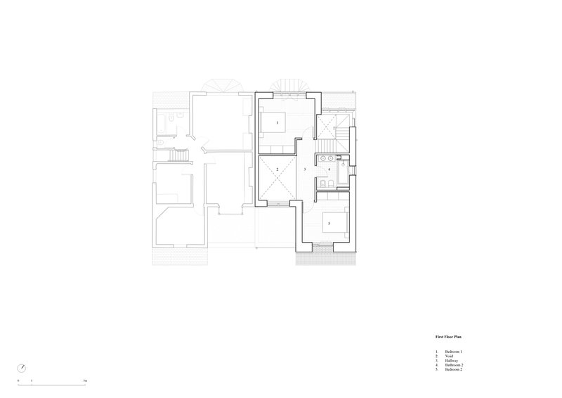
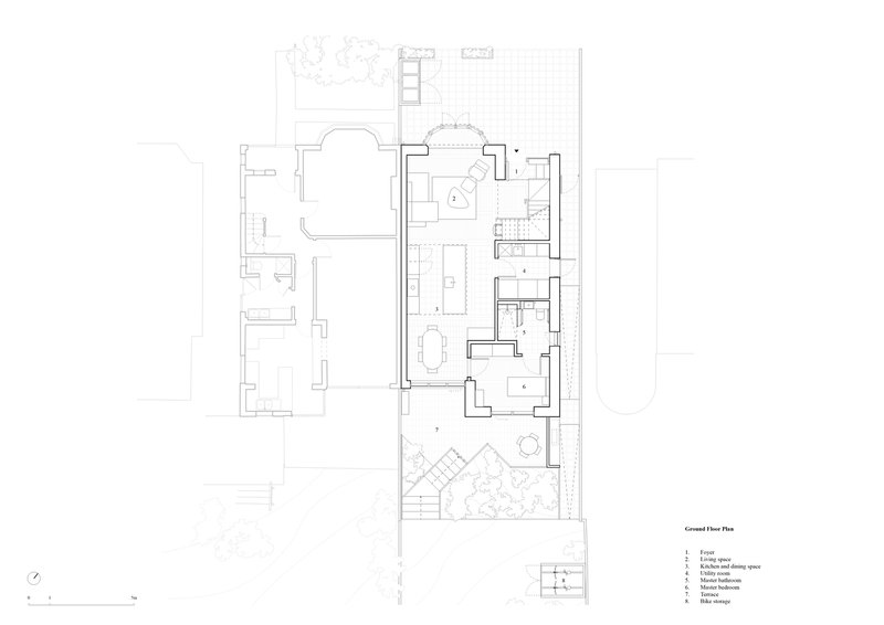
Spatial Strategy: Light, Accessibility, and Flow
The layout of Woodbury House reflects careful attention to both functionality and narrative. The ground floor adapts to the site’s topography, creating level access to essential living areas for Kathryn. The open plan enhances visual continuity and daylight penetration. The integration of a study nook beneath the stairs, subtly screened by the bespoke oak partition, speaks to the nuanced layering of private and public space.



The screen itself is emblematic of the entire renovation: a filter through which the old and new coexist, not in conflict but in gentle exchange. It divides and connects at once—just as the entire project balances memory with possibility.



A Home Designed for Aging Gracefully
This eco-conscious renovation in the UK offers more than upgraded insulation and solar power. It delivers an architecture of dignity. Woodbury House supports independent living without sacrificing aesthetic or environmental values. It proves that aging in place can be architecturally empowering and deeply personal.


The residence is a refined testament to how sustainability, accessibility, and emotional resonance can coexist in residential design. As Kathryn steps into her next chapter, Woodbury House becomes not just a shelter but a celebration of resilience, reinvention, and responsible design.

All Photographs are works of Lorenzo Zandri
Popular Articles
Popular articles from the community
Fifth NRE Jazz Club – De Bever Architecten: Eindhoven’s Revitalized Cultural Hub
Historic gas factory transformed into Fifth NRE Jazz Club blending modern sustainability, jazz culture, dining, and heritage architecture seamlessly.
Alton Cliff House: A Harmonious Retreat by f2a Architecture in Lake Country, Canada
Alton Cliff House blends corten steel, prefabrication, and sustainable design, creating a luxurious, energy-efficient retreat perched on Canadian cliffs.
Gads Hill Early Learning Center by JGMA: Adaptive Reuse Shaping Community-Focused Educational Architecture
Adaptive reuse transforms fragmented structure into vibrant early learning center with playful façade, natural light, and community-focused sustainable design.
Atelier Macri Concept Store Interior Design by CASE-REAL
Atelier Macri store features a "ko" counter, walnut wood details, cork displays, blending retail, gallery, and seamless customer experiences.
Similar Reads
You might also enjoy these articles
Bamboo Housing Challenge 2026: Design Affordable, Sustainable Homes Using Bamboo
An international design competition by Bamboo U and IBUKU inviting architects and designers to reimagine affordable housing using bamboo — with the winning design built full-scale in Bali.
Computational Design & Education: Beegraphy Design Awards Introduces 7th Category (Featuring Jiyun's Innovative Approach)
Dive into Beegraphy’s 7th Design Awards category, where computational design meets education to create immersive, interactive learning tools, inspired by Jiyun’s work.
From Parametric Lighting to Urban Furniture: Join the 2nd Workshop in Beegraphy’s Computational Design Series
Dive into Cutting-Edge Design Techniques and Practical Applications with Industry Experts
Explore Architecture Competitions
Discover active competitions in this discipline
The International Standard for Design Portfolios
The Global Benchmark for Architecture Dissertation Awards
The Global Benchmark for Graduation Excellence
Challenge to reimagine the Iron Throne
Comments (0)
Please login or sign up to add comments
No comments yet. Be the first to comment!