Sustainable Luxury Villas at The Forestias Six Senses Residences
The Six Senses Residences The Forestias in Thailand offer luxury villas with a focus on sustainability, wellness, and nature integration.
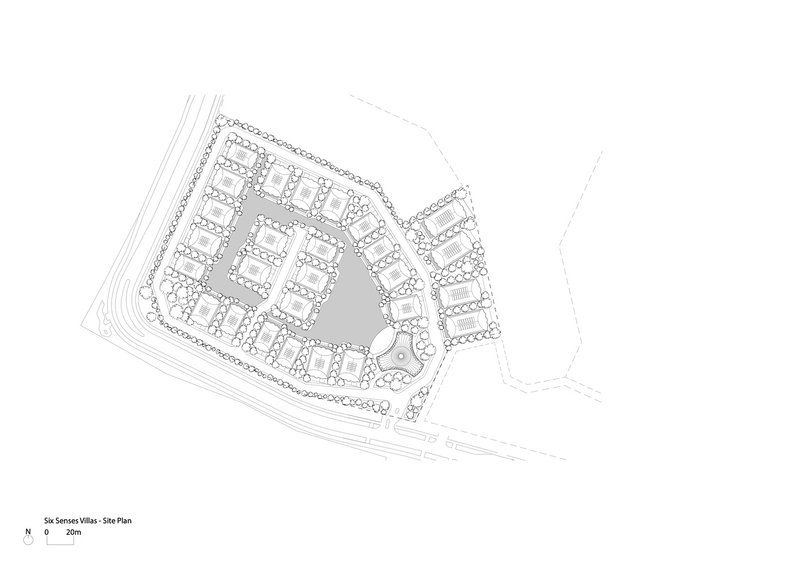
The Six Senses Residences The Forestias in Thailand offer a unique blend of luxury, sustainability, and well-being. Designed by Foster + Partners and DT Design, this high-end development is part of the larger The Forestias masterplan by Thailand’s MQDC. These villas, completed as the first phase of the development, are designed to provide a truly sustainable and wellness-driven living experience while respecting traditional Thai architecture. Integrated into nature, these residences offer an unparalleled lifestyle, combining luxury, environmental responsibility, and a strong sense of community.



Project Overview: A Green Oasis
The Vision Behind The Forestias Residences
The development is driven by a commitment to wellness and sustainability. The residences are designed to promote physical and emotional well-being while fostering a deep connection to nature. Sunphol Sorakul, a partner at Foster + Partners, described the Six Senses Residences as a private green haven. This location offers an idyllic living environment that blends seamlessly with the surrounding forest and lagoon, creating a harmonious balance between nature and architecture.



Architectural Design: Blending Tradition with Innovation
Traditional Thai Architecture Meets Modern Design
Inspired by traditional Thai architecture, the villas have been designed with natural materials and modern techniques to create a sustainable and flexible living environment. The architectural approach emphasizes breathable spaces that integrate natural elements like bamboo, stone, and timber, offering residents both comfort and privacy.


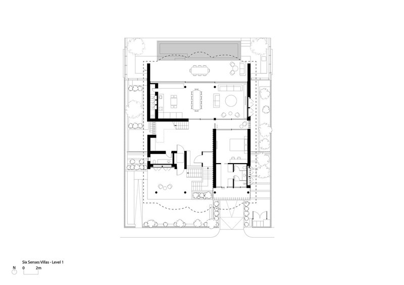
Each villa is elevated, allowing for panoramic views of the lush surroundings and improving natural ventilation. The raised design also provides space for essential services and parking beneath the homes, keeping the living areas elevated and connected to nature.


Flexible, Open-Plan Living Spaces
The villas feature open-plan living areas with spaces that can be adapted to meet the needs of different family configurations. The ground level houses the main living and dining areas, as well as a grandparents' bedroom and a central shaded courtyard where the family can gather. The villa’s design allows for maximum flexibility, with sliding louvers enabling residents to adjust the amount of air circulation, light, and privacy as needed.


The second level includes more bedrooms and generous shaded terraces, perfect for outdoor dining, relaxation, or practicing yoga. A private infinity pool on the rear terrace extends the villa’s connection to the water and the surrounding landscape.


Sustainable Design Features
Energy-Efficient Materials and Systems
The villas employ sustainable materials such as regionally sourced bamboo, stone, and aluminum, which not only reflect the local culture but also offer energy-efficient benefits. The use of aluminum rain screens and timber soffits enhances the natural aesthetics of the homes, while solar panels integrated into the roof provide sustainable energy to power the homes.


Incorporating a gridshell free-span timber structure, the villas offer flexible, open spaces that can be used for a variety of activities. These homes prioritize energy efficiency, environmental sensitivity, and minimal ecological impact.

Connecting with Nature: Seamless Outdoor Integration
The villas are carefully positioned to provide seamless transitions between the indoor and outdoor spaces. The private infinity pool appears to merge with the central lagoon, further enhancing the connection between the residence and its natural surroundings. Large terraces at the rear of the villas create additional outdoor spaces for relaxation and socialization, all while maintaining privacy for residents.
The project is part of the larger The Forestias master plan, which aims to create an immersive, sustainable environment for both residents and local wildlife, ensuring the natural ecosystem thrives alongside the community.


Wellness-Focused Amenities
Private Health Center and Clubhouse
Residents have access to exclusive amenities, including a private health center and a large infinity pool that connects directly to the lagoon. A clubhouse with a flexible event space built with a timber structure serves as a central hub for social and wellness activities, promoting a strong sense of community among the residents.



The Six Senses Residences at The Forestias offer an exceptional living experience that integrates luxury, sustainability, and well-being. Designed to connect residents with nature, the villas provide a comfortable and private living environment that also promotes emotional and physical health. With a focus on flexible design, natural materials, and energy efficiency, this project sets a new standard for sustainable luxury living in Thailand.



All photographs are work of Weerapon Singnoi,Foster + Partners
Popular Articles
Popular articles from the community
Solar Steam: A Climate-Responsive Architecture That Redefines the Monument
A climate-responsive memorial architecture that transforms heat, decay, and time into a living system reflecting humanity’s ecological impact.
Alton Cliff House: A Harmonious Retreat by f2a Architecture in Lake Country, Canada
Alton Cliff House blends corten steel, prefabrication, and sustainable design, creating a luxurious, energy-efficient retreat perched on Canadian cliffs.
The Ken Roberts Memorial Delineation Competition (Krob)
As the most senior architectural drawing competition currently in operation anywhere in the world, it draws hundreds of entries each year, awarding the very best submissions in a series of medium-based categories.
Similar Reads
You might also enjoy these articles
The Ken Roberts Memorial Delineation Competition (Krob)
As the most senior architectural drawing competition currently in operation anywhere in the world, it draws hundreds of entries each year, awarding the very best submissions in a series of medium-based categories.
Waterfront Redevelopment and Urban Revitalization in Mumbai: Forging a New Dawn for Darukhana
A transformative waterfront redevelopment project reimagining Darukhana’s shipbreaking heritage into an inclusive urban future.
OUT-OF-MAP: A Call for Postcards on Feminist Narratives of Public Space
Rhizoma Design and Research Lab invites artists, designers, architects, researchers, and students to reflect on how feminist perspectives can reshape public space. Selected works will be exhibited in Barcelona, October 2026. Submissions open until 15 April 2026.
Documentation Work on Buddhist Wooden Temple
Architectural syncretism and cultural hybridity: A comparative study of the Buddhist temples in Chattogram Hill tracks
Explore Architecture Competitions
Discover active competitions in this discipline
The International Standard for Design Portfolios
The Global Benchmark for Architecture Dissertation Awards
The Global Benchmark for Graduation Excellence
Challenge to reimagine the Iron Throne
Comments (0)
Please login or sign up to add comments
No comments yet. Be the first to comment!