Sustainable Residential Architecture in Tulum: Amelia Tulum by Sordo Madaleno Arquitectos
Discover Amelia Tulum, a sustainable residential project blending modern architecture and eco-conscious design in Tulum's lush jungle landscape.
Amelia Tulum, designed by Sordo Madaleno Arquitectos, is a landmark residential project located in Aldea Zamá, Tulum, Mexico. Completed in 2023, this 14,185-square-meter development blends modern architecture with sustainable design principles, inspired by the natural beauty of the Riviera Maya. By integrating the structure seamlessly into the jungle environment and prioritizing minimal ecological impact, the project redefines sustainable residential living in one of Mexico's most iconic regions.



Context and Conceptual Foundation
Situated in the rapidly developing area of Aldea Zamá, Amelia Tulum stands as a testament to architectural innovation in harmony with nature. The design philosophy centers around preserving the site’s unique ecosystem, which includes cenotes and dense jungle vegetation. The architects drew inspiration from Mayan structures, allowing the building to blend with the natural surroundings, much like ancient ruins reclaimed by the jungle over time.




Minimal Environmental Impact
The design employs a stilt-like construction method to minimize the building's footprint on the land. By elevating the structure above the ground, the project reduces soil disturbance and allows the natural environment to flow uninterrupted beneath the building. This approach also defines the aesthetic character of the complex, combining functionality with visual harmony.




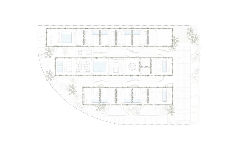
Architectural Layout and Design
Amelia Tulum comprises a mix of commercial and residential spaces. The first three levels house select commercial facilities that coexist with the residential apartments above. The upper levels are arranged in a checkerboard pattern, with interlocking volumes that create terraces, patios, and gardens. This design fosters a unique indoor-outdoor living experience, where private and communal areas are seamlessly connected.


The 38 apartments, ranging from 90 to 150 square meters, feature terraces and independent bedroom access. The rooftop level includes amenities such as a bar, hammocks, a swimming pool, sun loungers, and a grill, offering residents a luxurious and relaxing lifestyle.



Integration of Sustainability
A defining feature of Amelia Tulum is its commitment to sustainability. The tropical climate of Tulum presents unique challenges, such as reducing solar heat gain and enhancing airflow. To address these, the architects incorporated passive cooling systems, including shaded eaves covered with vegetation, natural woven screens, and pergolas made from locally sourced jiles wood. These features work together to maintain a cool interior environment while reducing energy consumption.



Native vegetation plays a central role in the design. Existing flora was preserved during construction, housed temporarily in a nursery, and later reintegrated into the building’s landscaping. Plants border the building’s slabs, fill the interior corridors, and enhance the ground floor, ensuring a strong connection to the natural environment.



Materiality and Local Craftsmanship
The main structure of Amelia Tulum is built using reinforced concrete with post-tensioned slab systems for durability. Local artisanal techniques are showcased throughout the project, emphasizing the use of natural and sustainable materials. The interior surfaces are finished with chukum, a smooth cement-based coating derived from the sap of native trees. Tzalam wood, prized for its durability in humid conditions, is used extensively, while the lattices are handcrafted by local artisans using jiles wood.



Architectural Legacy
Amelia Tulum is more than a residential project; it is a model of sustainable living that integrates modern architecture with the natural world. Its thoughtful design respects the environment while offering luxurious living spaces that cater to the needs of its residents. This project exemplifies how architecture can serve as a bridge between humanity and nature, creating a harmonious coexistence that inspires future developments.




All Photographs are works of Óscar Caballero
Popular Articles
Popular articles from the community
Treehouse Apartment: A Warm Timber Interior Blending Craft, Play, and Contemporary Living
Warm timber apartment with integrated treehouse, combining natural materials, craftsmanship, and playful design to create a flexible, family-oriented living environment.
On the Brooks House by Monsoon Collective – A Contemporary Kerala Home Rooted in Tradition
Kerala home blending tradition and modernity with water-inspired design, brick architecture, courtyard planning, and sustainable rainwater harvesting strategies.
Louis Malle Cinema: A Limestone Cultural Landmark Revitalizing Community Life in Prayssac
Limestone cinema extension with public forecourt, blending heritage and modern design to create flexible cultural spaces and strengthen community interaction.
Flamboyant House by Juliana Camargo + Prumo Projetos
Modern Brazilian house integrating existing tree, pool, and volumes with glass, wood, and transitional spaces blending interior, exterior, and landscape seamlessly.
Similar Reads
You might also enjoy these articles
The Ken Roberts Memorial Delineation Competition (Krob)
As the most senior architectural drawing competition currently in operation anywhere in the world, it draws hundreds of entries each year, awarding the very best submissions in a series of medium-based categories.
Waterfront Redevelopment and Urban Revitalization in Mumbai: Forging a New Dawn for Darukhana
A transformative waterfront redevelopment project reimagining Darukhana’s shipbreaking heritage into an inclusive urban future.
OUT-OF-MAP: A Call for Postcards on Feminist Narratives of Public Space
Rhizoma Design and Research Lab invites artists, designers, architects, researchers, and students to reflect on how feminist perspectives can reshape public space. Selected works will be exhibited in Barcelona, October 2026. Submissions open until 15 April 2026.
Documentation Work on Buddhist Wooden Temple
Architectural syncretism and cultural hybridity: A comparative study of the Buddhist temples in Chattogram Hill tracks
Explore Architecture Competitions
Discover active competitions in this discipline
The International Standard for Design Portfolios
The Global Benchmark for Architecture Dissertation Awards
The Global Benchmark for Graduation Excellence
Challenge to reimagine the Iron Throne
Comments (0)
Please login or sign up to add comments
No comments yet. Be the first to comment!