Sustainable Rural Homestay Architecture: Lei Homestay by ARCHSTUDIO
This article explores Lei Homestay by ARCHSTUDIO, a stunning example of sustainable rural homestay architecture in Beijing’s countryside.
Introduction to Lei Homestay’s Context
Nestled in North Yangjiaqiao Village, Yukou Town, Pinggu District, Beijing, Lei Homestay by ARCHSTUDIO is a striking example of sustainable rural homestay architecture. This typical northern Chinese village, once dominated by traditional courtyard-style homes, has seen rapid and somewhat chaotic renewal, with Western-style houses and steel-roofed additions transforming its streetscape. Lei Homestay seeks to reconnect to the village’s cultural roots while addressing modern tourism demands and sustainability goals.





The Site and Its Challenges
Occupying a rectangular plot of about 400 square meters on the eastern edge of the village’s main road, the site originally hosted an assortment of disorganized pitched-roof and flat-roof brick-concrete buildings, as well as makeshift steel-roofed structures. None held preservation value, but three special elements stood out: two persimmon trees and one walnut tree, planted by the homeowner’s father during childhood. These trees, vibrant and memory-laden, were preserved at the heart of the new architectural vision.





The Owner’s Vision and Programmatic Needs
The owner envisioned a homestay that would serve as both a commercial retreat for urban visitors and a sanctuary for family, particularly reserving a room for his mother. The program demanded at least seven guestrooms, communal spaces like Chinese and Western kitchens, a dining room, a living room, and leisure areas such as a recreation room and a chess and card room for the elderly. To meet these spatial requirements, the new building doubled the footprint of the original site, all while respecting local regulations on height, volume, and setbacks.





Architectural Concept Inspired by Nature and Tradition
The architectural design draws deep inspiration from the three preserved trees and the ancient Chinese term “Lei” (耒), referring to an old agricultural tool that symbolizes rural life. The Chinese character for “Lei” comprises three wood (木) strokes, perfectly reflecting the wooden framework that weaves through the new structure. The design embraces a courtyard typology, placing the trees at the center of two sunlit courtyards, anchoring the building to the traditional spatial logic of the village while providing visual and seasonal connection to nature.





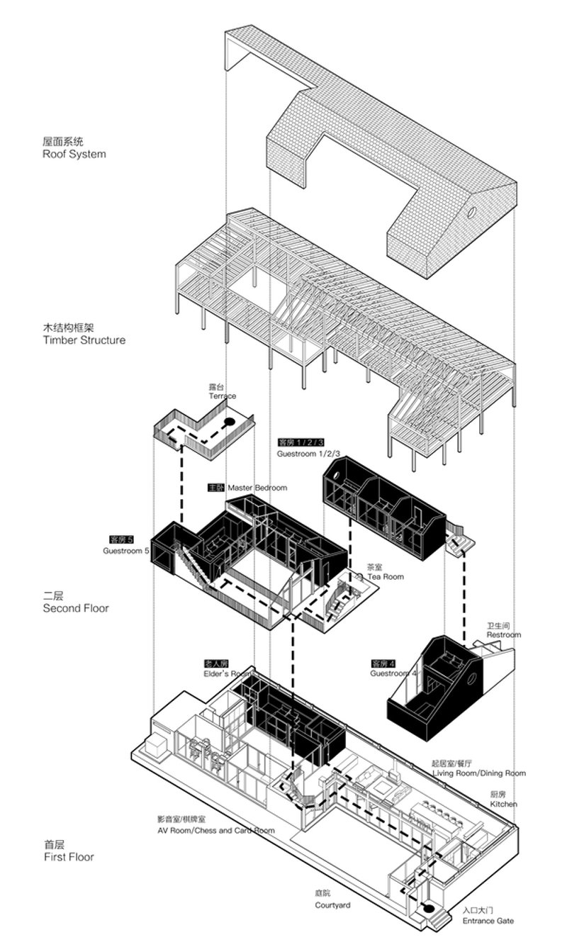
Thoughtful Spatial Organization and Design
The ground floor is designed with privacy in mind, featuring solid street-facing walls and opening inward toward the courtyards. This level houses the communal areas, including living and dining spaces, kitchens, and the owner’s personal bedroom. On the second floor, a dynamic composition of staggered platforms creates an airy, floating sensation, blending visually with the surrounding tree canopies. This level accommodates six uniquely styled guestrooms, offering a range of experiences from standard rooms to tatami-style singles and loft-style family suites. Rooftop terraces crown the design, offering sweeping views of the surrounding rural landscape and distant mountains.




Sustainable Materials and Construction Techniques
Sustainability is central to Lei Homestay’s design philosophy. Timber, chosen for its low-carbon footprint and warm, natural texture, serves as the primary structural material. Prefabricated construction methods ensured precision and reduced on-site waste. The exterior walls are built entirely from reclaimed bricks sourced from the demolished site, reflecting a strong commitment to material reuse. Internal wooden partitions were integrated directly into the architectural system, eliminating the need for additional interior outfitting and cutting costs. Asphalt shingles wrap seamlessly from the roof down parts of the second-floor facade, creating a distinctive gray silhouette that appears to float above the rustic brick walls.




A Breathing House That Engages the Community
Upon completion, the owner fondly described the project as “a breathing house,” one that embraces its rural setting while cultivating a serene, sustainable lifestyle. Beyond serving as a homestay for visitors, the building is envisioned as a future public hub for the local community, fostering interactions between residents and travelers. Lei Homestay stands as a model for how sustainable rural homestay architecture can honor cultural heritage, engage with local ecology, and create meaningful, modern spaces that activate village life.


A New Model for Sustainable Rural Tourism
Lei Homestay by ARCHSTUDIO is more than just a beautiful building—it is a thoughtful response to the challenges of rural renewal, balancing tradition, sustainability, and hospitality. Through its sensitive site integration, preservation of natural elements, and use of low-impact materials, it offers a blueprint for how rural villages can revitalize themselves in the face of modernization pressures. This project shows how sustainable rural homestay architecture can bridge the gap between past and future, creating spaces that are not only visually striking but also culturally and ecologically meaningful.



All Photographs are works of Weiqi Jin, Ning Wang
Popular Articles
Popular articles from the community
Inverted Architecture Installation by Studio Link-Arc: Exploring the Intersection of Architecture and Living Organisms
Inverted Architecture Installation by Studio Link-Arc blends mycelium, sustainability, inverted design, ecological cycles, and urban adaptive architecture in Shenzhen.
Split House: A Compact Urban Home Blending Privacy, Light, and Flexible Living in Japan
Compact Japanese home featuring DOMA space, flexible café potential, passive lighting, privacy zoning, and sustainable urban living design.
Fifth NRE Jazz Club – De Bever Architecten: Eindhoven’s Revitalized Cultural Hub
Historic gas factory transformed into Fifth NRE Jazz Club blending modern sustainability, jazz culture, dining, and heritage architecture seamlessly.
Atelier Macri Concept Store Interior Design by CASE-REAL
Atelier Macri store features a "ko" counter, walnut wood details, cork displays, blending retail, gallery, and seamless customer experiences.
Similar Reads
You might also enjoy these articles
Bamboo Housing Challenge 2026: Design Affordable, Sustainable Homes Using Bamboo
An international design competition by Bamboo U and IBUKU inviting architects and designers to reimagine affordable housing using bamboo — with the winning design built full-scale in Bali.
Computational Design & Education: Beegraphy Design Awards Introduces 7th Category (Featuring Jiyun's Innovative Approach)
Dive into Beegraphy’s 7th Design Awards category, where computational design meets education to create immersive, interactive learning tools, inspired by Jiyun’s work.
From Parametric Lighting to Urban Furniture: Join the 2nd Workshop in Beegraphy’s Computational Design Series
Dive into Cutting-Edge Design Techniques and Practical Applications with Industry Experts
Explore Architecture Competitions
Discover active competitions in this discipline
The International Standard for Design Portfolios
The Global Benchmark for Architecture Dissertation Awards
The Global Benchmark for Graduation Excellence
Challenge to reimagine the Iron Throne
Comments (0)
Please login or sign up to add comments
No comments yet. Be the first to comment!