Sustainable Urban Architecture in Vietnam: Embracing Minimalism and Nature in Banh Duc House
Exploring Banh Duc House's minimalist design in Vietnam, showcasing sustainable urban architecture through natural ventilation, simplicity, and harmony with nature's elements.
In recent years, the concept of sustainable urban architecture has taken center stage in Vietnam, driven by the need for environmentally friendly living spaces that cater to the modern urban dweller's needs. The Banh Duc House, crafted by Space Design Archgroup, exemplifies this shift towards sustainability, offering a fresh perspective on how architecture can harmonize with nature to create serene living environments..





The Inspiration Behind Banh Duc House
Banh Duc House draws its inspiration from the traditional Vietnamese cake known for its soft texture and simple yet profound aesthetic. This project, nestled in Thanh My Loi, Vietnam, showcases how minimalism in design can lead to a deeper appreciation of the aesthetics and functionality of a space. Lead architects Le Tien Anh, Nguyen Ngoc Thanh Trang, and Pham Van Ket have masterfully created a structure that embodies the essence of sustainable and minimalist living.





Design Philosophy and Structure
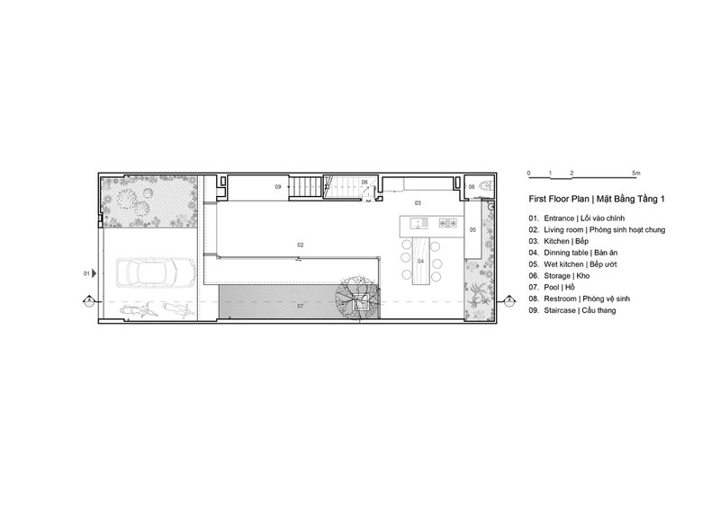
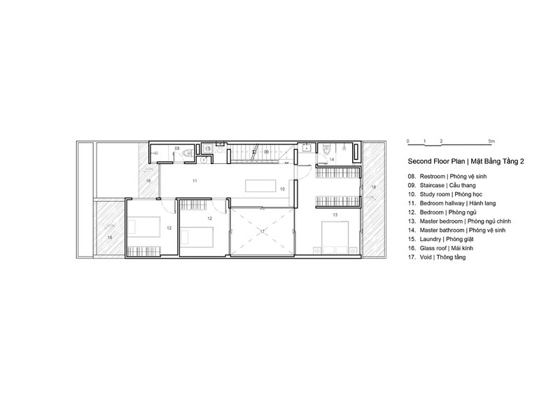
The design philosophy of Banh Duc House centers around simplicity and the "compensatory" aspects of architecture, focusing on the essential elements that enhance living spaces without unnecessary decoration. The house is designed with small, stacked volumes that create layered spaces, allowing for the natural interplay of sunlight, wind, and rain, emphasizing the connection to nature.




Key Features of Banh Duc House
Natural Ventilation and Temperature Control
A standout feature of Banh Duc House is its innovative use of natural ventilation to cool the interior spaces. The strategic placement of stacked openings ensures that the house remains cooler than its surroundings during Vietnam's hot seasons, while also welcoming the rain into the built environment during the wetter months.


Material Use and Inward Orientation
The architects chose simple materials for the construction of Banh Duc House, such as white-painted walls and large glass panels. This decision underscores the home's minimalist aesthetic and supports an inward-oriented space that fosters a strong connection with the outdoor environment.


Sustainable Living Spaces
The house's design encourages sustainable living practices, with greenery used throughout to enhance the simplicity of the project. Every element, from the water features to the open spaces, is carefully balanced to support a lifestyle that is in harmony with nature.


The Impact of Banh Duc House on Urban Architecture
Banh Duc House is more than just a residential project; it is a testament to the potential of sustainable urban architecture in Vietnam. By prioritizing minimalism, natural ventilation, and the thoughtful use of space, the project sets a new standard for environmentally conscious design in urban environments.

A New Direction for Urban Living
As cities in Vietnam and around the world continue to grow, projects like Banh Duc House offer a vision of how architecture can adapt to meet the challenges of sustainability and urban density. By embracing the principles of minimalism and nature-centric design, Banh Duc House stands as a beacon for sustainable urban architecture in Vietnam, offering a model for future developments that wish to blend modern living with environmental stewardship.







All photographs are work of Hiroyuki Oki
Popular Articles
Popular articles from the community
On the Brooks House by Monsoon Collective – A Contemporary Kerala Home Rooted in Tradition
Kerala home blending tradition and modernity with water-inspired design, brick architecture, courtyard planning, and sustainable rainwater harvesting strategies.
A Contemporary Take on Iranian Residential Architecture
A modern interior design in Mashhad that reinterprets brick, light, and spatial flow to create a warm, contemporary residential architecture.
Treehouse Apartment: A Warm Timber Interior Blending Craft, Play, and Contemporary Living
Warm timber apartment with integrated treehouse, combining natural materials, craftsmanship, and playful design to create a flexible, family-oriented living environment.
Solar Steam: A Climate-Responsive Architecture That Redefines the Monument
A climate-responsive memorial architecture that transforms heat, decay, and time into a living system reflecting humanity’s ecological impact.
Similar Reads
You might also enjoy these articles
Bamboo Housing Challenge 2026: Design Affordable, Sustainable Homes Using Bamboo
An international design competition by Bamboo U and IBUKU inviting architects and designers to reimagine affordable housing using bamboo — with the winning design built full-scale in Bali.
Computational Design & Education: Beegraphy Design Awards Introduces 7th Category (Featuring Jiyun's Innovative Approach)
Dive into Beegraphy’s 7th Design Awards category, where computational design meets education to create immersive, interactive learning tools, inspired by Jiyun’s work.
From Parametric Lighting to Urban Furniture: Join the 2nd Workshop in Beegraphy’s Computational Design Series
Dive into Cutting-Edge Design Techniques and Practical Applications with Industry Experts
Introducing Sphere by UNI: Pioneering a New Era in AEC Industry
Unlocking Global Potential with BIM and Agile Management
Explore Architecture Competitions
Discover active competitions in this discipline
The International Standard for Design Portfolios
The Global Benchmark for Architecture Dissertation Awards
The Global Benchmark for Graduation Excellence
Challenge to reimagine the Iron Throne
Comments (0)
Please login or sign up to add comments
No comments yet. Be the first to comment!