Sustainable Urban Housing: Innovation at the Marina del Prat Vermell
This article explores the sustainable design of 72 Social Housing Units at Marina del Prat Vermell, showcasing innovative urban living.
The Marina del Prat Vermell project in Barcelona, designed by MIAS Architects and Coll-Leclerc Arquitectos, exemplifies the cutting-edge of sustainable urban housing. This development integrates environmental considerations with urban living, providing affordable, eco-friendly living spaces.


Architectural Vision of Marina del Prat Vermell
Designing for Sustainability and Social Interaction
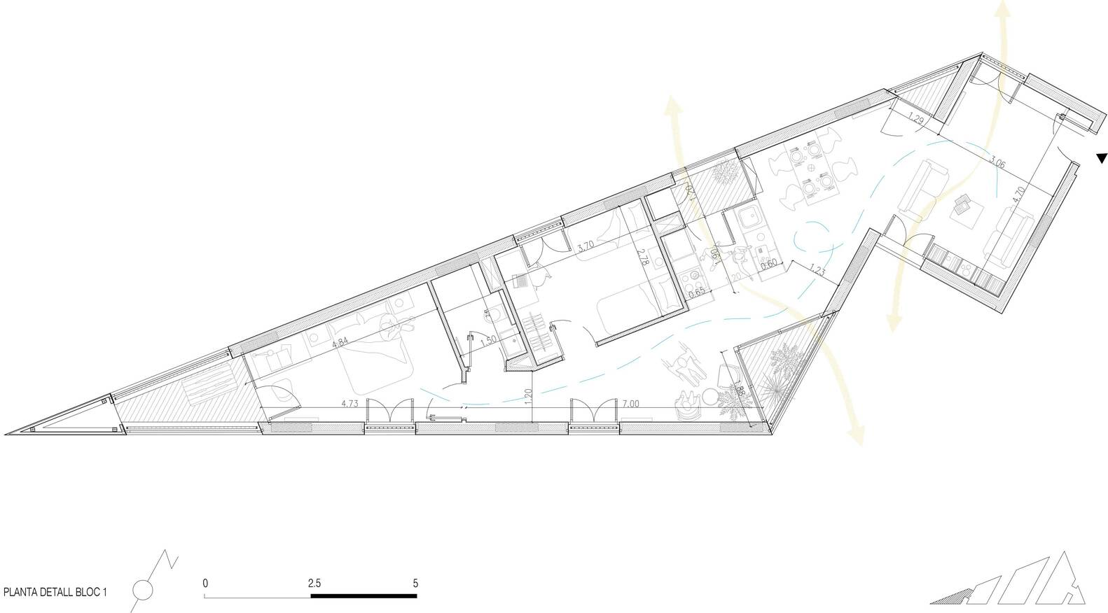
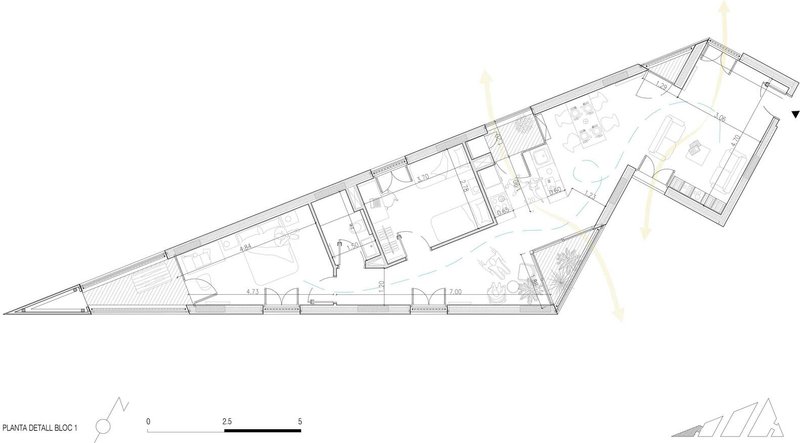
The unique triangular plot of the Marina del Prat Vermell inspired a distinct architectural response. By maintaining the triangle's integrity and using strategic orientations and divisions, the architects created a complex that maximizes natural light, solar gain, and cross ventilation—key aspects of sustainable design.




Material Use and Environmental Impact
The architects selected materials to minimize the building's carbon footprint. They incorporated ribbed Glass Reinforced Concrete (GRC) panels, recycled PVC in a Bubble-Deck system, and energy-efficient building methods to achieve a low-energy, sustainable housing model.


Challenges and Solutions in Urban Housing Design
Achieving Dual Orientation and Ventilation
Each of the 72 housing units is designed to ensure optimal solar exposure and ventilation. The arrangement into five blocks allows each apartment to benefit from dual orientation, a crucial feature for living comfort and energy efficiency in urban housing.


Integrating Community and Private Spaces
The design includes common areas that encourage social interaction while providing privacy and individuality within each housing unit. This balance fosters a community-oriented environment, crucial in dense urban settings.


Sustainability Features and Certifications
Energy Efficiency and Passive House Standards
The project boasts an energy consumption of only 8.76 kWh/m2 per year, achieving an A Rating and meeting stringent Passivhaus standards. Such efficiency is facilitated by strategic design choices that maximize passive solar heating and natural cooling.

Renewable Energy and Biodiversity Initiatives
The implementation of a shared solar photovoltaic plant on the roof and the integration of vegetation across the building promotes biodiversity and reduces the urban heat island effect. These initiatives are pivotal in demonstrating how urban projects can contribute to broader environmental goals.


The Future of Urban Housing
72 Social Housing Units at Marina del Prat Vermell serve as a beacon for future developments in sustainable urban housing. By seamlessly blending innovative architecture with environmental stewardship, this project sets new standards for what is possible in urban residential design.


All photographs are work of Adrià Goula, Stupendastic
Popular Articles
Popular articles from the community
Flamboyant House by Juliana Camargo + Prumo Projetos
Modern Brazilian house integrating existing tree, pool, and volumes with glass, wood, and transitional spaces blending interior, exterior, and landscape seamlessly.
The Ken Roberts Memorial Delineation Competition (Krob)
As the most senior architectural drawing competition currently in operation anywhere in the world, it draws hundreds of entries each year, awarding the very best submissions in a series of medium-based categories.
On the Brooks House by Monsoon Collective – A Contemporary Kerala Home Rooted in Tradition
Kerala home blending tradition and modernity with water-inspired design, brick architecture, courtyard planning, and sustainable rainwater harvesting strategies.
An Miên Lumière Cafe by xưởng xép, Ho Chi Minh City, Vietnam
An industrial-inspired café where layered steel and warm light create a dynamic, immersive environment shaped by reflection, depth, and perception.
Similar Reads
You might also enjoy these articles
Top 15 Architecture Competitions to Enter in 2026
From student-friendly idea competitions to prestigious international awards, here are the best architecture competitions open for entries in 2026. Updated regularly.
DIY & Engineering in Computational Design : Enter the BeeGraphy Design Awards
Showcase Your Creativity with Computational Design and Open Source Projects

Innovative Design Solutions: Award-Winning Projects from Recent Architecture Competitions
Exploring award-winning architectural projects shaping the future of design, sustainability, and community.
Explore Architecture Competitions
Discover active competitions in this discipline
The International Standard for Design Portfolios
The Global Benchmark for Architecture Dissertation Awards
The Global Benchmark for Graduation Excellence
Challenge to reimagine the Iron Throne
Comments (0)
Please login or sign up to add comments
No comments yet. Be the first to comment!