Suzhou Snow Peak Cafe: Redefining Suzhou Café Architecture with Minimalism and Nature
Suzhou Snow Peak Cafe blends industrial heritage, natural flow, and minimalist design, redefining Suzhou café architecture with timeless spatial harmony.
The Suzhou Snow Peak Cafe by KiKi ARCHi is more than a coffee shop—it is a refined example of Suzhou café architecture that blends industrial memory, natural flow, and minimalist design. Located in a former 1950s warehouse adjacent to the Humble Administrator’s Garden, the project balances the rawness of red brick with the elegance of crafted timber and steel.



Historical Context and Site Transformation
The cafe is part of the MATRO Luxury Centre redevelopment, where 22 red-brick warehouses have been reimagined into a cultural destination inspired by Suzhou’s classical gardens. Architect Yoshihiko Seki preserved the industrial textures while introducing a new architectural language aligned with Snow Peak’s philosophy of “Embrace Your Nature.”


By allowing historical traces to persist, the design narrates a dialogue between industrial heritage and natural freedom, grounding the project within Suzhou’s unique urban fabric.


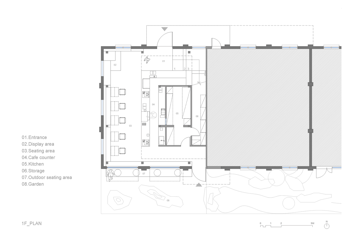
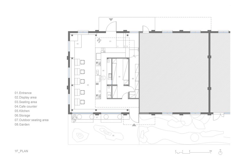
Ground Floor Experience
Upon entry, the multifunctional bar becomes the spatial anchor. Constructed from layered timber strips reminiscent of stacked red bricks, it integrates coffee preparation, brand display, and cashier functions.


Topped with steel panels that extend seamlessly into micro-cement steps, the bar exudes a sense of levitation. The ceiling and seating areas echo this material dialogue, creating cohesion between the space’s visual language and atmosphere.


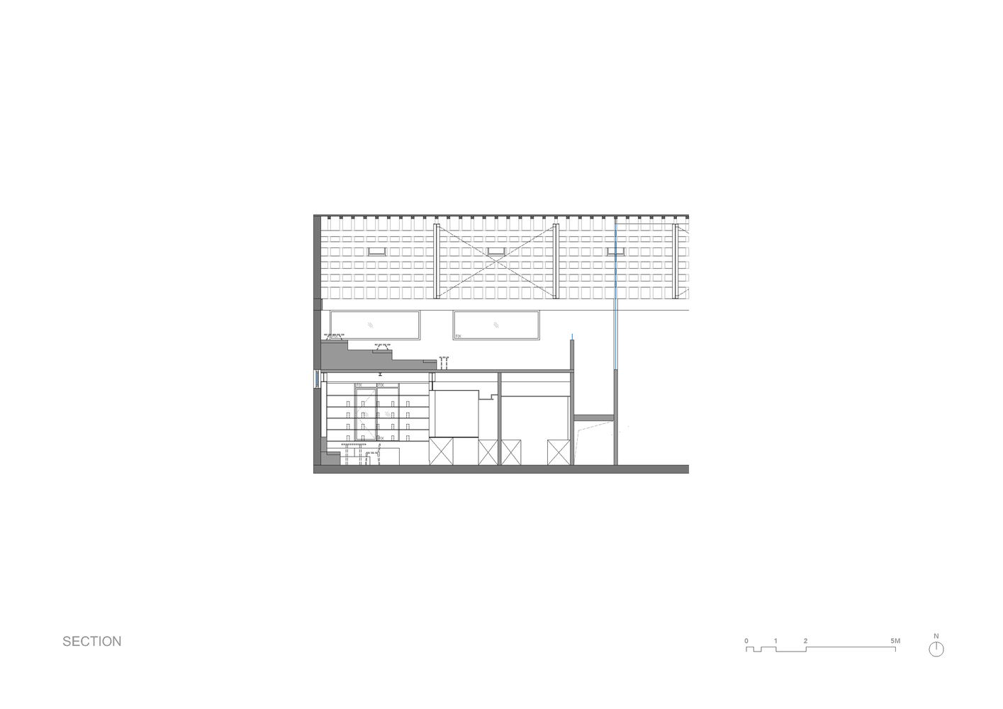
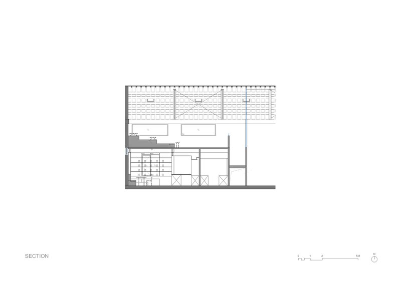
Staircase as Spatial Rhythm
The micro-cement staircase rises organically, merging circulation with display. Rather than being a separate insertion, it acts as a spatial device that connects levels, generates rhythm, and reinforces the cafe’s continuous flow. Its understated form transforms vertical movement into an architectural experience.



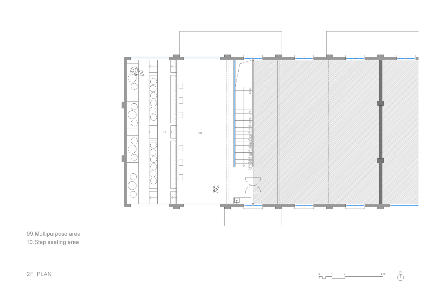
Second Floor Design
Upstairs, the design takes on a restrained character. Stepped seating made of reclaimed red bricks grounds the space, evoking the feeling of a natural terrain. Slender timber strips mark subtle boundaries, balancing intimacy with openness.


The existing beams, painted white, soften the weight of brick and wood, infusing calm while reinforcing Snow Peak’s aesthetic of nature-inspired minimalism.


Materiality and Craftsmanship
The architecture thrives on contrasting yet complementary materials—natural timber, weathered red brick, steel, and micro-cement. These materials respond to the site’s industrial past and natural setting, while refined craftsmanship introduces precision and sophistication.


Instead of clashing, the raw and the refined merge into a harmonious coexistence, echoing Snow Peak’s ethos of balancing wilderness and daily life.


Philosophy and Design Identity
The project embodies Snow Peak’s core philosophy: minimal interference with nature. By respecting the original structure and layering subtle interventions, the cafe captures the poetry of outdoor living within an urban context. Visitors experience not only coffee culture but also a spatial journey into nature’s calmness, even within a bustling city.


The Suzhou Snow Peak Cafe sets a new benchmark for Suzhou café architecture, seamlessly integrating history, materiality, and brand philosophy. It illustrates how minimalist interventions and contextual respect can craft spaces that are at once industrial, natural, and deeply human.

All Photographs are works of Ruijing Photo
Popular Articles
Popular articles from the community
Solar Steam: A Climate-Responsive Architecture That Redefines the Monument
A climate-responsive memorial architecture that transforms heat, decay, and time into a living system reflecting humanity’s ecological impact.
Atelier Macri Concept Store Interior Design by CASE-REAL
Atelier Macri store features a "ko" counter, walnut wood details, cork displays, blending retail, gallery, and seamless customer experiences.
Inverted Architecture Installation by Studio Link-Arc: Exploring the Intersection of Architecture and Living Organisms
Inverted Architecture Installation by Studio Link-Arc blends mycelium, sustainability, inverted design, ecological cycles, and urban adaptive architecture in Shenzhen.
Similar Reads
You might also enjoy these articles
Bamboo Housing Challenge 2026: Design Affordable, Sustainable Homes Using Bamboo
An international design competition by Bamboo U and IBUKU inviting architects and designers to reimagine affordable housing using bamboo — with the winning design built full-scale in Bali.
Computational Design & Education: Beegraphy Design Awards Introduces 7th Category (Featuring Jiyun's Innovative Approach)
Dive into Beegraphy’s 7th Design Awards category, where computational design meets education to create immersive, interactive learning tools, inspired by Jiyun’s work.
From Parametric Lighting to Urban Furniture: Join the 2nd Workshop in Beegraphy’s Computational Design Series
Dive into Cutting-Edge Design Techniques and Practical Applications with Industry Experts
Explore Architecture Competitions
Discover active competitions in this discipline
The International Standard for Design Portfolios
The Global Benchmark for Architecture Dissertation Awards
The Global Benchmark for Graduation Excellence
Challenge to reimagine the Iron Throne
Comments (0)
Please login or sign up to add comments
No comments yet. Be the first to comment!