The House of Volumes: A Contemporary Courtyard House Design in Ahmedabad
A modern courtyard house design in Ahmedabad blending traditional and contemporary elements for a functional and sustainable family home.
Nestled in the bustling city of Ahmedabad, India, The House of Volumes designed by Modo Designs stands as a testament to modern residential architecture. The house emphasizes spatial openness, light, and natural elements, with a primary design philosophy focused on the courtyard as an archetypal space. By blending traditional Gujarati elements with contemporary architectural solutions, this home offers a sophisticated yet functional living experience.





Courtyard as the Heart of the Home
At the core of this home is a central courtyard, which serves as the connecting thread between the various zones of the house. The design harnesses natural elements such as sunlight and breeze, enhancing the sense of openness and continuity throughout the living spaces. The courtyard allows both lower and upper spaces to remain connected while simultaneously offering private spaces for family members.







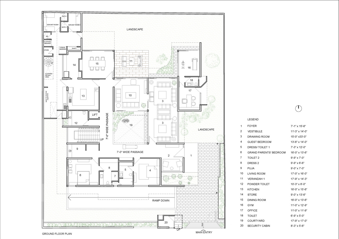
Ground Floor Layout
The ground floor layout is organized around the central courtyard, with well-defined zones for relaxation, work, and social interaction. Two bedrooms occupy the south side, offering a sense of privacy, while the east side houses a formal guest area, a gymnasium, and a workspace. The north-facing living and dining areas are positioned to take full advantage of the north garden view, creating a seamless flow between indoor and outdoor spaces. Adjacent to the dining room is a modern kitchen that enhances the home's functionality and lifestyle.






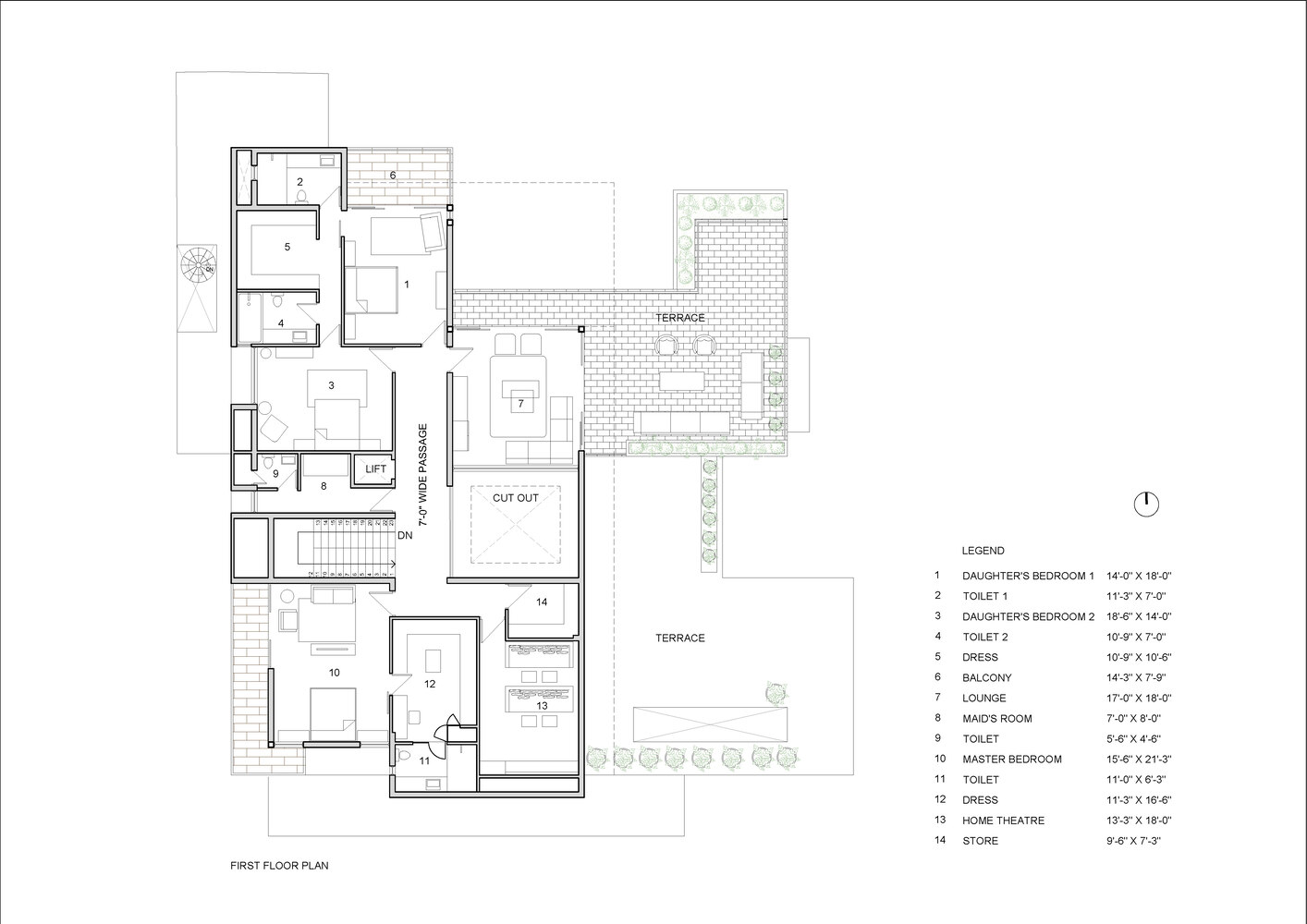
Upper Floor Design
On the upper floor, three additional bedrooms are located on the west side, while a home theater on the south side offers an entertainment space for the family. The eastern lounge area opens up to the north garden and extends into an outdoor terrace, which becomes an ideal space for outdoor entertainment and relaxation.





Architectural Design and Materiality
The architectural form of the house is bold and striking, especially on the south side facing the road. On the north side, however, the structure opens up into a double-height space that allows residents to enjoy expansive views of the surrounding green spaces. The choice of materials, including exposed RCC construction complemented by white-painted walls and wooden paneling, adds texture and warmth to the home, making it both modern and inviting.






Sustainable and Functional Living
The design also emphasizes sustainability through passive cooling strategies and the integration of natural elements, such as the central courtyard and expansive windows, which minimize the need for artificial lighting. This sustainable approach not only reduces energy consumption but also promotes a healthier living environment for the family.







In conclusion, The House of Volumes is a remarkable example of contemporary courtyard house design that fuses modern aesthetics with traditional values. Its open, airy layout, connected spaces, and natural materials offer a perfect balance of form and function, creating a truly unique living experience in the heart of Ahmedabad.


All photographs are work of Vinay Panjwani
Popular Articles
Popular articles from the community
The Ken Roberts Memorial Delineation Competition (Krob)
As the most senior architectural drawing competition currently in operation anywhere in the world, it draws hundreds of entries each year, awarding the very best submissions in a series of medium-based categories.
Inverted Architecture Installation by Studio Link-Arc: Exploring the Intersection of Architecture and Living Organisms
Inverted Architecture Installation by Studio Link-Arc blends mycelium, sustainability, inverted design, ecological cycles, and urban adaptive architecture in Shenzhen.
Alton Cliff House: A Harmonious Retreat by f2a Architecture in Lake Country, Canada
Alton Cliff House blends corten steel, prefabrication, and sustainable design, creating a luxurious, energy-efficient retreat perched on Canadian cliffs.
Fifth NRE Jazz Club – De Bever Architecten: Eindhoven’s Revitalized Cultural Hub
Historic gas factory transformed into Fifth NRE Jazz Club blending modern sustainability, jazz culture, dining, and heritage architecture seamlessly.
Similar Reads
You might also enjoy these articles
The Ken Roberts Memorial Delineation Competition (Krob)
As the most senior architectural drawing competition currently in operation anywhere in the world, it draws hundreds of entries each year, awarding the very best submissions in a series of medium-based categories.
Waterfront Redevelopment and Urban Revitalization in Mumbai: Forging a New Dawn for Darukhana
A transformative waterfront redevelopment project reimagining Darukhana’s shipbreaking heritage into an inclusive urban future.
OUT-OF-MAP: A Call for Postcards on Feminist Narratives of Public Space
Rhizoma Design and Research Lab invites artists, designers, architects, researchers, and students to reflect on how feminist perspectives can reshape public space. Selected works will be exhibited in Barcelona, October 2026. Submissions open until 15 April 2026.
Documentation Work on Buddhist Wooden Temple
Architectural syncretism and cultural hybridity: A comparative study of the Buddhist temples in Chattogram Hill tracks
Explore Architecture Competitions
Discover active competitions in this discipline
The International Standard for Design Portfolios
The Global Benchmark for Architecture Dissertation Awards
The Global Benchmark for Graduation Excellence
Challenge to reimagine the Iron Throne
Comments (0)
Please login or sign up to add comments
No comments yet. Be the first to comment!