The Mori House Renovation by SHED Architecture: A Modern Revival of Mid-Century Design
The Mori House renovation by SHED Architecture updates a mid-century gem with modern design, maximizing light and forest views.
Originally designed by the renowned Pacific Northwest architect Saul Zaik in 1963, The Mori House has been meticulously renovated by SHED Architecture & Design to preserve its mid-century modern charm while introducing contemporary elements of design. Located on a gently sloped, forested site in Portland, Oregon, this 3,715-square-foot house offers a harmonious blend of East-meets-Pacific Northwest modernism.


The renovation honors the legacy of Saul Zaik’s design while reimagining the home for a young, minimalist family who sought to maximize natural light, enhance views of the forest, and create a seamless connection between indoor and outdoor spaces.


Site and Context
Nestled in a serene forest setting on Portland’s west end, The Mori House is positioned off a quiet road, offering privacy and tranquility. The property includes a detached garage and studio, along with elevated decks that provide access to a detached tea house pavilion. This connection to the surrounding landscape is a defining characteristic of the renovation, ensuring the house remains firmly rooted in its natural environment.




Design Vision
The renovation’s design vision was informed by the owners’ admiration for Saul Zaik’s work and their desire for a minimalist aesthetic that integrates clean lines, natural materials, and modernist principles. The project’s primary goals included enhancing natural light, reconfiguring circulation with a new stair system, and improving the usability of outdoor spaces.



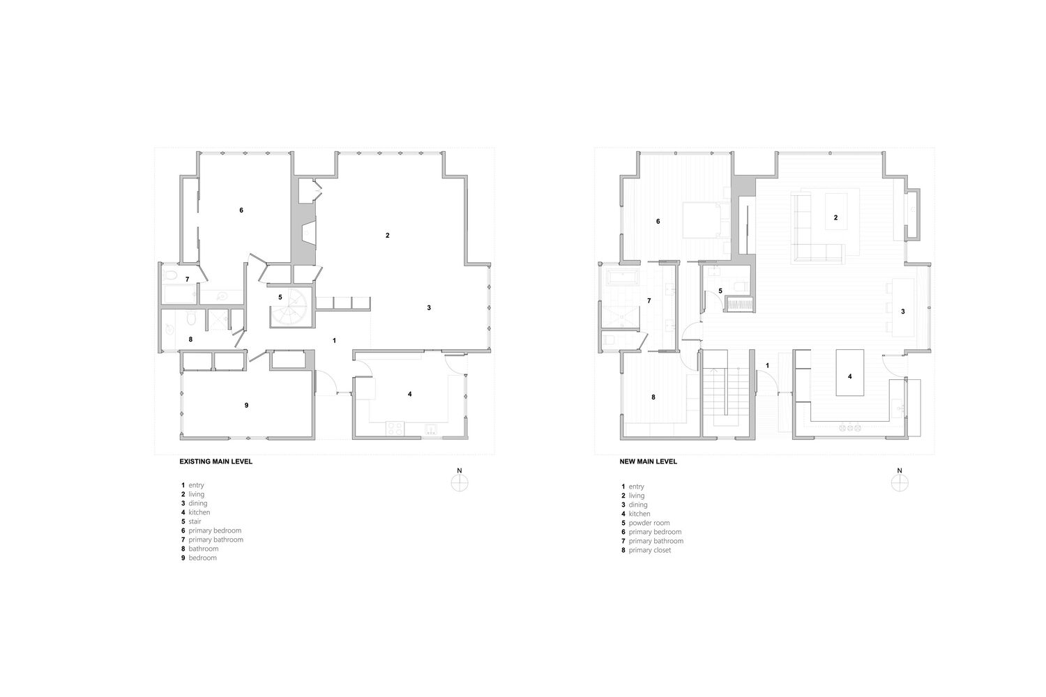
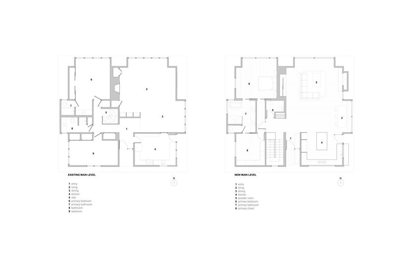
Interior Layout and Program
The Mori House renovation features a reimagined interior layout that enhances the functionality of its spaces. On the main floor, the living, dining, and kitchen areas are arranged along the south side of the house, maximizing light and views of the forest. The primary suite occupies the north side, separated by a central skylight that floods the home with soft, filtered light.



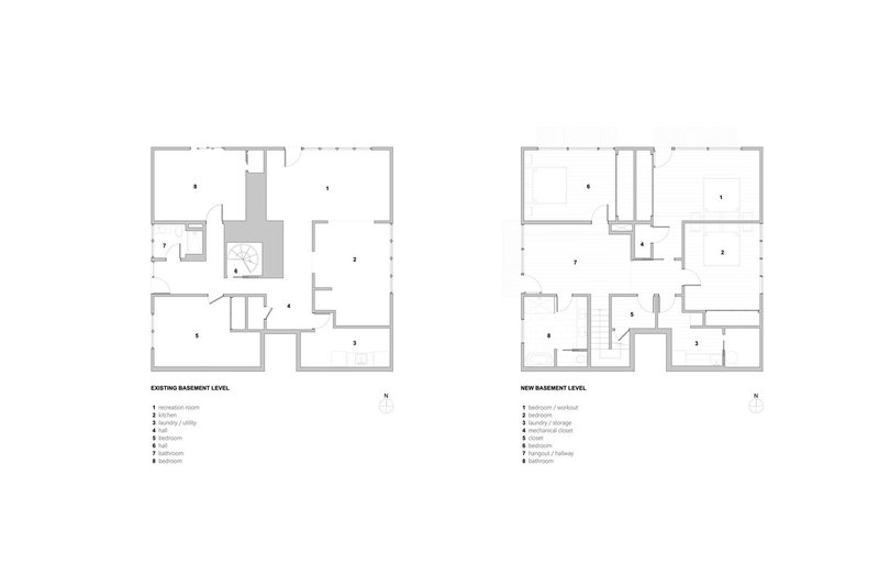
A custom-designed switchback staircase replaces the original spiral staircase, creating a dynamic architectural feature that connects the upper and lower levels. The lower walkout level includes three flexible bedrooms, a bathroom, a hangout space, a wine cellar, and a laundry area. These spaces are designed to adapt to the family’s changing needs, serving as bedrooms, home offices, or workout rooms.


Key Design Features
The renovation emphasizes the home’s connection to its natural surroundings through thoughtful design details. A horizontal window above the kitchen cooktop frames views of mature rhododendrons, while a floor-to-ceiling glass dining nook offers direct access to the existing deck and tea house pavilion.


In the living room, the fireplace has been relocated to create a focal point that orients seating towards the forest and Mount Saint Helens on clear days. The former fireplace area now houses a built-in bar and tech closet, adding functionality to the space.


The primary suite introduces innovative design elements, such as fir slats above the doors that allow light to flow into the hallway and bathroom. The spacious primary bathroom features a Japanese soaking tub, a custom vanity, and transom windows that borrow light from the central skylight.


Integration of Light and Materiality
One of the renovation’s standout features is the nail-laminated wood roof, which extends to the central skylight. This design element not only enhances the structural and spatial clarity of the home but also creates a warm and inviting atmosphere.

Wood plays a central role in the renovation, serving as a unifying material throughout the home. Fir slats define the switchback stair volume, while custom-built features, such as the dining bench and primary bathroom vanity, highlight the craftsmanship of the design.

The skylight serves as a connective element, providing natural light to all upper-level rooms and creating a visual link between the home’s spaces. On the lower level, floor-to-ceiling glazing ensures a seamless connection to the forested landscape, further blurring the boundary between indoors and outdoors.


A Modern Tribute to Mid-Century Design
The Mori House renovation by SHED Architecture & Design is a masterful example of how mid-century modern architecture can be reimagined for contemporary living. By respecting the original design while incorporating modern elements, the project achieves a perfect balance of form, function, and context.



This thoughtful renovation not only preserves the architectural legacy of Saul Zaik but also creates a timeless home that celebrates natural light, materiality, and the beauty of its forested surroundings.



All Photographs are work of Rafael Soldi, SHED Architecture & Design
Popular Articles
Popular articles from the community
Alton Cliff House: A Harmonious Retreat by f2a Architecture in Lake Country, Canada
Alton Cliff House blends corten steel, prefabrication, and sustainable design, creating a luxurious, energy-efficient retreat perched on Canadian cliffs.
Inverted Architecture Installation by Studio Link-Arc: Exploring the Intersection of Architecture and Living Organisms
Inverted Architecture Installation by Studio Link-Arc blends mycelium, sustainability, inverted design, ecological cycles, and urban adaptive architecture in Shenzhen.
Free Architecture Competitions You Can Enter Right Now
No entry fees, real prizes. Here are the best free architecture competitions open for submissions in 2026.
Similar Reads
You might also enjoy these articles
The Ken Roberts Memorial Delineation Competition (Krob)
As the most senior architectural drawing competition currently in operation anywhere in the world, it draws hundreds of entries each year, awarding the very best submissions in a series of medium-based categories.
Waterfront Redevelopment and Urban Revitalization in Mumbai: Forging a New Dawn for Darukhana
A transformative waterfront redevelopment project reimagining Darukhana’s shipbreaking heritage into an inclusive urban future.
OUT-OF-MAP: A Call for Postcards on Feminist Narratives of Public Space
Rhizoma Design and Research Lab invites artists, designers, architects, researchers, and students to reflect on how feminist perspectives can reshape public space. Selected works will be exhibited in Barcelona, October 2026. Submissions open until 15 April 2026.
Documentation Work on Buddhist Wooden Temple
Architectural syncretism and cultural hybridity: A comparative study of the Buddhist temples in Chattogram Hill tracks
Explore Architecture Competitions
Discover active competitions in this discipline
The International Standard for Design Portfolios
The Global Benchmark for Architecture Dissertation Awards
The Global Benchmark for Graduation Excellence
Challenge to reimagine the Iron Throne
Comments (0)
Please login or sign up to add comments
No comments yet. Be the first to comment!