The Opened “White Box” Art Museum, OCAT-B10 by MENG YAN | URBANUS
A former Shenzhen factory transformed into a flexible white-box museum, blending industrial memory, vertical circulation, and open-air galleries for contemporary art.
Located in Shenzhen’s OCT Loft creative district, The Opened “White Box” Art Museum (OCAT-B10) represents a landmark transformation of industrial heritage into a contemporary cultural institution. Designed by MENG Yan and URBANUS, the 6,109-square-metre renovation reimagines a former disk-production factory as a flexible, open-ended platform for artistic experimentation, public engagement, and urban memory.

Completed in 2022 after a fifteen-year design and approval process, the project embodies persistence, adaptability, and architectural restraint. Rather than imposing a radical new image, the architects preserved the industrial character of the original structure while subtly opening it to light, movement, and evolving cultural uses.

OCAT and the Legacy of Industrial Renewal
The OCT Contemporary Art Terminal (OCAT) is one of China’s pioneering contemporary art institutions. Founded in 2005, it emerged from the early transformation of Shenzhen’s Eastern Industrial Zone into what is now known as OCT Loft, a creative and cultural park that has become a model for adaptive reuse in China.


URBANUS played a key role in this transformation as early as 2003, when it converted a furniture warehouse into the first OCAT center. Building B10, originally designed for disk manufacturing, occupied a central position in the northern part of OCT Loft. Its renovation into OCAT-B10 continues this legacy of converting industrial infrastructure into cultural space, reinforcing the district’s identity as a hub for creative production.

A Fifteen-Year Evolution
The renovation of B10 began in 2007 and unfolded through multiple stages, including international design competitions, institutional changes, funding constraints, and regulatory delays. During this period, the building’s intended function shifted from a design center to a contemporary art museum, requiring substantial conceptual and spatial rethinking.

URBANUS responded with a flexible design approach, continuously revising the proposal in response to changing conditions. Over time, the project evolved from a more expressive architectural statement into a restrained, introspective intervention, one that prioritizes spatial adaptability and long-term relevance over visual spectacle.
This prolonged process ultimately shaped the project’s philosophical core: architecture as a patient framework for future cultural activity.


Retaining Volume, Reworking Space
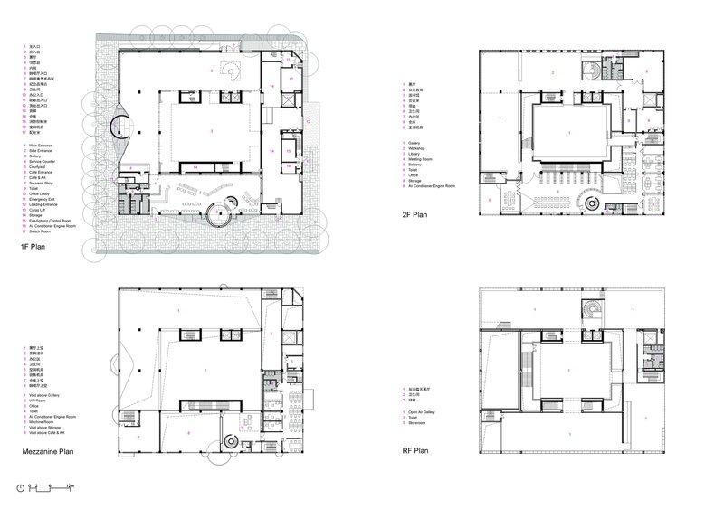
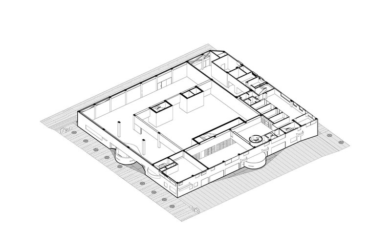
The final design preserves the original building’s overall volume and primary structural system. Rather than demolishing and rebuilding, the architects removed the central section of the factory and inserted a new vertical spatial sequence that links the building from ground to roof.

Three new concrete cores serve as the main structural additions, reinforcing the existing framework while enabling new circulation and programmatic arrangements. Two revolving staircases are placed in the north and south wings, connecting the first and second floors and extending to the upper levels. At the center, an L-shaped grand staircase rises dramatically to the third floor and rooftop.
Together, these stair systems choreograph visitors’ movement, transforming circulation into an experiential journey that gradually unfolds through varied spatial atmospheres.

The Museum as a Vertical Narrative
OCAT-B10 is conceived as a vertical museum, where exhibitions and public functions are distributed across multiple levels, each offering distinct spatial qualities.
On the ground floor, visitors enter through ceremonial circular and semi-circular spaces at the southern and western entrances. These geometries introduce a sense of ritual and transition, marking the passage from city to museum. This level houses the main exhibition hall, along with a café and art shop that can operate independently 24 hours a day, extending the museum’s presence into everyday urban life.


The second floor centers on a multifunctional exhibition hall. A fully enclosed, climate-controlled gallery occupies the western side, while the northern zone accommodates children’s art education facilities. On the southern side, a terrace supports the library and art salon, encouraging informal study, dialogue, and cultural exchange.
The third floor contains a sequence of double-height exhibition halls reaching up to 8.4 meters. Here, portions of the roof were removed to create open-air galleries, blurring the boundary between interior and exterior exhibition space.

Flexibility and the “White Box”
The concept of the “white box” refers to the museum’s deliberate neutrality. Exhibition halls are designed as simple, standardized, industrial-like spaces that prioritize adaptability. Movable walls and doors enable curators to create multiple circulation routes and exhibition configurations, encouraging unexpected encounters and varied spatial narratives.

This flexible system supports a wide range of artistic practices, from traditional displays to immersive installations and site-specific works, allowing the museum to evolve alongside contemporary art itself.
Rather than prescribing how art should be experienced, the architecture provides a neutral yet powerful container that empowers artists and curators.


Circular Forms and Spatial Memory
A distinctive feature of OCAT-B10 is the recurring use of circular and semi-circular spaces. Derived from the vocabulary of the original industrial building, these forms appear at multiple scales, traversing interior and exterior zones.

They serve both functional and symbolic roles: organizing movement, framing views, and referencing the building’s former role in disk production. Through these geometries, old and new spatial languages interweave, embedding industrial memory within contemporary cultural architecture.
The Rooftop as Cultural Landscape
The rooftop open-air galleries represent the project’s most dramatic spatial transformation. Visitors reach this level via the monumental central staircase, gradually ascending through increasingly expansive spaces.


Upon arrival, the city recedes. Open to the sky and enclosed by permeable metal mesh walls, the rooftop offers a sense of release from everyday urban density. It becomes a platform for informal gathering, spontaneous interaction, and experimental art installations.
This elevated landscape enables new forms of artistic production that respond directly to climate, light, and atmosphere, expanding the museum’s curatorial possibilities.

Permeable Facades and Environmental Mediation
The third-floor exterior walls are constructed with double-layered stretched metal mesh. This semi-transparent envelope allows air, light, and visual connections to pass through while filtering noise and visual clutter from the surrounding industrial context.


Strategically placed openings frame distant mountains and nearby trees, reconnecting visitors with the region’s natural landscape. In this way, the building mediates between the dense urban fabric of Shenzhen and its broader ecological setting.
Preserving Industrial Memory
The original factory façade has been fully preserved and painted white, reinforcing the “white box” identity while maintaining traces of industrial history. Many existing windows were converted into recessed blind openings to meet museum requirements for light control.

Most notably, the façade retains the disc-like forms associated with the building’s former function. These subtle imprints act as mnemonic devices, embedding urban memory within an abstract architectural volume.
Inside, original structural columns remain exposed, their raw textures contrasting with the refined exhibition spaces. Industrial traces are not erased, but sealed within a contemporary framework, transformed into carriers of collective memory.


Architecture as a Cultural Framework
OCAT-B10 is less a finished object than an open system. Its restrained material palette, neutral spaces, and adaptable infrastructure position it as a long-term platform for artistic production rather than a static monument.

By preserving industrial heritage, inserting new spatial sequences, and opening the building vertically and horizontally, URBANUS has created a museum that is simultaneously grounded in history and oriented toward the future.



All the Photographs are works of TAL, Right Angle Image
Popular Articles
Popular articles from the community
RDTH architekti Rips Out Nearly Every Wall in a Prague Apartment and Replaces Them with Furniture
A 101-square-meter post-war flat in Prague trades rigid partitions for a single rotated furniture block, curtains, and glass concrete.
20 Most Popular Office Building Projects of 2025
From biophilic workspaces in India to net-positive energy offices in New Delhi, 20 office building projects that defined architecture in 2025.
Rojkind Arquitectos and Think Parametric Build a Glueless Pavilion from 67 Interlocking Panels
A serpentine fiber-cement installation in Chapultepec Park celebrates a decade of architectural media in Mexico City.
3dor Concepts Wraps a Kerala Home in Mirrored Concrete Arcs Around a Courtyard Tree
In the Western Ghats foothills of Thamarassery, a 270 m² single-story house uses two curved volumes to frame nature as its center.
Similar Reads
You might also enjoy these articles
Olio Towers: A Mid-Rise for Performers That Fuses Housing, Rehearsal, and Stage
Located blocks from Houston's Theater District, this modular tower stacks living units around a central performance atrium.
Oasis: Modular Green Housing Carved into Dhaka's Urban Fabric
A shortlisted Plugin Housing entry reclaims unauthorized settlements in Dhaka with stepped concrete volumes, green roofs, and ventilation-driven design.
Black Hole: A Floating Megastructure for the Post-Physical Era
Emiliano Mazzarotto envisions a spherical, self-scaling arena where e-sports, digital hotels, and holographic stadiums replace traditional public space.
Compact & Sustainable Living in Piraeus: A Four-Level Family Home Built Around Light and Air
A narrow townhouse in one of Greece's densest port cities uses a central atrium and passive strategies to house three generations under one roof.
Explore Architecture Competitions
Discover active competitions in this discipline
The International Standard for Design Portfolios
The Global Benchmark for Architecture Dissertation Awards
The Global Benchmark for Graduation Excellence
Challenge to design an urban locus of culture and heritage
Comments (0)
Please login or sign up to add comments
No comments yet. Be the first to comment!