The Shop Downstairs: Redefining Small Retail Store Design in Singapore
The Shop Downstairs reimagines small retail design, blending functionality with local identity in a vibrant Singaporean community.
A Neighborhood Gem
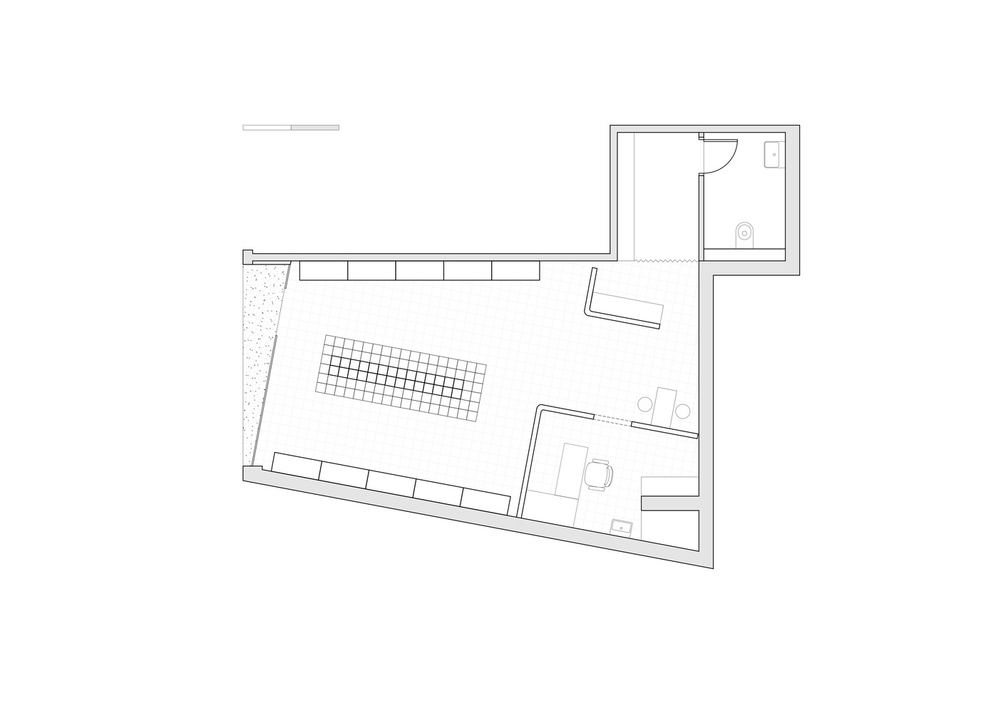
Nestled in a lively Singaporean community, The Shop Downstairs by LAR+D is an innovative take on small retail design. This optical store transforms a compact 58 m² space into an inviting and functional environment that celebrates the essence of local architecture while embracing modern aesthetics. With its skewed entrance, modular components, and thoughtful material choices, the design creates a seamless shopping experience that is both approachable and visually striking.


A Playful Entrance: Drawing Customers In
The shop's off-center entrance is a whimsical nod to Singapore’s public housing commercial hubs. It invites customers through a skewed foyer that immediately sets a welcoming tone. This clever architectural detail disrupts traditional storefront layouts, enticing curiosity while establishing a distinctive identity.


Material Palette: Blending Heritage with Modernity
The material choices pay homage to the textures and tones of older Singaporean housing estates. Terracotta tiles anchor the space, extending their warm, earthy hues to the central island display. This integration fosters a cohesive visual language that connects the store's interior with its surroundings. The familiar materials evoke a sense of nostalgia, creating a connection between the shop and its community.


Modular Design: Meeting Challenges with Innovation
To address the constraints of a tight construction timeline, modular display units were prefabricated off-site and assembled on location. These displays, positioned along the shop's edges, maximize functionality while maintaining an open-plan layout. Rounded edges soften the shop’s orthogonal geometry, striking a balance between its skewed entryway and the rectilinear structure.


Light and Space: Enhancing a Compact Interior
Despite its small size, the store maintains an airy, spacious feel through the use of glass block partitions. These translucent dividers create subtle separations for private areas while allowing natural light to filter through. This design decision preserves the openness of the shop, fostering an inviting ambiance that feels larger than its physical dimensions.


The Role of Aesthetic and Functionality
The design harmonizes practical considerations with a clean, contemporary aesthetic. By integrating functional elements like modular displays and flexible partitions into the design, the space becomes both efficient and visually appealing. The result is a retail experience that feels both modern and rooted in the community’s identity.


Community Connection: Celebrating Local Identity
The Shop Downstairs stands out not only for its design but also for its cultural sensitivity. By embracing materials and design elements familiar to the local community, the store becomes more than a retail space—it becomes a part of the neighborhood fabric. This thoughtful integration enhances its connection to the surrounding area while offering a unique shopping environment.


A New Standard for Small Retail Design
LAR+D’s The Shop Downstairs is a masterclass in how architecture can transform a small space into an impactful design statement. Through its innovative use of materials, modular design, and community-inspired aesthetic, the project redefines what a small retail store can achieve. It is a testament to how architecture can create spaces that are functional, beautiful, and deeply connected to their cultural context.

All Photographs are work of Studio Periphery
Popular Articles
Popular articles from the community
Solar Steam: A Climate-Responsive Architecture That Redefines the Monument
A climate-responsive memorial architecture that transforms heat, decay, and time into a living system reflecting humanity’s ecological impact.
Treehouse Apartment: A Warm Timber Interior Blending Craft, Play, and Contemporary Living
Warm timber apartment with integrated treehouse, combining natural materials, craftsmanship, and playful design to create a flexible, family-oriented living environment.
The Ken Roberts Memorial Delineation Competition (Krob)
As the most senior architectural drawing competition currently in operation anywhere in the world, it draws hundreds of entries each year, awarding the very best submissions in a series of medium-based categories.
On the Brooks House by Monsoon Collective – A Contemporary Kerala Home Rooted in Tradition
Kerala home blending tradition and modernity with water-inspired design, brick architecture, courtyard planning, and sustainable rainwater harvesting strategies.
Similar Reads
You might also enjoy these articles
The Ken Roberts Memorial Delineation Competition (Krob)
As the most senior architectural drawing competition currently in operation anywhere in the world, it draws hundreds of entries each year, awarding the very best submissions in a series of medium-based categories.
Waterfront Redevelopment and Urban Revitalization in Mumbai: Forging a New Dawn for Darukhana
A transformative waterfront redevelopment project reimagining Darukhana’s shipbreaking heritage into an inclusive urban future.
OUT-OF-MAP: A Call for Postcards on Feminist Narratives of Public Space
Rhizoma Design and Research Lab invites artists, designers, architects, researchers, and students to reflect on how feminist perspectives can reshape public space. Selected works will be exhibited in Barcelona, October 2026. Submissions open until 15 April 2026.
Documentation Work on Buddhist Wooden Temple
Architectural syncretism and cultural hybridity: A comparative study of the Buddhist temples in Chattogram Hill tracks
Explore Architecture Competitions
Discover active competitions in this discipline
The International Standard for Design Portfolios
The Global Benchmark for Architecture Dissertation Awards
The Global Benchmark for Graduation Excellence
Challenge to reimagine the Iron Throne
Comments (0)
Please login or sign up to add comments
No comments yet. Be the first to comment!