T.House: Urban Micro Living Architecture in Osaka
T.House redefines urban micro living architecture in Osaka, blending compact design, flexible spatial use, and community integration within a dynamic urban context.
Rethinking Small-Scale Urban Living
In the heart of Osaka, where the urban fabric is dense and intricately layered, the transformation of a compact, nearly 50-year-old residence into T.House represents a forward-thinking approach to urban micro living architecture. Designed by Ogawaa Design Studio, this project exemplifies how limited space can be reimagined to foster openness, adaptability, and a dynamic relationship with the surrounding neighborhood.



A Context Rooted in Osaka’s Urban Character
Osaka’s older neighborhoods often exhibit an organic, self-evolved character, blending the old with the new in an unpredictable yet cohesive manner. The city's intimate streetscapes, where homes are often adjoined and infused with personal histories, create a unique sense of community. T.House emerges from this context as a response to both the site’s limitations and the social fabric of the neighborhood.


Retaining only the foundation, steel frame, and two exterior walls that integrate with adjacent buildings, the architects reconstructed the house with a flexible, open-ended layout. While the site offers high convenience, its compact footprint posed a challenge in maximizing livable space.


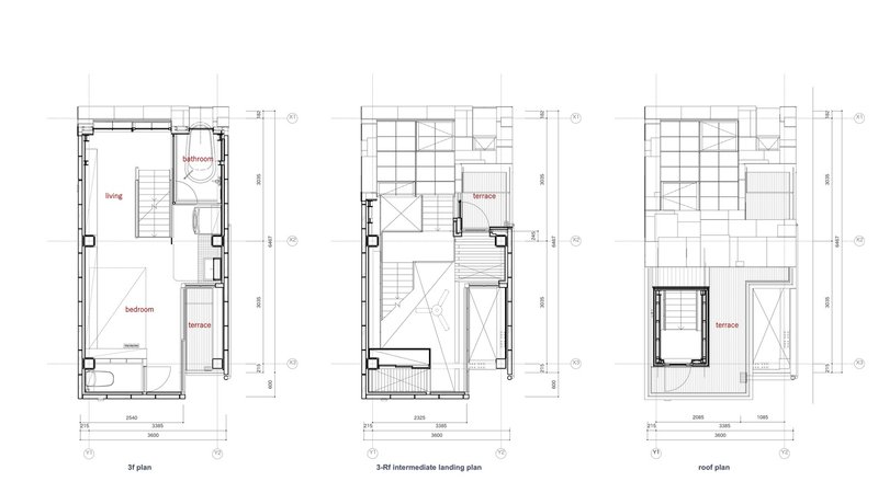
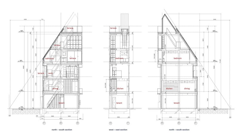
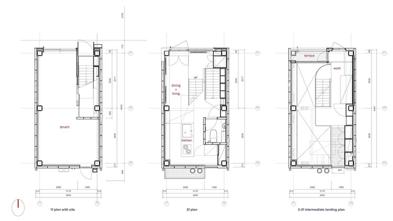
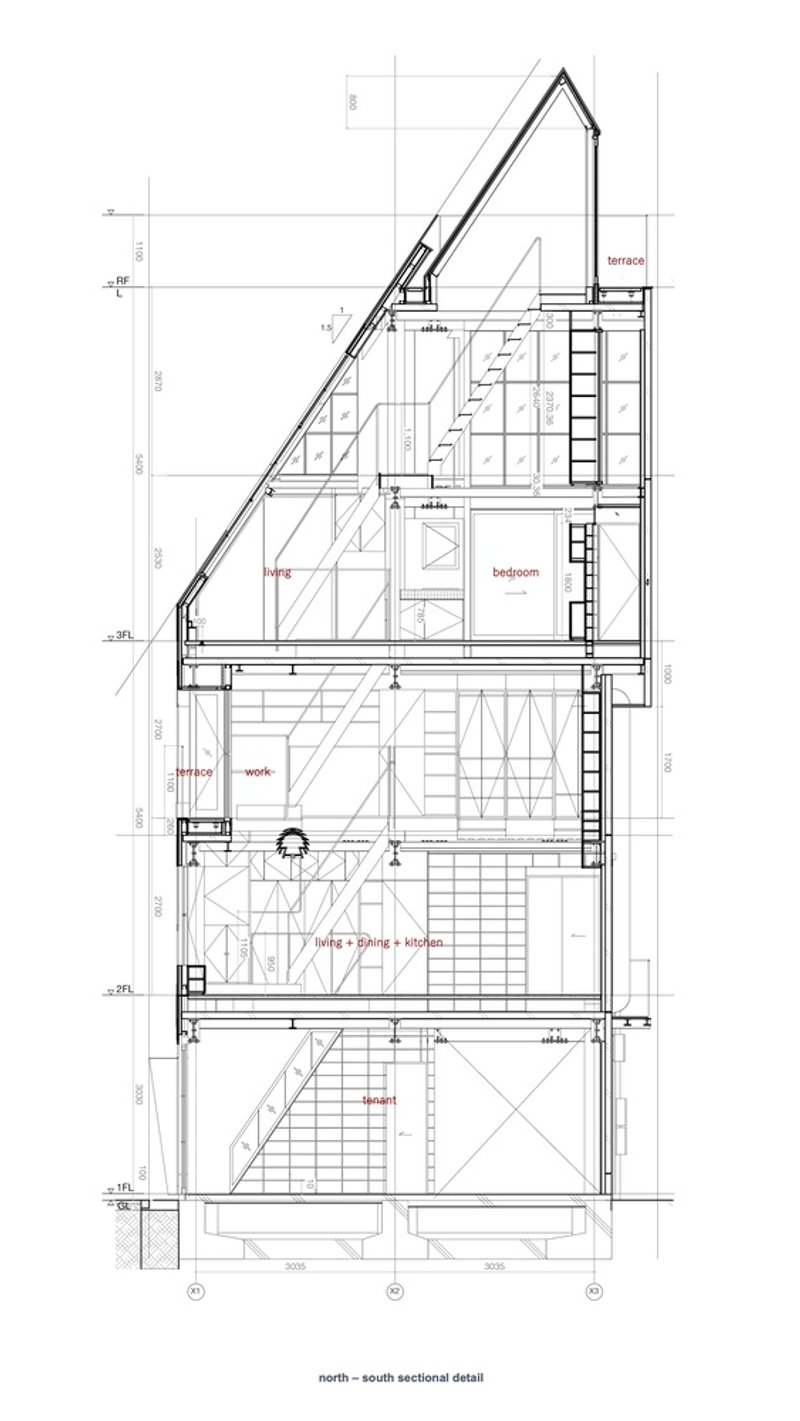
Vertical Expansion and Spatial Fluidity
Originally a five-story structure, the redesign consolidates the space into three functional levels while incorporating double-height atriums. This adjustment not only addresses legal constraints but also introduces a perception of vertical openness. A terrace, positioned as an intermediate layer, creates an illusion of additional floors, enhancing both the aesthetic and functional aspects of the building.


At the core of the design is a stairway that acts as a central spine, seamlessly connecting all levels. Instead of relegating stairs to a secondary role, they become integral to the living environment, ensuring that movement within the house is an experience rather than just a necessity. Through this spatial arrangement, privacy gradually increases from the lower to the upper floors while maintaining a visual and functional link to the street and the community.


Integration of Home, Business, and Community
T.House is designed not only as a private residence but as a hybrid space that can accommodate commercial use. The second floor is structured to be rented out, provided a trusted relationship exists between the occupants. This fluid approach to spatial boundaries encourages a form of urban living where private and public functions coexist harmoniously.



The façade design reflects this concept, blurring the distinction between the store and the residence while fostering a sense of engagement with the town. Large openings create a direct connection to the street, reinforcing the idea that the home is not an isolated entity but an extension of the neighborhood.



Material Palette: A Fusion of Old and New
In line with Osaka’s urban patchwork of aging structures and contemporary interventions, T.House employs a mix of reclaimed and new materials. This interplay generates a rich architectural narrative, where surfaces gain character over time. Elements that display signs of wear coexist with modern finishes, crafting an environment that feels both nostalgic and adaptable.


The stairway, a defining feature of the project, presents an unexpected material sequence. Steel, glass, and textured concrete converge in a way that encourages imaginative use of space. As the house evolves, the accumulation of objects and experiences further deepens its identity, reinforcing the idea that architecture is a living entity shaped by its inhabitants.

A Secret Base in the City
Despite its exposure to street life, T.House fosters a sense of retreat. The architectural composition creates a paradoxical atmosphere—open yet enclosed, bustling yet intimate. This delicate balance allows residents to feel deeply connected to their environment while maintaining a sense of personal sanctuary.

By framing views of the surrounding urban landscape and introducing elements of natural light and airflow, the design transforms what could have been a constricted space into an adaptable, engaging living environment.

A Model for Future Urban Micro Living
T.House exemplifies how urban micro living architecture can be both practical and poetic. It challenges conventional notions of spatial hierarchy, proving that even the most constrained sites can be transformed into vibrant, livable spaces. Through its flexible layout, material exploration, and dynamic relationship with the city, the project offers a vision for the future of compact urban living.

As cities continue to densify, projects like T.House demonstrate how thoughtful design can reshape urban life, offering new models for sustainable and community-integrated housing. The project stands as a testament to the potential of small-scale architecture to contribute meaningfully to the evolving identity of a city.

All Photographs are works of Akira Ito
Popular Articles
Popular articles from the community
Art 1 Office Strips Athens Back to Its Bones
Neiheiser Argyros transforms a 40-year-old Athens office building into a vivid, materially rich workplace anchored by red steel, exposed concrete, and roof
KCAP and DCA Architects Build a Stepped Urban Village on Singapore's King's Dock Waterfront
A 26,000 square meter residential development in Singapore trades tower isolation for terraced courtyards and a planted promenade along the harbor.
Guangzhou's Twin Towers Interiors Move Like Water
DuShe Architectural Design shapes the lobbies of a massive Guangzhou transit hub with undulating ceilings and deep geological materiality.
CTA | Creative Architects Designs Triangular Floating Shelters for Vietnam's Flood-Ravaged Communities
A timber-louvered triangular shelter rises on concrete pontoons to keep Vietnamese families safe and together when floodwaters come.
Similar Reads
You might also enjoy these articles
Filtering Space: A Gradual Spatial Experience
From urban intensity to spatial calm.
The Ken Roberts Memorial Delineation Competition (Krob)
As the most senior architectural drawing competition currently in operation anywhere in the world, it draws hundreds of entries each year, awarding the very best submissions in a series of medium-based categories.
Waterfront Redevelopment and Urban Revitalization in Mumbai: Forging a New Dawn for Darukhana
A transformative waterfront redevelopment project reimagining Darukhana’s shipbreaking heritage into an inclusive urban future.
OUT-OF-MAP: A Call for Postcards on Feminist Narratives of Public Space
Rhizoma Design and Research Lab invites artists, designers, architects, researchers, and students to reflect on how feminist perspectives can reshape public space. Selected works will be exhibited in Barcelona, October 2026. Submissions open until 15 April 2026.
Explore Architecture Competitions
Discover active competitions in this discipline
The International Standard for Design Portfolios
The Global Benchmark for Architecture Dissertation Awards
The Global Benchmark for Graduation Excellence
Challenge to reimagine the Iron Throne
Comments (0)
Please login or sign up to add comments
No comments yet. Be the first to comment!