Training Center Residence and Workshops for Apprentices: A Modern Architectural Evolution in Bordeaux
A comprehensive exploration of the Training Center Residence and Workshops for Apprentices in Bordeaux, blending old and new architecture to support apprentices.
The Training Center Residence and Workshops for Apprentices by Atelier Tequi Architects represents an innovative and functional approach to modern architecture in Bordeaux. Situated in the Jallère district, this project breathes new life into a historical site while maintaining a dialogue between the old and new. The design blends education, craftsmanship, and community into a sustainable, aesthetic, and functional environment.






Project Overview
The project centers around the Maison des Compagnons du Devoir et du Tour de France, a building that houses training spaces, residences, and workshops for apprentices. This center is located in the transforming Jallère district of Bordeaux, which is marked by green spaces and evolving architectural developments. The site previously housed administrative offices for the Assedic du Sud-Ouest funds, constructed in 1978 by architect Raymond Mothe.







Key Design Elements and Layout
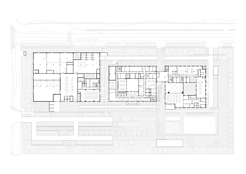
Atelier Tequi Architects’ approach is centered on blending existing structures with new architectural volumes. The project consists of three main parts: the central building, the new extension, and the workshop building.



Central Building Restructuring
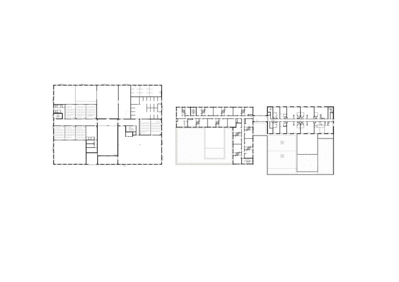
The existing central building has been preserved and renovated to accommodate the administration and reception spaces. Offices and coworking areas are located within this central volume. A significant design feature is the creation of a central patio, which brings natural light into the building's core, fostering a vibrant, airy environment for the users. The upper floors house accommodations for the apprentices, providing them with a comfortable living space.






New Extension: A Hub for Collaboration
The southern extension replaces older structures and features communal spaces, including a cafeteria, kitchen, and dining room, along with training workshops dedicated to the culinary, bakery, and pastry arts. These spaces are designed for hands-on learning, enabling apprentices to develop their craft in a dynamic, well-lit environment. The upper floors of this building are dedicated to residential spaces, offering both privacy and accessibility to the facilities below.




Workshops for Skilled Trades
The workshop building is positioned at the northeast corner of the site, forming an urban front along Avenue de la Jallère. It includes large, double-height spaces designed for training in construction and various skilled trades. Classrooms on the mezzanine level provide additional space for theory-based learning. The design incorporates industrial references, notably through the use of a shed roof structure and the inclusion of glass roofs to maximize daylight penetration and create an optimal working environment.




Materials and Environmental Design
A central theme in the design of the Training Center Residence and Workshops for Apprentices is sustainability and the use of local, natural materials. The preservation of the existing building structure involves the re-use of concrete panels, while new elements incorporate timber frame construction, further emphasizing environmental considerations. The facade of the new extension is clad with vertical timber battens, connecting the new and old parts of the building visually and symbolically. This use of wood creates a harmonious relationship with the natural surroundings, helping the building blend into the green landscape.


The integration of wood, both as a structural and aesthetic element, is key in this project. Not only does it contribute to the warmth of the building's exterior, but it also supports the concept of sustainable architecture. The timber frame construction complements the existing concrete frame of the central building and reinforces the design's commitment to maintaining a strong connection to the environment.



Landscaping and Community Integration
The surrounding landscape plays a crucial role in this project, offering outdoor spaces that encourage relaxation and community engagement. Two hectares of green space have been developed, featuring vegetable gardens, a city stadium, wooded paths, and a park that leads to the entrance square. This integration of nature creates a sense of tranquility and helps foster a balanced relationship between the built environment and the surrounding greenery.




The Training Center Residence and Workshops for Apprentices stands as a testament to the power of thoughtful architectural design that prioritizes sustainability, functionality, and community engagement. Atelier Tequi Architects have successfully re-imagined an existing site to create a vibrant, modern space that not only supports the educational needs of apprentices but also enhances the local environment of Bordeaux’s Jallère district.








Popular Articles
Popular articles from the community
The Ken Roberts Memorial Delineation Competition (Krob)
As the most senior architectural drawing competition currently in operation anywhere in the world, it draws hundreds of entries each year, awarding the very best submissions in a series of medium-based categories.
Inverted Architecture Installation by Studio Link-Arc: Exploring the Intersection of Architecture and Living Organisms
Inverted Architecture Installation by Studio Link-Arc blends mycelium, sustainability, inverted design, ecological cycles, and urban adaptive architecture in Shenzhen.
Fifth NRE Jazz Club – De Bever Architecten: Eindhoven’s Revitalized Cultural Hub
Historic gas factory transformed into Fifth NRE Jazz Club blending modern sustainability, jazz culture, dining, and heritage architecture seamlessly.
Similar Reads
You might also enjoy these articles
The Ken Roberts Memorial Delineation Competition (Krob)
As the most senior architectural drawing competition currently in operation anywhere in the world, it draws hundreds of entries each year, awarding the very best submissions in a series of medium-based categories.
Waterfront Redevelopment and Urban Revitalization in Mumbai: Forging a New Dawn for Darukhana
A transformative waterfront redevelopment project reimagining Darukhana’s shipbreaking heritage into an inclusive urban future.
OUT-OF-MAP: A Call for Postcards on Feminist Narratives of Public Space
Rhizoma Design and Research Lab invites artists, designers, architects, researchers, and students to reflect on how feminist perspectives can reshape public space. Selected works will be exhibited in Barcelona, October 2026. Submissions open until 15 April 2026.
Documentation Work on Buddhist Wooden Temple
Architectural syncretism and cultural hybridity: A comparative study of the Buddhist temples in Chattogram Hill tracks
Explore Architecture Competitions
Discover active competitions in this discipline
The International Standard for Design Portfolios
The Global Benchmark for Architecture Dissertation Awards
The Global Benchmark for Graduation Excellence
Challenge to reimagine the Iron Throne
Comments (0)
Please login or sign up to add comments
No comments yet. Be the first to comment!