Transforming a Modest House into a Stunning Home in the Vibrant 'Pol' Neighborhood
What Design Elements Can Elevate a Modest House in the 'Pol' Neighborhood?

In the heart of Ahmedabad's 'Pol' neighbourhood, a modest house stands out with its unique approach to compact living. The Clever House, as it is called, is a single-storey structure that replaces a dilapidated building with an exposed concrete monolith that cuts, folds and bends to articulate the facades. It is a coming together of traditional community-based housing settlements prevalent in western India, particularly Gujarat, and the ideas of modernism that have shaped the architectural landscape of the city.
The house's functional robustness emerges from the fabric of the resident's life and everyday routines, reminiscent of community-driven living in polls. Its existence resonates amicably with the scale of the neighbourhood as a small urban insert, unapologetically and in striking contradiction with its surroundings.
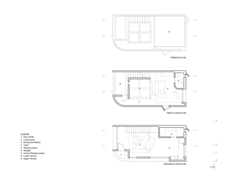
Upon entering the home, one is welcomed into a clear open space, bathed in the warm embrace of the sun. The skylights and deeply recessed windows on each side allow for a connection to the street without compromising the privacy of the room. The living, washroom, and cooking spaces on the ground floor are arranged in a linear spread, one after the other. The absence of a defining physical barrier or threshold enhances the character of versatility to a single space that can accommodate multiple functions.
The furniture, particularly the sitting units, frame the living space against the backdrop of an artistic staircase - each step an independent piece of metal finished in wood. Intricate details in elements like the staircase, spouts, grills, doors, and even the furniture, juxtapose and balance the solidity of exposed concrete.
Upstairs, a single bedroom space and bathroom cover the entire floor, overlooking the expansive and lively living space below. The absence of opaque boundaries allows the furniture to convey the extent of the transition space, leading to a small bridge serving as a reading nook, with a bookcase and a reading ledge, showered on with light by the open skylight.
The play of light and shadow frames each part of this home, enhancing its old-world charm of pol houses, presented with a new outlook to represent the time it was built in and the aspirations of the people who reside in it. The Clever House is a testament to the fact that a modest house can be cleverly designed to achieve comfort in compact spaces, while preserving the essence of community living and interaction with the street that is the binding thread of the 'Pol' neighbourhood's urban fabric.

























Popular Articles
Popular articles from the community
Atelier Macri Concept Store Interior Design by CASE-REAL
Atelier Macri store features a "ko" counter, walnut wood details, cork displays, blending retail, gallery, and seamless customer experiences.
An Miên Lumière Cafe by xưởng xép, Ho Chi Minh City, Vietnam
An industrial-inspired café where layered steel and warm light create a dynamic, immersive environment shaped by reflection, depth, and perception.
A Contemporary Take on Iranian Residential Architecture
A modern interior design in Mashhad that reinterprets brick, light, and spatial flow to create a warm, contemporary residential architecture.
Treehouse Apartment: A Warm Timber Interior Blending Craft, Play, and Contemporary Living
Warm timber apartment with integrated treehouse, combining natural materials, craftsmanship, and playful design to create a flexible, family-oriented living environment.
Similar Reads
You might also enjoy these articles
Zhuxi Wonderland: Reimagining Traditional Chinese Gardens by Doarchi Architects
Zhuxi Wonderland by Doarchi Architects reinterprets traditional Yangzhou gardens, integrating courtyards, pavilions, and tea houses in modern cultural design.
Doble Soga House: A Contemporary Brick Residence Rooted in Landscape in Quito, Ecuador
Brick house in Quito integrating nature, flexible living spaces, exposed materials, and rooftop terrace, creating warm contemporary architecture for modern family life.
Al Gharra Mosque in Medina Redefining Contemporary Islamic Architecture
Minimalist Medina mosque using concrete, light, and landscape to reinterpret Islamic worship spaces through symbolic spiritual transitions and contemporary architecture.
Viczonecode Villa by DDconcept – Tropical Family Living in Ho Chi Minh City
Tropical family villa in Ho Chi Minh City featuring courtyards, skylights, natural ventilation, elevated flooring, and seamless indoor–outdoor living surrounded by greenery.
Explore Architecture Competitions
Discover active competitions in this discipline
The International Standard for Design Portfolios
The Global Benchmark for Architecture Dissertation Awards
The Global Benchmark for Graduation Excellence
Challenge to reimagine the Iron Throne
Comments (0)
Please login or sign up to add comments
No comments yet. Be the first to comment!