Transforming History: Adaptive Reuse Architecture at The Schoolhouse / Rome Office
This article explores the transformative adaptive reuse architecture of The Schoolhouse / Rome Office, blending historical preservation with modern living in New Orleans.
The Essence of Adaptive Reuse in Architecture
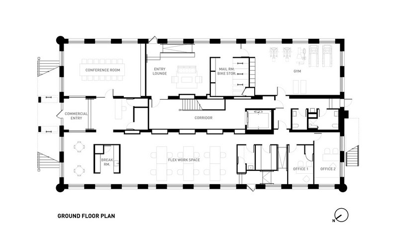
Adaptive reuse architecture is a sustainable approach that breathes new life into old buildings, preserving their historical essence while repurposing them for modern use. The Schoolhouse / Rome Office project in New Orleans, United States, stands as a prime example of this innovative practice, where a late Victorian schoolhouse has been transformed into multifamily housing. This project exemplifies how adaptive reuse architecture not only conserves structures but also revitalizes communities.


The Schoolhouse's Historical Significance and Transformation
Originally built in 1894, the McDonogh #30 School served the Third Ward of New Orleans for nearly fifty years. Over time, this vibrant example of late Victorian architecture, boasting a mix of Italianate, Romanesque, Eastlake, and Neo-Classical elements, underwent numerous renovations, stripping it of its original façade and interior charm. Left vacant for two decades, the building faced deterioration until it was given a new lease on life through adaptive reuse architecture.



Restoration and Innovation
The restoration aimed to return the building to its 1894 glory, including the original exterior appearance and interior layout. The innovative "Box-for-Living" concept introduces a self-contained living unit within each classroom, featuring modern amenities while preserving the historical character of the space. These Boxes, central to the adaptive reuse architecture philosophy, ensure that the building's legacy is maintained while providing contemporary comfort and efficiency.


A Synergy of Old and New
The Schoolhouse / Rome Office project is a testament to the seamless integration of historical preservation and modern living. The restoration involved meticulous attention to historical details, including tuckpointing masonry with period-appropriate mortar and replicating woodwork to original specifications. Meanwhile, modern elements like stainless steel ladders and quartz surfaces blend harmoniously with the building's Victorian charm, demonstrating the potential of adaptive reuse architecture to honor the past while embracing the future.


Bringing Light and Life Back
The previously unused attic has been converted into spacious 2-bedroom apartments, featuring skylights that invite natural light and offer views of the city skyline. This addition underscores the innovative approach of adaptive reuse architecture, highlighting how underutilized spaces can be transformed into valuable living areas.

A Model for Sustainable Development
The Schoolhouse / Rome Office is more than just a building; it's a beacon for adaptive reuse architecture, showcasing how historical buildings can be preserved and repurposed for new generations. By embracing the principles of adaptive reuse, architects and developers can contribute to sustainable development and cultural preservation, making our cities more vibrant and livable.
As we continue to explore the possibilities of adaptive reuse architecture, projects like The Schoolhouse / Rome Office serve as inspiring examples of how the past and present can coexist, bringing together the best of both worlds for a sustainable, culturally rich future.



All photographs are work of Neil Alexander
Popular Articles
Popular articles from the community
A Contemporary Take on Iranian Residential Architecture
A modern interior design in Mashhad that reinterprets brick, light, and spatial flow to create a warm, contemporary residential architecture.
Flamboyant House by Juliana Camargo + Prumo Projetos
Modern Brazilian house integrating existing tree, pool, and volumes with glass, wood, and transitional spaces blending interior, exterior, and landscape seamlessly.
Solar Steam: A Climate-Responsive Architecture That Redefines the Monument
A climate-responsive memorial architecture that transforms heat, decay, and time into a living system reflecting humanity’s ecological impact.
The Ken Roberts Memorial Delineation Competition (Krob)
As the most senior architectural drawing competition currently in operation anywhere in the world, it draws hundreds of entries each year, awarding the very best submissions in a series of medium-based categories.
Similar Reads
You might also enjoy these articles
The Ken Roberts Memorial Delineation Competition (Krob)
As the most senior architectural drawing competition currently in operation anywhere in the world, it draws hundreds of entries each year, awarding the very best submissions in a series of medium-based categories.
Waterfront Redevelopment and Urban Revitalization in Mumbai: Forging a New Dawn for Darukhana
A transformative waterfront redevelopment project reimagining Darukhana’s shipbreaking heritage into an inclusive urban future.
OUT-OF-MAP: A Call for Postcards on Feminist Narratives of Public Space
Rhizoma Design and Research Lab invites artists, designers, architects, researchers, and students to reflect on how feminist perspectives can reshape public space. Selected works will be exhibited in Barcelona, October 2026. Submissions open until 15 April 2026.
Documentation Work on Buddhist Wooden Temple
Architectural syncretism and cultural hybridity: A comparative study of the Buddhist temples in Chattogram Hill tracks
Explore Office Building Competitions
Discover active competitions in this discipline
The International Standard for Design Portfolios
The Global Benchmark for Architecture Dissertation Awards
The Global Benchmark for Graduation Excellence
Challenge to reimagine the Iron Throne
Comments (0)
Please login or sign up to add comments
No comments yet. Be the first to comment!