University Art Building Architecture: Sosho-Kan at Kyoto University of the Arts by Takenaka Corporation
Sosho-Kan is a thoughtfully designed university art building fostering community, natural light, and connection within Kyoto University of the Arts.
Bringing Life and Connection to a New Academic Landmark
The Sosho-Kan building at Kyoto University of the Arts, designed by Takenaka Corporation and completed in 2024, stands as a contemporary academic facility dedicated to art education. Situated along Shirakawa Road, one of Kyoto’s major thoroughfares, the building acts as a vital interface between the university campus and the surrounding urban and residential fabric. It houses a four-year art education program, thoughtfully designed to cultivate student engagement, collaboration, and a deep sense of place.



Architectural Concept: Continuity, Community, and Spatial Interaction
The architectural vision for Sosho-Kan draws inspiration from the dynamic interactions observed in the university’s main campus. These include fragmented open spaces like outdoor staircases, shaded vestibules, and alcoves that serve as natural gathering points. The design aims to extend these spatial qualities into the new building by fostering continuity and connection with outdoor environments. This emphasis on community, informal encounters, and the embedding of memories in place creates a vibrant atmosphere for students and faculty alike.



Layered Spatial Organization and Symbolic Design Elements
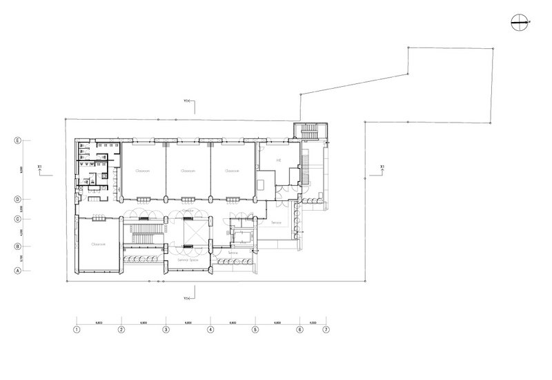
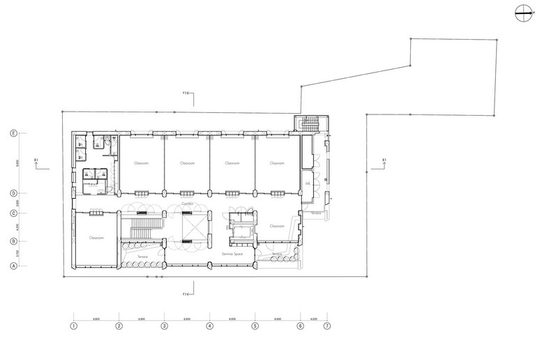
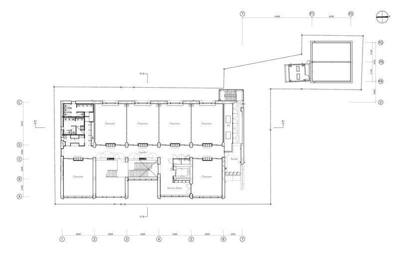
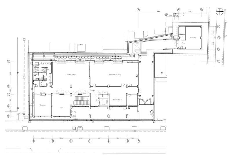
The 3,778 m² building is structured into three primary horizontal layers running parallel to Shirakawa Road: commons, corridors, and classrooms. These layers intersect perpendicularly with brick-tiled walls featuring symbolic arches. These arches punctuate the monotony of the central corridor and create a rhythmic sequence of openings that frame glimpses into daily academic activities. The arches also visually symbolize connection and flow, transforming the corridor into an experiential alleyway that enhances intimacy and campus identity.




Central Atrium: A Hub of Light and Interaction
At the heart of Sosho-Kan lies a large four-story atrium crowned by a glass-block skylight. This atrium functions as the building’s main circulation hub, infusing the interior with soft, indirect natural light. Connected brick-tiled walls seamlessly blend interior and exterior spaces, reinforcing the building’s openness. The atrium also incorporates passive design strategies such as drawing cooled air from underground levels during summer to reduce thermal load, and enabling natural ventilation during milder seasons. This dual approach enhances energy efficiency while creating a healthy and comfortable learning environment.




Terraces and Transitional Spaces Enhancing Campus Life
The northeastern volumes of the building are stepped back due to local zoning regulations, forming terraces that serve as transitional zones between indoor and outdoor spaces. These terraces act as informal gathering spots, strengthening the connection to nature and encouraging social interaction. Additionally, the site integrates a small perpendicular street leading to underground bicycle parking, establishing an inviting threshold that connects the campus to the neighborhood.





Harmonizing Campus, Community, and Nature
Sosho-Kan exemplifies a thoughtful approach to university art building architecture by harmonizing functional educational spaces with vibrant community areas and environmental sensitivity. The design fosters spontaneous student encounters, a sense of belonging, and ongoing engagement with the campus surroundings. It encapsulates the essence of academic life while respecting Kyoto’s urban context and natural environment.




A New Model for Academic Art Architecture
Takenaka Corporation’s Sosho-Kan at Kyoto University of the Arts elevates university art building architecture through its layered spatial organization, symbolic design, and sustainable features. This building creates an enduring place where students’ memories, creativity, and connections flourish over their four years of study, setting a precedent for future academic buildings that balance community, nature, and architectural identity.






All Photographs are works of Taizo Furukawa
Popular Articles
Popular articles from the community
Atelier Macri Concept Store Interior Design by CASE-REAL
Atelier Macri store features a "ko" counter, walnut wood details, cork displays, blending retail, gallery, and seamless customer experiences.
An Miên Lumière Cafe by xưởng xép, Ho Chi Minh City, Vietnam
An industrial-inspired café where layered steel and warm light create a dynamic, immersive environment shaped by reflection, depth, and perception.
Solar Steam: A Climate-Responsive Architecture That Redefines the Monument
A climate-responsive memorial architecture that transforms heat, decay, and time into a living system reflecting humanity’s ecological impact.
The Ken Roberts Memorial Delineation Competition (Krob)
As the most senior architectural drawing competition currently in operation anywhere in the world, it draws hundreds of entries each year, awarding the very best submissions in a series of medium-based categories.
Similar Reads
You might also enjoy these articles
Bamboo Housing Challenge 2026: Design Affordable, Sustainable Homes Using Bamboo
An international design competition by Bamboo U and IBUKU inviting architects and designers to reimagine affordable housing using bamboo — with the winning design built full-scale in Bali.
Computational Design & Education: Beegraphy Design Awards Introduces 7th Category (Featuring Jiyun's Innovative Approach)
Dive into Beegraphy’s 7th Design Awards category, where computational design meets education to create immersive, interactive learning tools, inspired by Jiyun’s work.
From Parametric Lighting to Urban Furniture: Join the 2nd Workshop in Beegraphy’s Computational Design Series
Dive into Cutting-Edge Design Techniques and Practical Applications with Industry Experts
Introducing Sphere by UNI: Pioneering a New Era in AEC Industry
Unlocking Global Potential with BIM and Agile Management
Explore Architecture Competitions
Discover active competitions in this discipline
The International Standard for Design Portfolios
The Global Benchmark for Architecture Dissertation Awards
The Global Benchmark for Graduation Excellence
Challenge to reimagine the Iron Throne
Comments (0)
Please login or sign up to add comments
No comments yet. Be the first to comment!