Urban Housing Design in Porto: The General Silveira Building by ATA - Atelier Tiago Antero
Explore ATA's General Silveira Building, a harmonious urban housing design in Porto, integrating history with innovation.
In the heart of Porto, Portugal, ATA - Atelier Tiago Antero has crafted an architectural marvel, the General SilArchitectural Concept:veira Building, seamlessly blending urban housing into the city's vibrant center. The project's core objective is to harmonize housing within the urban fabric while addressing the scale disruption of the surrounding void.





Architectural Concept
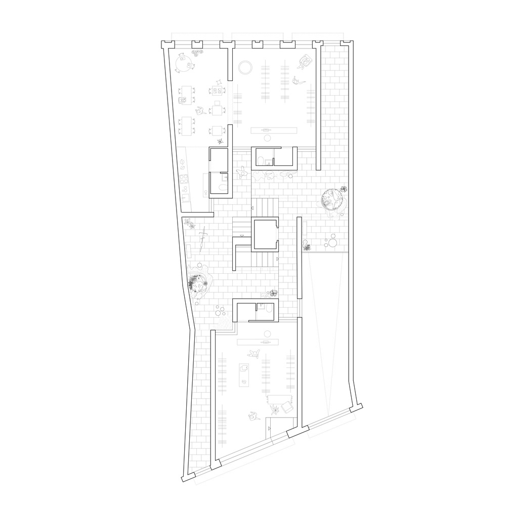
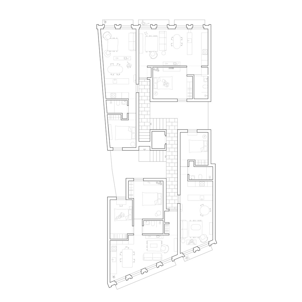
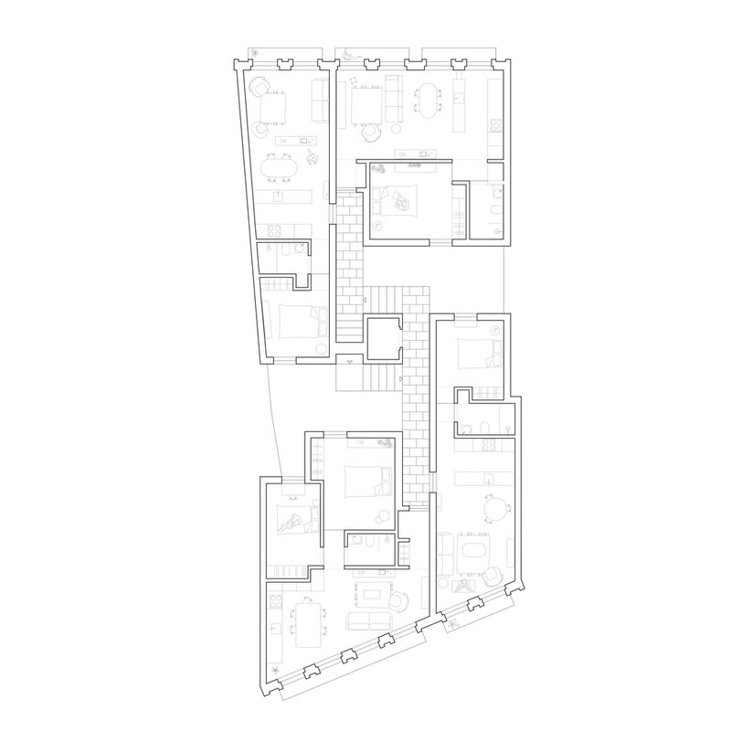
The architectural concept revolves around two volumes flanking the streets, creating a dynamic courtyard within the block. A central staircase emerges as a vital element, not only shaping the spatial perception but also defining building heights and establishing crucial altimetric relations with the surroundings.





Morphological Corollary
The typological distribution, featuring four apartments per floor, intentionally pays homage to the city's urban scale memory. This results in four volumes, each with four planes of roofs, reminiscent of the original plots and forming the project's distinctive fifth elevation.




Design Elements
The design intricately captures the Genius Loci, with meticulous attention to elevation metrics, tile color and patterns, and the spacing between windows. The casement openings, framed by concrete pilasters, echo the dynamic and tectonic characteristics of Porto's surrounding structures.


Integration of Public and Private Spaces
The ground floor serves as a physical and visual intermediary, seamlessly connecting public and private realms. This space not only facilitates the merging of commerce and housing but also acts as a pivotal point where streets intersect.


Residential Layout and Ventilation
The residential layout strategically positions social areas facing the street, fostering a connection with the urban environment. Simultaneously, private areas are oriented towards the central courtyard, ensuring a tranquil atmosphere and efficient transversal ventilation.















In essence, the General Silveira Building stands as a testament to urban housing design excellence in Porto, capturing the city's architectural dynamics and integrating seamlessly into its rich cultural fabric. This innovative project by ATA - Atelier Tiago Antero exemplifies the harmonious coexistence of historical context and contemporary design principles, shaping a distinctive landmark in the city's architectural landscape.
All Photographs are the work of José Campos
Popular Articles
Popular articles from the community
Split House: A Compact Urban Home Blending Privacy, Light, and Flexible Living in Japan
Compact Japanese home featuring DOMA space, flexible café potential, passive lighting, privacy zoning, and sustainable urban living design.
Rede Arquitetos Builds an Open-Air School in Fortaleza That Doubles as a Neighborhood Living Room
Educar II SESC-CE folds sports, dance, and community gathering into a courtyard campus wrapped in mesh and tropical color.
Marvila Apartment Renovation in Lisbon: A Bright Minimalist Attic Transformation by KEMA Studio
Bright attic transformed into minimalist Lisbon apartment with skylights, sustainable materials, open plan layout, and industrial-inspired interior design elements.
Free Architecture Competitions You Can Enter Right Now
No entry fees, real prizes. Here are the best free architecture competitions open for submissions in 2026.
Similar Reads
You might also enjoy these articles
Filtering Space: A Gradual Spatial Experience
From urban intensity to spatial calm.
The Ken Roberts Memorial Delineation Competition (Krob)
As the most senior architectural drawing competition currently in operation anywhere in the world, it draws hundreds of entries each year, awarding the very best submissions in a series of medium-based categories.
Waterfront Redevelopment and Urban Revitalization in Mumbai: Forging a New Dawn for Darukhana
A transformative waterfront redevelopment project reimagining Darukhana’s shipbreaking heritage into an inclusive urban future.
OUT-OF-MAP: A Call for Postcards on Feminist Narratives of Public Space
Rhizoma Design and Research Lab invites artists, designers, architects, researchers, and students to reflect on how feminist perspectives can reshape public space. Selected works will be exhibited in Barcelona, October 2026. Submissions open until 15 April 2026.
Explore Architecture Competitions
Discover active competitions in this discipline
The International Standard for Design Portfolios
The Global Benchmark for Architecture Dissertation Awards
The Global Benchmark for Graduation Excellence
Challenge to reimagine the Iron Throne
Comments (0)
Please login or sign up to add comments
No comments yet. Be the first to comment!