Villa Altegg: A Modern Swiss Villa Architecture Masterpiece by Urben Seyboth Architekten
The article explores Villa Altegg, a modern Swiss villa blending sustainable design, local materials, and stunning natural surroundings.
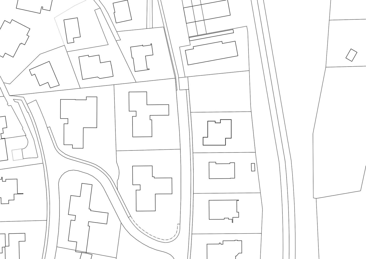
Located just outside the city of Lucerne, Switzerland, Villa Altegg stands as a beacon of modern Swiss villa architecture. Designed by the renowned Urben Seyboth Architekten, this home marries sustainability, cutting-edge design, and a seamless connection with nature. The villa’s strategic location offers breathtaking views of Lake Lucerne and the surrounding mountainous landscape, making it a prime example of modern architectural integration with its environment.


The Vision Behind Villa Altegg’s Design
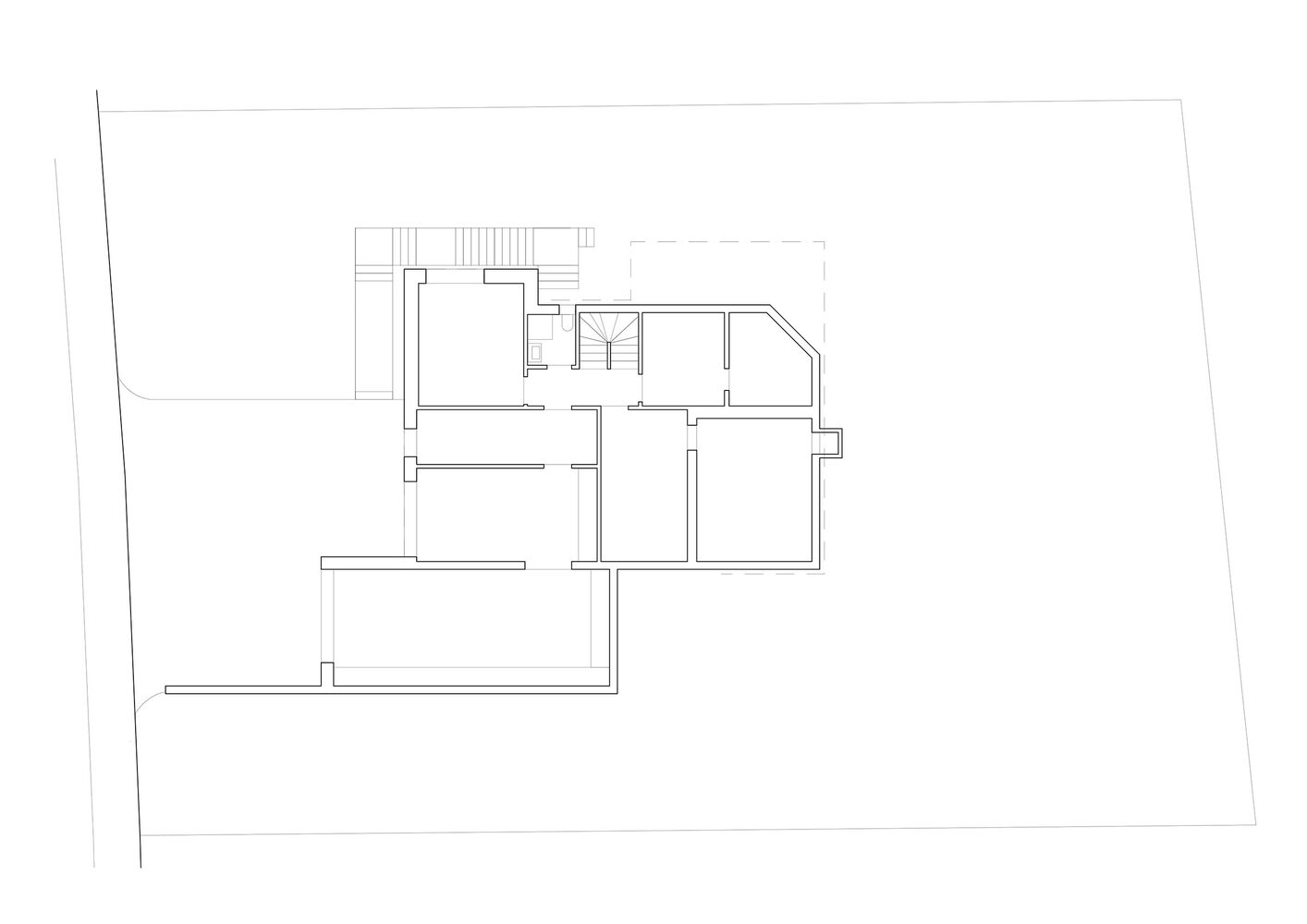
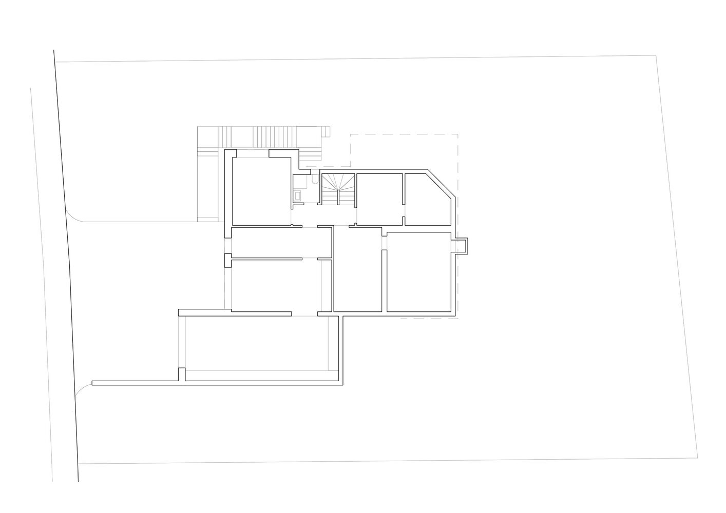
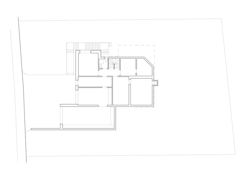
Villa Altegg was born out of the desire to replace an existing building that had considerable energy inefficiencies and architectural shortcomings. The clients wanted a home that met their modern needs while enhancing the property’s environmental footprint and offering a more functional, aesthetic living space. The original basement was preserved and extended to accommodate parking, while the rest of the structure was demolished and rebuilt with a fresh perspective.


Sustainable Design with a Focus on Local Materials
A core principle of this modern Swiss villa design was sustainability. The architects focused on materials with low grey energy and a minimal environmental impact. The construction prominently features timber, sourced locally for the garden-level structure, aligning the villa with both ecological considerations and regional architectural traditions. The sustainable building technology includes a heat pump system and solar energy integration, ensuring that the villa operates efficiently while maintaining a high standard of comfort.


Architectural Features of Villa Altegg
Timeless Elegance Meets Contemporary Design
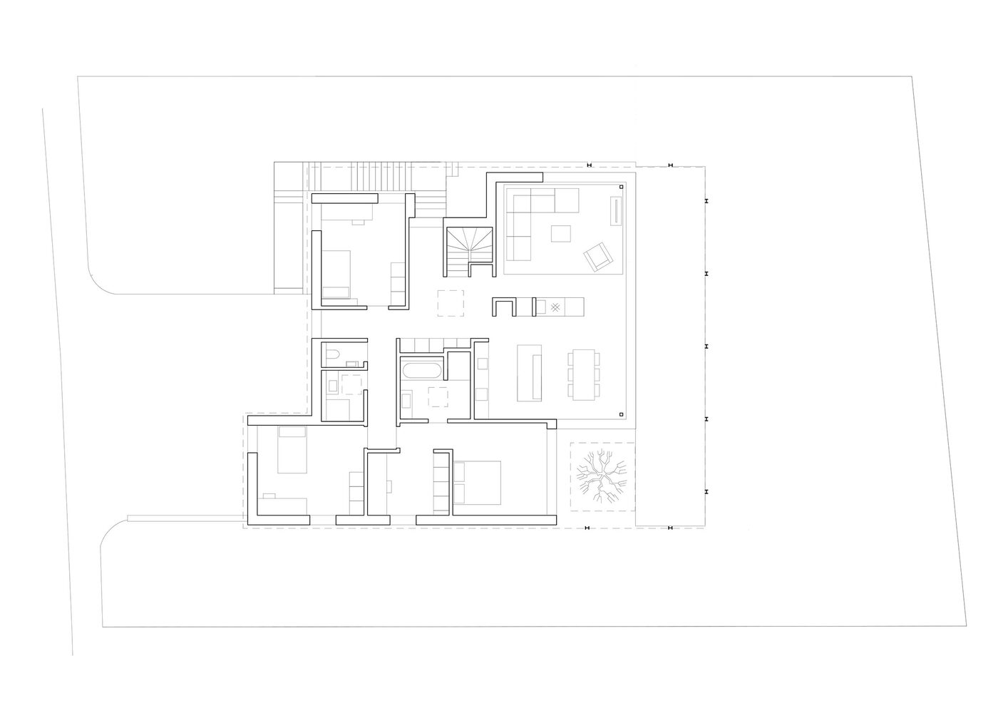
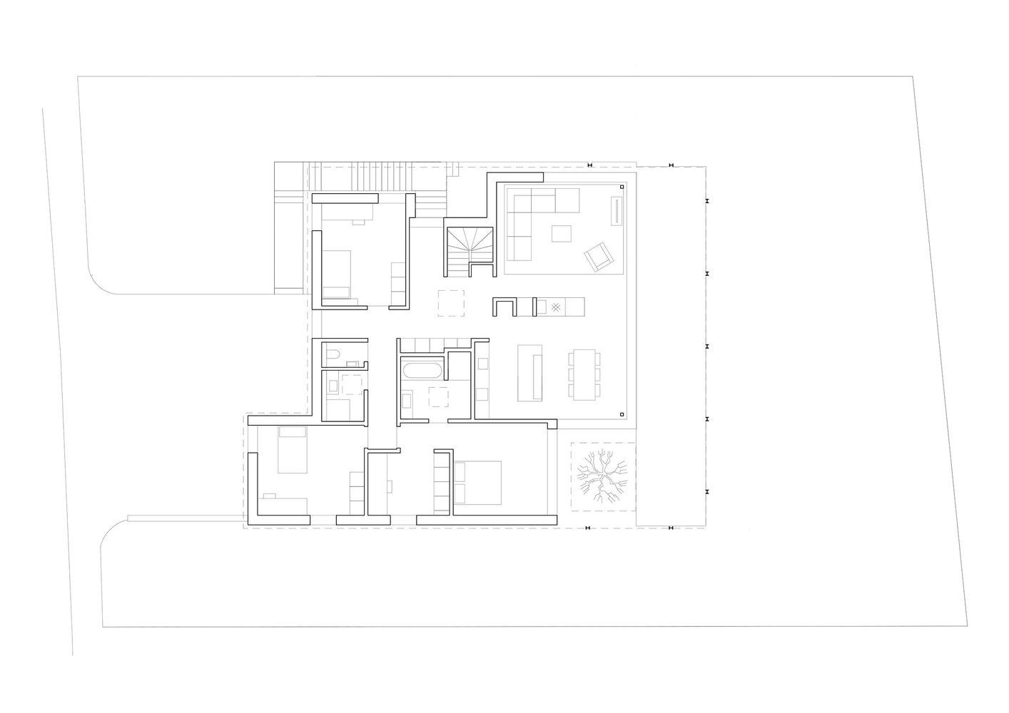
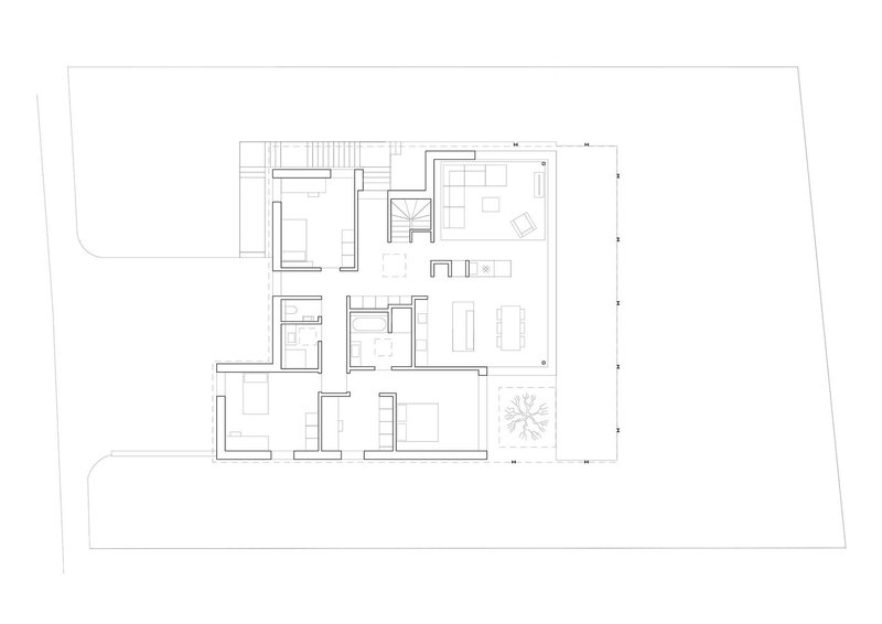
Villa Altegg’s design is defined by its simplicity, elegance, and integration into the landscape. The garden level, which houses the private living spaces, including bedrooms, a kitchen, dining area, and bathrooms, is a key highlight. This floor features an all-around glazed façade, offering panoramic views of the stunning Swiss lake and mountains. Large, strategically placed windows flood the interiors with natural light, creating an airy and spacious ambiance.
The outdoor terrace is another design marvel. With its expansive canopy and robust steel supports, it forms an extension of the villa’s living space, offering outdoor leisure while being sheltered from the elements. The inner courtyard introduces a sense of privacy, enhancing the villa’s pavilion-like character. The careful placement of these design elements creates a harmonious balance between indoor and outdoor living, emphasizing the natural beauty of the surroundings.


Interior Design Focus: Travertine and Oak
Inside, the villa features a refined, minimalist design palette dominated by travertine, white plaster, and bronze oak. The travertine-clad fireplace, which serves as a central spatial object, divides the living and dining areas, enhancing the fluidity and openness of the floor plan. Oak is incorporated in several subtle ways, such as in the furniture, cabinetry, and railings, providing warmth and texture to the modern interior.


A Sustainable Architectural Approach: Green Technologies and Local Materials
Villa Altegg exemplifies how contemporary architecture can be environmentally conscious while embracing luxury. The architects have integrated energy-efficient technologies, including heat pumps and a solar power system, ensuring that the villa remains sustainable in both its construction and operation. Additionally, the careful selection of locally sourced timber for construction and the preservation of the existing basement underline a deep commitment to sustainability and resource conservation.


The Role of Local Swiss Architecture in Villa Altegg
The villa’s design draws inspiration from Swiss architectural traditions, particularly the use of local materials and the integration of buildings into the natural landscape. The emphasis on natural wood and stone, as well as the spacious interiors with large windows, is a modern interpretation of Swiss alpine homes, which have historically focused on blending with their natural environments. Villa Altegg’s design takes these traditions and elevates them with modern techniques and sustainability at the forefront.


A Benchmark for Modern Swiss Villa Architecture
Villa Altegg is a standout example of modern Swiss villa architecture, where sustainability, modern technology, and traditional craftsmanship coexist beautifully. The design by Urben Seyboth Architekten not only creates a luxurious living space but also ensures that the villa is in harmony with its natural surroundings, offering a model for future architectural projects in the region. With its combination of innovative design, sustainable features, and local materials, Villa Altegg sets a new standard for what modern homes in Switzerland can be.


All photographs are work of Kuster + Frey Fotografen
Popular Articles
Popular articles from the community
20 Most Popular Commercial Architecture Projects of 2025
From sustainable market concepts to heritage factories, the commercial buildings and proposals that drew the most attention on uni.xyz this year.
Alton Cliff House: A Harmonious Retreat by f2a Architecture in Lake Country, Canada
Alton Cliff House blends corten steel, prefabrication, and sustainable design, creating a luxurious, energy-efficient retreat perched on Canadian cliffs.
TGK Nirasaki Plant: A Smart Factory Blending Technology, Landscape, and Wellness
Smart factory in Japan blending IoT manufacturing, scenic trail design, natural ventilation, and landscape integration to enhance user experience and sustainability.
Similar Reads
You might also enjoy these articles
Filtering Space: A Gradual Spatial Experience
From urban intensity to spatial calm.
The Ken Roberts Memorial Delineation Competition (Krob)
As the most senior architectural drawing competition currently in operation anywhere in the world, it draws hundreds of entries each year, awarding the very best submissions in a series of medium-based categories.
Waterfront Redevelopment and Urban Revitalization in Mumbai: Forging a New Dawn for Darukhana
A transformative waterfront redevelopment project reimagining Darukhana’s shipbreaking heritage into an inclusive urban future.
OUT-OF-MAP: A Call for Postcards on Feminist Narratives of Public Space
Rhizoma Design and Research Lab invites artists, designers, architects, researchers, and students to reflect on how feminist perspectives can reshape public space. Selected works will be exhibited in Barcelona, October 2026. Submissions open until 15 April 2026.
Explore Architecture Competitions
Discover active competitions in this discipline
The International Standard for Design Portfolios
The Global Benchmark for Architecture Dissertation Awards
The Global Benchmark for Graduation Excellence
Challenge to reimagine the Iron Throne
Comments (0)
Please login or sign up to add comments
No comments yet. Be the first to comment!