Villa Miro: A Distinctive Expression of Modern Villa Architecture in Casablanca by Driss Kettani
A geometric modern villa in Casablanca designed by Driss Kettani blends spatial clarity, artistic expression, and contemporary architectural elegance.
An Artistic Vision Rooted in Geometry and Light
Set on a triangular plot in the vibrant city of Casablanca, Villa Miro by Driss Kettani redefines modern villa architecture through its refined spatial strategy, sculptural form, and artful atmosphere. Covering 550 square meters, this 2024 project seamlessly balances privacy and openness by using a strong geometric language shaped by the site’s unique setbacks. The result is an elegant and contemporary home with a distinct identity shaped around a central architectural gesture.



A Central Helical Staircase as Spatial Anchor
At the core of the house stands a helical staircase wrapped in a delicately detailed wooden lattice, becoming both a structural and symbolic centerpiece. More than just circulation, this stairwell organizes the villa’s layout, defining a vertical spatial rhythm. It serves as the heart of the home, connecting private and public realms with subtle elegance. The light-filtering wooden screen adds warmth and material richness while offering visual privacy and texture.



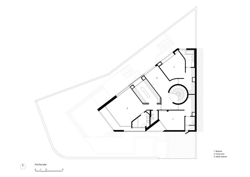
Fluid Spatial Organization for Contemporary Living
The layout of Villa Miro is dictated by fluidity and function. The central staircase efficiently distributes access throughout the home, allowing for a discreet transition into service areas, while liberating the rest of the plan for expansive living zones. On the ground floor, a large, light-filled reception area opens toward the pool through generous sliding glass doors, seamlessly blending indoor and outdoor living—one of the core tenets of modern villa architecture.


Upstairs, three bedrooms radiate around the staircase, accompanied by an intimate family living room. This hierarchy of space reflects a thoughtful balance between social gathering areas and private retreats, enhancing the villa’s livability while maintaining its refined elegance.

Materials That Embrace Warm Minimalism
The material palette of Villa Miro is understated yet sensorial, emphasizing concrete, wood, and glass in a carefully restrained composition. These elements create a tactile and visual warmth, highlighting the villa’s sculptural volumes while allowing natural light to play across surfaces. The architectural language remains clean and contemporary, avoiding unnecessary ornamentation in favor of expressive textures and natural finishes.

A Home Infused with Artistic Character
What truly elevates Villa Miro beyond its architectural clarity is the soul imparted by its owner, a Casablanca-based artist. The interiors are adorned with curated furniture pieces and original artworks that reflect the owner's personal aesthetic. This infusion of artistic identity transforms the home into a lived-in gallery—subtle, sophisticated, and full of narrative depth.


Modern Villa Architecture Grounded in Site and Identity
Villa Miro is a prime example of modern villa architecture that responds intelligently to site constraints while creating a home rich in emotion and identity. The interplay between geometric form, flowing spatial organization, and warm materiality produces a residence that is both sculptural and livable. Driss Kettani’s design successfully merges architecture with art, privacy with openness, and minimalism with richness—resulting in a modern Moroccan villa that stands out for its harmony and clarity.



All Photographs are works of Doublespace Photography
Popular Articles
Popular articles from the community
Free Architecture Competitions You Can Enter Right Now
No entry fees, real prizes. Here are the best free architecture competitions open for submissions in 2026.
Atelier Macri Concept Store Interior Design by CASE-REAL
Atelier Macri store features a "ko" counter, walnut wood details, cork displays, blending retail, gallery, and seamless customer experiences.
Gads Hill Early Learning Center by JGMA: Adaptive Reuse Shaping Community-Focused Educational Architecture
Adaptive reuse transforms fragmented structure into vibrant early learning center with playful façade, natural light, and community-focused sustainable design.
Inverted Architecture Installation by Studio Link-Arc: Exploring the Intersection of Architecture and Living Organisms
Inverted Architecture Installation by Studio Link-Arc blends mycelium, sustainability, inverted design, ecological cycles, and urban adaptive architecture in Shenzhen.
Similar Reads
You might also enjoy these articles
Bamboo Housing Challenge 2026: Design Affordable, Sustainable Homes Using Bamboo
An international design competition by Bamboo U and IBUKU inviting architects and designers to reimagine affordable housing using bamboo — with the winning design built full-scale in Bali.
Computational Design & Education: Beegraphy Design Awards Introduces 7th Category (Featuring Jiyun's Innovative Approach)
Dive into Beegraphy’s 7th Design Awards category, where computational design meets education to create immersive, interactive learning tools, inspired by Jiyun’s work.
From Parametric Lighting to Urban Furniture: Join the 2nd Workshop in Beegraphy’s Computational Design Series
Dive into Cutting-Edge Design Techniques and Practical Applications with Industry Experts
Explore Architecture Competitions
Discover active competitions in this discipline
The International Standard for Design Portfolios
The Global Benchmark for Architecture Dissertation Awards
The Global Benchmark for Graduation Excellence
Challenge to reimagine the Iron Throne
Comments (0)
Please login or sign up to add comments
No comments yet. Be the first to comment!