Villa Sidonius by Stempel & Tesar Architekti: A Harmonious Blend of Innovation and Landscape
Exploring Villa Sidonius by Stempel & Tesar Architekti, a bridge-like residence harmonizing innovative design with Černošice's steep terrain and scenic vistas.
In the picturesque villa district of Černošice, nestled at the northern and western foothills of Babka Hill, stands Villa Sidonius—a testament to architectural ingenuity and harmonious integration with its natural surroundings. Designed by the renowned firm Stempel & Tesar Architekti, this residence redefines contemporary living by embracing the challenges posed by its steep, north-facing plot to offer unparalleled views and a unique living experience.




Embracing the Challenges of a Steep Terrain
The site of Villa Sidonius presents both opportunities and obstacles. Positioned on one of the steepest and highest plots in the neighborhood, the property offers breathtaking vistas of the Berounka Valley, the Bohemian Karst hills, and the distant Prague skyline. However, its northern orientation results in limited sunlight, with the uppermost part of the terrain receiving the most exposure. The architects faced the task of situating the residence to maximize these panoramic views while ensuring optimal sunlight penetration and accessibility.




A Bridge-Like Structure: Innovative Design Solution
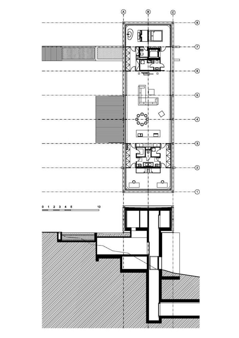
To address the site's complexities, Stempel & Tesar Architekti conceived a bridge-like structure elevated on pillars, reminiscent of a steel footbridge gracefully spanning the steep slope. This design not only capitalizes on the northern views and southern sunlight but also minimizes the building's footprint on the landscape. The prefabricated steel framework features external load-bearing HEB 300 profiles that span an impressive eighteen meters between monolithic reinforced concrete pillars. Internal infill primarily comprises IPE 160 profiles, forming a robust framework for windows, roofing, and flooring.




A Testament to Structural and Technological Experimentation
Villa Sidonius stands as a beacon of structural, architectural, and technological experimentation. Departing from traditional construction methods, the project explores cutting-edge solutions and integrates state-of-the-art products. Notably, the residence incorporates Swiss air-lux windows equipped with patented air-assisted seals, ensuring exceptional airtightness. A sophisticated heating and cooling system, powered by heat pumps, maintains a comfortable indoor climate throughout the year, addressing the challenges posed by the building's low heat storage capacity.




Thoughtful Interior Layout and Access
Access to the villa is ingeniously designed through an underground tunnel leading from the garage, which also houses a studio and fitness area. This tunnel culminates at the base of one of the supporting pillars, where an elevator ascends to the main residential level, with an intermediate stop providing access to service rooms. The heart of the home is a cozy living room seamlessly connected to a kitchen and dining area. This central space opens onto a south-facing terrace that merges with the landscaped terrain, leading to the sunlit upper garden and a swimming pool. The "bridge" structure's opposing ends accommodate distinct zones: children's rooms occupy one end, while the primary bedroom suite, complete with a bath and captivating views, resides at the other.




Harmonizing Architecture and Landscape
The collaboration between Stempel & Tesar Architekti and landscape architect Vladimír Sitta resulted in a cohesive integration of the villa with its environment. The concept of a slate slope adorned with birch trees complements the architectural design, creating a serene and natural ambiance. Elements such as the swimming pool and related features emerged from this synergistic partnership, enhancing the overall aesthetic and functional harmony between the built structure and its landscape.


A Collective Endeavor: The Role of Collaboration
Villa Sidonius embodies the essence of a collaborative creative process, involving a dedicated team of architects, engineers, landscape designers, and specialists. The homeowner's active participation throughout the design and construction phases significantly influenced the project's direction and success. This collective effort underscores the importance of interdisciplinary collaboration in achieving architectural excellence.


All photographs are works of Filip Šlapal
Popular Articles
Popular articles from the community
Filtering Space: A Gradual Spatial Experience
From urban intensity to spatial calm.
Rede Arquitetos Builds an Open-Air School in Fortaleza That Doubles as a Neighborhood Living Room
Educar II SESC-CE folds sports, dance, and community gathering into a courtyard campus wrapped in mesh and tropical color.
Alton Cliff House: A Harmonious Retreat by f2a Architecture in Lake Country, Canada
Alton Cliff House blends corten steel, prefabrication, and sustainable design, creating a luxurious, energy-efficient retreat perched on Canadian cliffs.
Similar Reads
You might also enjoy these articles
Bamboo Housing Challenge 2026: Design Affordable, Sustainable Homes Using Bamboo
An international design competition by Bamboo U and IBUKU inviting architects and designers to reimagine affordable housing using bamboo — with the winning design built full-scale in Bali.
Computational Design & Education: Beegraphy Design Awards Introduces 7th Category (Featuring Jiyun's Innovative Approach)
Dive into Beegraphy’s 7th Design Awards category, where computational design meets education to create immersive, interactive learning tools, inspired by Jiyun’s work.
From Parametric Lighting to Urban Furniture: Join the 2nd Workshop in Beegraphy’s Computational Design Series
Dive into Cutting-Edge Design Techniques and Practical Applications with Industry Experts
Explore Architecture Competitions
Discover active competitions in this discipline
The International Standard for Design Portfolios
The Global Benchmark for Architecture Dissertation Awards
The Global Benchmark for Graduation Excellence
Challenge to reimagine the Iron Throne
Comments (0)
Please login or sign up to add comments
No comments yet. Be the first to comment!