Wonder Cabinet by AAU ANASTAS: A Landmark in Experimental Cultural Architecture in Palestine
The Wonder Cabinet is a collaborative cultural space in Bethlehem redefining experimental cultural architecture through making, craft, and community.
Architecture as Cultural Infrastructure
The Wonder Cabinet in Bethlehem, designed by AAU ANASTAS, is a pioneering work of experimental cultural architecture. Rather than functioning as a traditional building, it acts as a living infrastructure—serving artists, architects, designers, artisans, chefs, and musicians. It is a space not only for exhibiting culture but for producing it, a rare architectural typology in the Palestinian context that seeks to shift the narrative from passive observation to active creation.




A Multi-Disciplinary Engine for Creative Production
Conceived as a collaborative platform, the Wonder Cabinet enables cross-disciplinary exchange. The building facilitates workshops, residencies, exhibitions, and performances, while actively engaging with the under-represented but rich culture of Palestinian craft and making. It functions as a springboard for design and production and provides local youth with training and employment, all while encouraging new modes of artistic engagement.




Diagonal Openness and Spatial Synergy
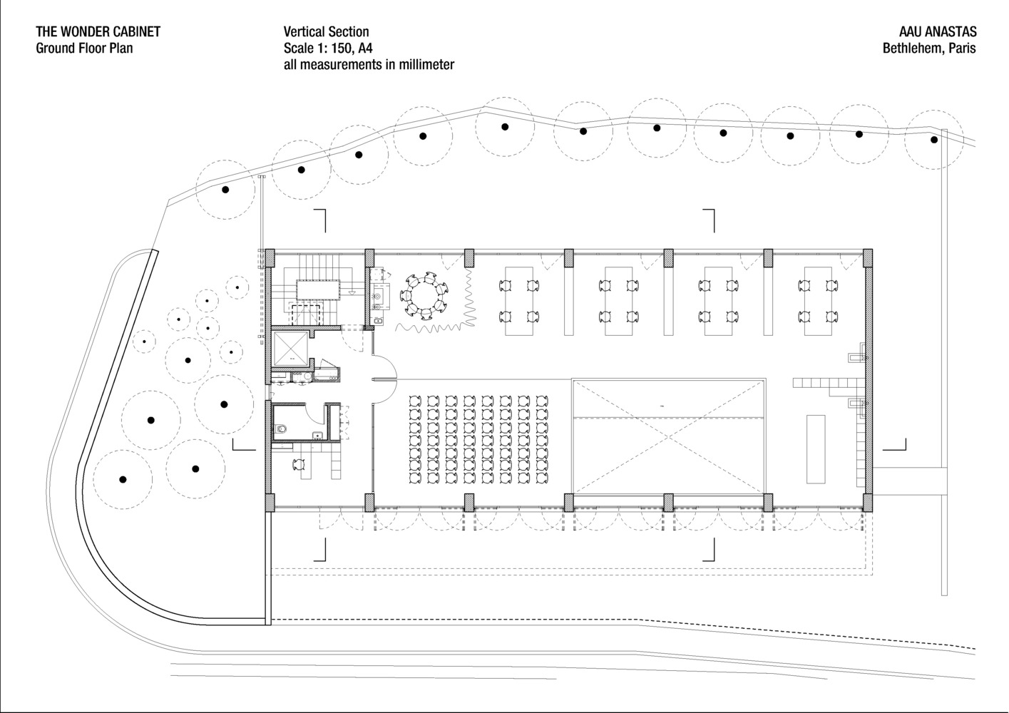
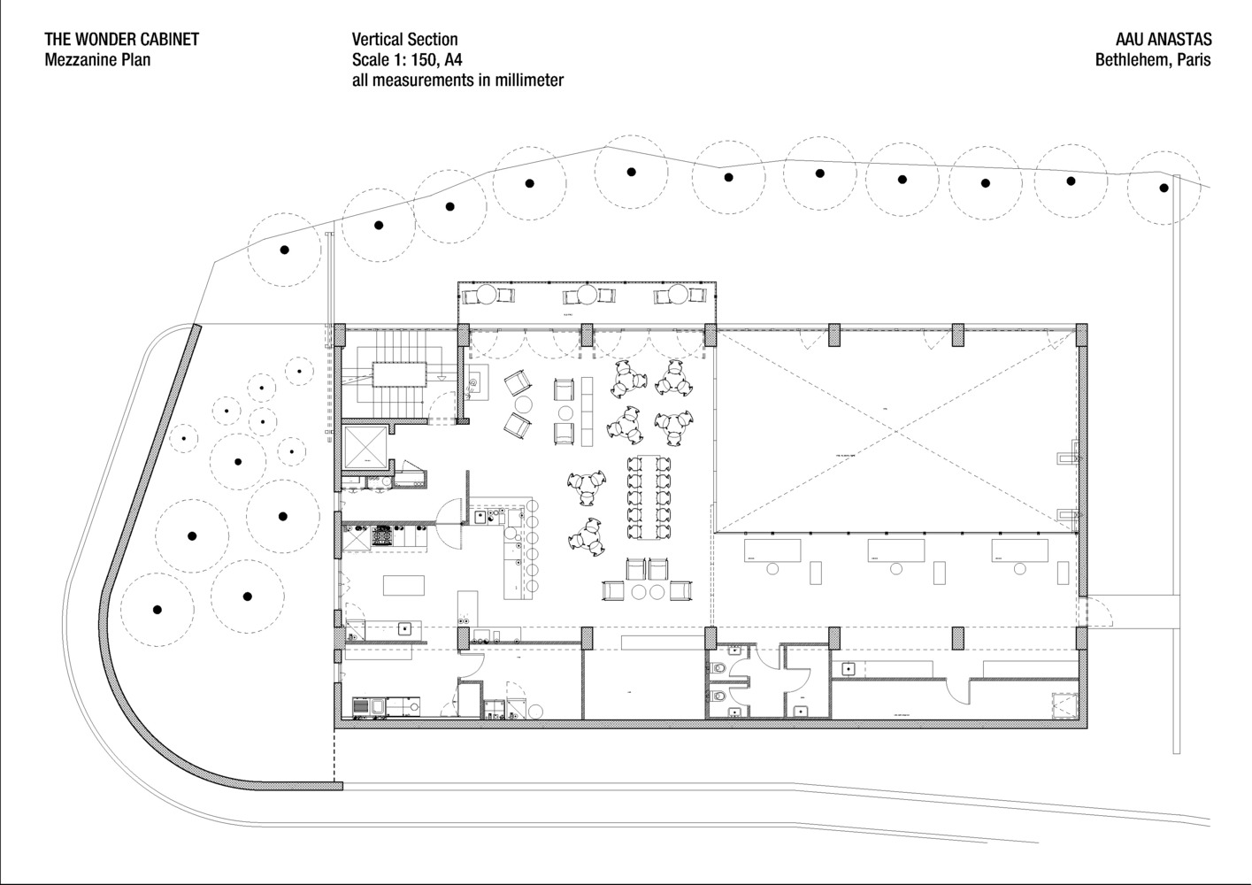
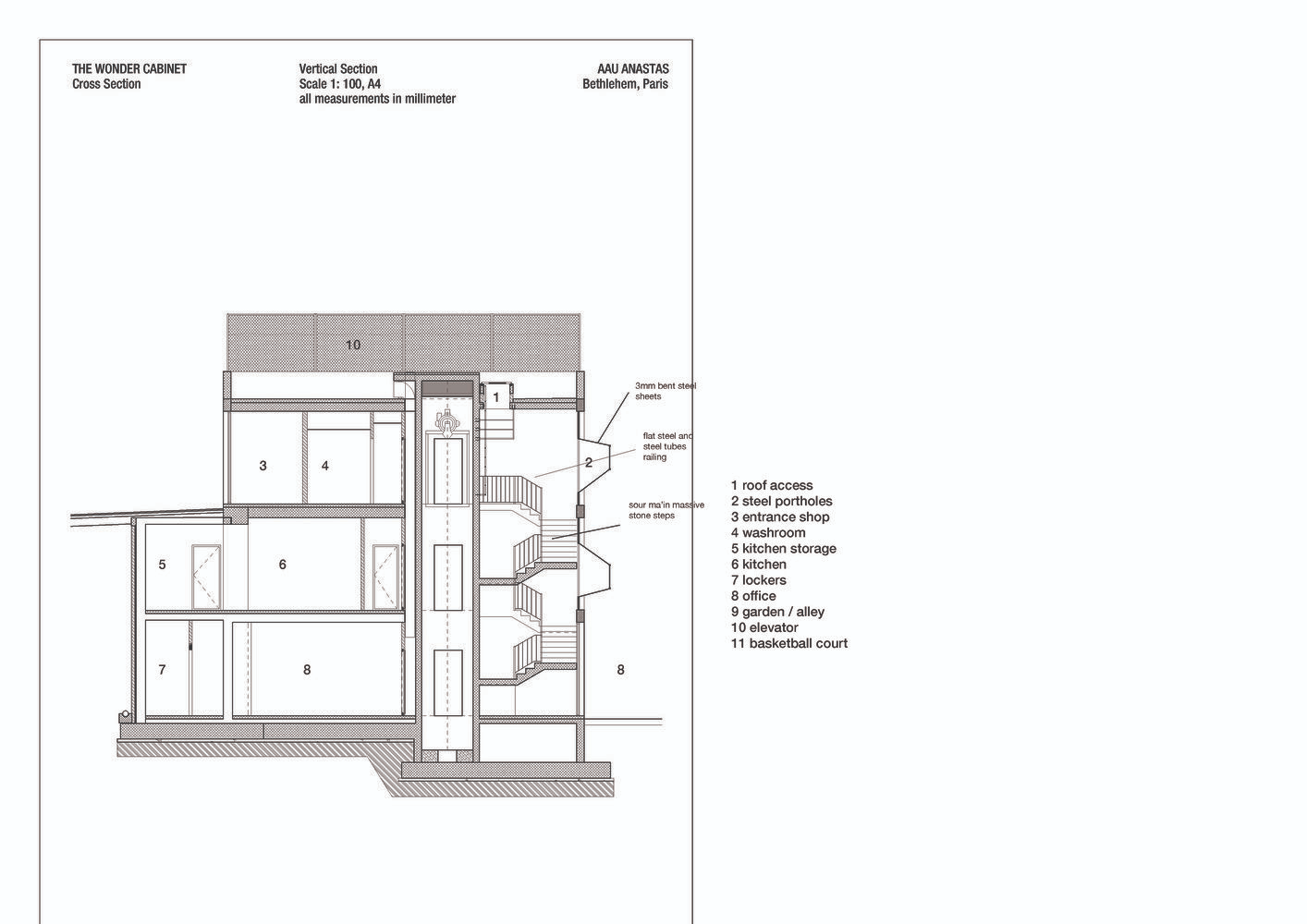
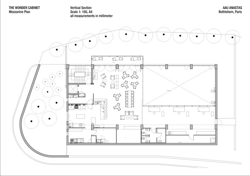
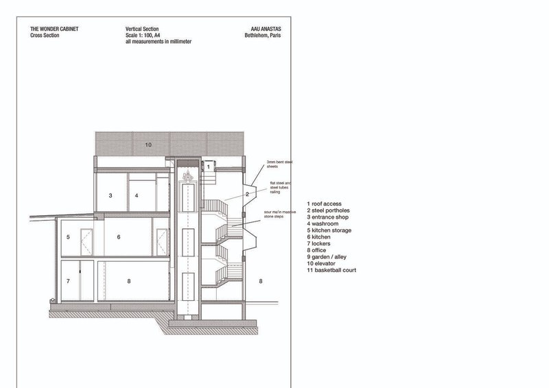
One of the most distinctive features of this 950-square-meter concrete structure is its large diagonal opening that cuts through all three floors. This strategic architectural move creates a dynamic visual and spatial connection, allowing different programs and occupants to remain in constant dialogue. It reflects the building’s ethos of transparency, flexibility, and inclusiveness—qualities essential to experimental architecture.



Activated Public Ground and Cultural Threshold
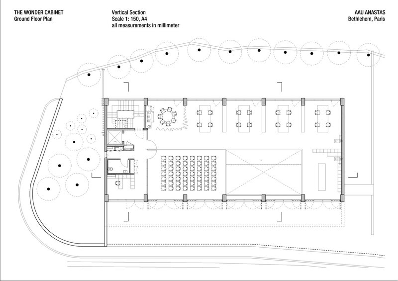
At street level, the Wonder Cabinet hosts AAU Anastas’ studio, open-plan offices, a multipurpose event space, a cafe, and a design store. Most of these functions are defined not by solid walls but by transparent glass partitions. The large steel-framed doors open fully onto the adjacent piazza, blurring the boundary between building and public realm. The architecture thus serves as a social and cultural threshold—a gateway between urban life and creative experimentation.




Embedded in the Topography
The building's lower levels descend into the hillside, facing the expansive valley beyond. These levels host artist studios, an outdoor production terrace, a restaurant, a radio station, and a kitchen for rotating chefs-in-residence. This downward expansion of the programmatic layout mirrors the site's natural slope, embedding cultural activity in the landscape and enhancing connection with nature and view.




A Craft-Based Architectural Manifesto
Throughout the Wonder Cabinet, craftsmanship is central. The basement, designed as a large open production space, includes facilities for woodworking, metal casting, textiles, photography, and printing. A closed sound studio and an outdoor reading patio further diversify the spatial typologies. The stairwell is punctuated with custom steel porthole windows crafted by Mohammad Husni, a local steel artisan. These windows create a meditative contrast to the more open glass surfaces above, reinforcing a tactile, material-based dialogue across levels.



Weather as Architecture: The Roof Installation
Above the concrete structure, stainless steel letters spelling “Wonder Cabinet” rotate in the wind, acting as a kinetic art installation and a subtle weather vane. Created by Bishara al-Hadweh, the sculpture adds an element of public performance, extending the building’s identity skyward.




Radical Porosity and Cultural Permanence
The Wonder Cabinet is designed for impermanence in programming but permanence in cultural importance. Its porous spaces allow adaptation over time, while its architectural solidity and spatial inventiveness anchor it in the collective memory of the city. The project foregrounds physical making, shared knowledge, and spatial inclusivity as foundational components of cultural architecture.




Redefining Cultural Space in Palestine
By prioritizing production over display, craft over spectacle, and community over exclusivity, the Wonder Cabinet is a rare model of experimental cultural architecture. It doesn’t monumentalize culture—it democratizes it. AAU ANASTAS has built more than a space; they’ve initiated a movement—one rooted in place, people, and possibility.





Popular Articles
Popular articles from the community
Inverted Architecture Installation by Studio Link-Arc: Exploring the Intersection of Architecture and Living Organisms
Inverted Architecture Installation by Studio Link-Arc blends mycelium, sustainability, inverted design, ecological cycles, and urban adaptive architecture in Shenzhen.
Solar Steam: A Climate-Responsive Architecture That Redefines the Monument
A climate-responsive memorial architecture that transforms heat, decay, and time into a living system reflecting humanity’s ecological impact.
Alton Cliff House: A Harmonious Retreat by f2a Architecture in Lake Country, Canada
Alton Cliff House blends corten steel, prefabrication, and sustainable design, creating a luxurious, energy-efficient retreat perched on Canadian cliffs.
Similar Reads
You might also enjoy these articles
Bamboo Housing Challenge 2026: Design Affordable, Sustainable Homes Using Bamboo
An international design competition by Bamboo U and IBUKU inviting architects and designers to reimagine affordable housing using bamboo — with the winning design built full-scale in Bali.
Computational Design & Education: Beegraphy Design Awards Introduces 7th Category (Featuring Jiyun's Innovative Approach)
Dive into Beegraphy’s 7th Design Awards category, where computational design meets education to create immersive, interactive learning tools, inspired by Jiyun’s work.
From Parametric Lighting to Urban Furniture: Join the 2nd Workshop in Beegraphy’s Computational Design Series
Dive into Cutting-Edge Design Techniques and Practical Applications with Industry Experts
Explore Architecture Competitions
Discover active competitions in this discipline
The International Standard for Design Portfolios
The Global Benchmark for Architecture Dissertation Awards
The Global Benchmark for Graduation Excellence
Challenge to reimagine the Iron Throne
Comments (0)
Please login or sign up to add comments
No comments yet. Be the first to comment!