Wood-Concrete House Design: A Contemporary Transformation by MANO
A stunning transformation blending wood and concrete, redefining suburban architecture with light-filled, open spaces and material harmony.
Introduction to Wood-Concrete House Design
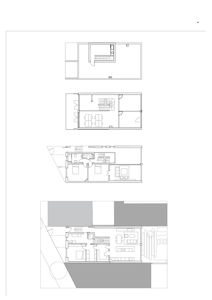
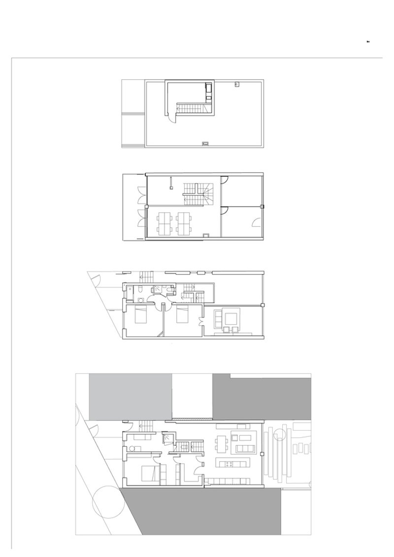
The Wood-Concrete House in Aubervilliers, France, designed by MANO, stands as a remarkable example of wood-concrete house design that balances material expression, spatial clarity, and contextual sensitivity. This project transforms a modest 1930s suburban house into a generous and light-filled three-story dwelling, showcasing how modern architecture can reinterpret traditional suburban forms.



Site Context and Urban Integration
Located on a narrow plot within the discontinuous urban fabric of Aubervilliers, the Wood-Concrete House reimagines the detached suburban pavilion typology. While the house extends vertically, it respects the urban scale and rhythm of the street, maintaining a discrete façade that harmonizes with its surroundings. This thoughtful integration reinforces the importance of wood-concrete house design in balancing innovation with context.



Architectural Concept and Structure
At the heart of the transformation is a timber frame structure anchored to the existing masonry, demonstrating MANO's commitment to material honesty and structural clarity. The garden-facing wooden façade establishes a striking dialogue with the lush exterior, while large-scale windows flood the interior with daylight. The contrast between raw concrete and warm wood forms the backbone of the domestic experience, offering an interplay of materiality that defines the home’s character.



Spatial Organization and Interior Experience
Inside, the house unfolds as a sequence of open-plan volumes across two main levels, creating full visual continuity from the street to the garden. The spatial arrangement emphasizes transparency, blurring the boundaries between interior and exterior. Daylight animates the spaces, enhancing the perception of volume and depth. The architectural language deliberately avoids formal excess, instead prioritizing calm, functional articulation through material and light.




Material Sincerity and Light Interaction
The success of this wood-concrete house design lies in its use of material as a narrative tool. Raw concrete elements bring a sense of groundedness and permanence, while the timber structure and wooden finishes introduce warmth and tactile richness. The large windows serve not only as openings but as mediators of light, transforming the atmosphere of the interiors throughout the day. This delicate balance fosters a harmonious living environment that feels both robust and intimate.



Participatory and Contextual Design Approach
As part of MANO’s broader design-research practice, the Wood-Concrete House reflects an ongoing exploration of participatory and contextual design. The project responds to complex spatial and social conditions with architectural clarity and constructive intelligence, offering a model for future residential projects in dense suburban contexts. By embracing the inherent tensions of its site and materials, the house presents a refined solution that is both contemporary and deeply rooted in place.


The Wood-Concrete House by MANO is an exemplary project in wood-concrete house design, merging structural innovation, spatial fluidity, and contextual sensitivity. It stands as a testament to how thoughtful architecture can transform existing structures into light-filled, contemporary homes while preserving the essence of their urban surroundings.


All the photographs are works of Antoine Duhamel
Popular Articles
Popular articles from the community
Flamboyant House by Juliana Camargo + Prumo Projetos
Modern Brazilian house integrating existing tree, pool, and volumes with glass, wood, and transitional spaces blending interior, exterior, and landscape seamlessly.
Atelier Macri Concept Store Interior Design by CASE-REAL
Atelier Macri store features a "ko" counter, walnut wood details, cork displays, blending retail, gallery, and seamless customer experiences.
A Contemporary Take on Iranian Residential Architecture
A modern interior design in Mashhad that reinterprets brick, light, and spatial flow to create a warm, contemporary residential architecture.
Inverted Architecture Installation by Studio Link-Arc: Exploring the Intersection of Architecture and Living Organisms
Inverted Architecture Installation by Studio Link-Arc blends mycelium, sustainability, inverted design, ecological cycles, and urban adaptive architecture in Shenzhen.
Similar Reads
You might also enjoy these articles
Bamboo Housing Challenge 2026: Design Affordable, Sustainable Homes Using Bamboo
An international design competition by Bamboo U and IBUKU inviting architects and designers to reimagine affordable housing using bamboo — with the winning design built full-scale in Bali.
Computational Design & Education: Beegraphy Design Awards Introduces 7th Category (Featuring Jiyun's Innovative Approach)
Dive into Beegraphy’s 7th Design Awards category, where computational design meets education to create immersive, interactive learning tools, inspired by Jiyun’s work.
From Parametric Lighting to Urban Furniture: Join the 2nd Workshop in Beegraphy’s Computational Design Series
Dive into Cutting-Edge Design Techniques and Practical Applications with Industry Experts
Introducing Sphere by UNI: Pioneering a New Era in AEC Industry
Unlocking Global Potential with BIM and Agile Management
Explore Architecture Competitions
Discover active competitions in this discipline
The International Standard for Design Portfolios
The Global Benchmark for Architecture Dissertation Awards
The Global Benchmark for Graduation Excellence
Challenge to reimagine the Iron Throne
Comments (0)
Please login or sign up to add comments
No comments yet. Be the first to comment!