Xanadu Chongchongshan: A Harmony of Architecture and Nature by Wilburban Architects
Xanadu Chongchongshan merges architecture and nature, creating an immersive retreat where design harmonizes with mountainous landscapes and dense forests.
Located 60 kilometers from downtown Chongqing in Banan, Xanadu Chongchongshan redefines the boundary between urban living and the wilderness. Designed by Wilburban Architects, the project integrates seamlessly with the mountainous landscape and dense fir forests. Through poetic spatial design, it creates an immersive experience where architecture and nature coexist harmoniously.





The Context and Site
The site, perched atop a steep mountain peak, offers a dramatic natural setting. Visitors navigate a gentle path enveloped by towering fir trees, creating an ethereal sense of disorientation and anticipation. The mountainous terrain, with its steep gradients and secluded forest pathways, serves as a natural canvas for the project’s design.






Architectural Design: A Symbiosis with Nature
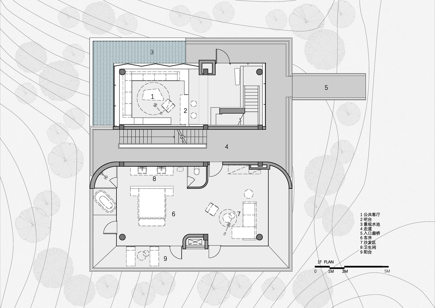
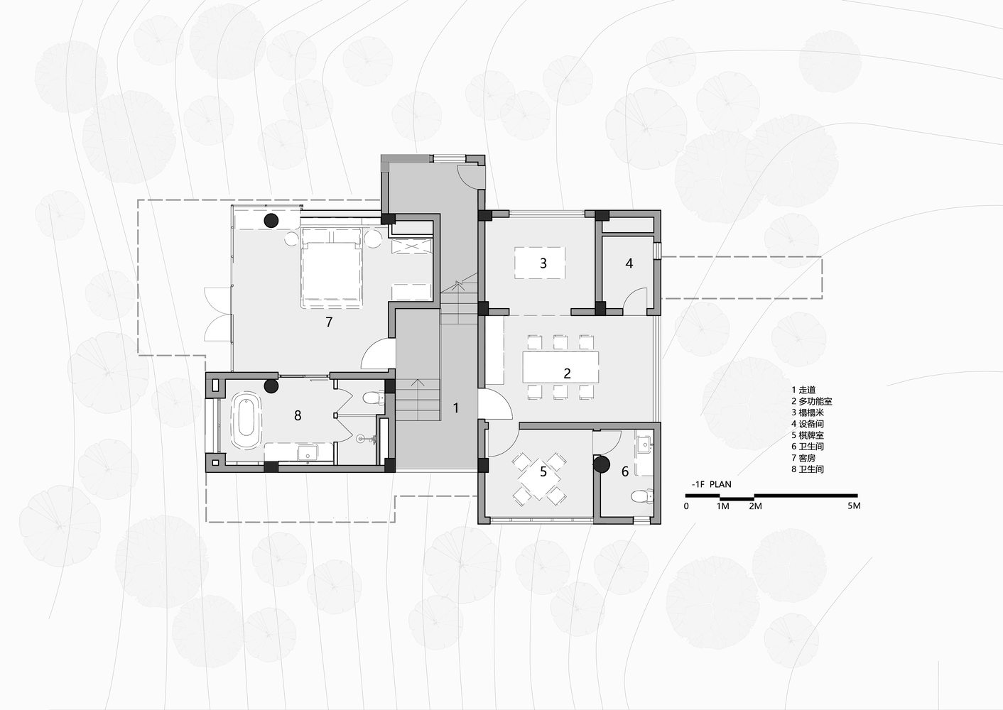
The primary structure features a spherical concave front elevation that mirrors the circular plaza, transforming the building into a stage backdrop. This design establishes a three-dimensional activity space, blending seamlessly with its surroundings. Visitors access the building through a dimly lit cave, entering a tall dining hall encircled by trees. The exterior suspended staircase and spiral tower offer elevated paths, allowing visitors to experience panoramic views above the treetops or traverse the skybridge for a rooftop perspective. These architectural elements are not only functional but create a layered journey that interacts with the forest environment.








Spatial Organization: Integrating Primitive Geometry
The architectural composition features four white buildings aligned along the mountaintop's contour and six treehouses discreetly hidden among the pine trees. These structures create a surreal spatial relationship, reminiscent of an ancient matrix encircling the central plaza. The minimalist geometry, large blank walls, and thoughtfully placed windows reflect the swaying shadows of the trees, allowing the architecture to become an extension of the natural surroundings.






The Pavilion and Valley Connection
The pavilion is positioned discreetly within the valley, hidden on the opposite side of the mountaintop. With its geometric roof appearing to float among the cedar trees, the pavilion emerges as a transient, dreamlike structure. Its design emphasizes lightness, blending with the surrounding greenery, creating a space of tranquility and introspection.






Poetic Architecture: Beyond Materiality
Wilburban Architects’ approach transcends the physical aspects of construction, orchestrating a balance between tension and release through spatial forms. The project highlights the interplay of light, air, and natural materials, enhancing the sensory experience of visitors. The architecture becomes a medium for storytelling, allowing occupants to connect deeply with the natural world.





Xanadu Chongchongshan is more than just a retreat; it is a testament to the poetic potential of architecture when it harmonizes with nature. By carefully balancing geometry, light, and spatial order, Wilburban Architects has created a sanctuary that fosters a profound connection with the environment. This project exemplifies how thoughtful design can elevate the human experience within the natural world.





All Photographs are work of Guowei Liu, Hanfeng Zou
Popular Articles
Popular articles from the community
Free Architecture Competitions You Can Enter Right Now
No entry fees, real prizes. Here are the best free architecture competitions open for submissions in 2026.
Solar Steam: A Climate-Responsive Architecture That Redefines the Monument
A climate-responsive memorial architecture that transforms heat, decay, and time into a living system reflecting humanity’s ecological impact.
Atelier Macri Concept Store Interior Design by CASE-REAL
Atelier Macri store features a "ko" counter, walnut wood details, cork displays, blending retail, gallery, and seamless customer experiences.
Similar Reads
You might also enjoy these articles
Bamboo Housing Challenge 2026: Design Affordable, Sustainable Homes Using Bamboo
An international design competition by Bamboo U and IBUKU inviting architects and designers to reimagine affordable housing using bamboo — with the winning design built full-scale in Bali.
Computational Design & Education: Beegraphy Design Awards Introduces 7th Category (Featuring Jiyun's Innovative Approach)
Dive into Beegraphy’s 7th Design Awards category, where computational design meets education to create immersive, interactive learning tools, inspired by Jiyun’s work.
From Parametric Lighting to Urban Furniture: Join the 2nd Workshop in Beegraphy’s Computational Design Series
Dive into Cutting-Edge Design Techniques and Practical Applications with Industry Experts
Explore Architecture Competitions
Discover active competitions in this discipline
The International Standard for Design Portfolios
The Global Benchmark for Architecture Dissertation Awards
The Global Benchmark for Graduation Excellence
Challenge to reimagine the Iron Throne
Comments (0)
Please login or sign up to add comments
No comments yet. Be the first to comment!