Yijia Building at Tongji University: A Landmark of Sustainable University Architecture
Yijia Building redefines sustainable university architecture through spatial innovation, ecological performance, and student-centered design at Tongji University.
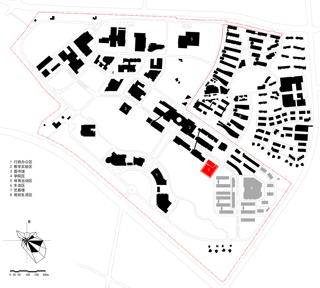
The Yijia Building at Tongji University, designed by TJAD Atelier L+, is a transformative addition to the Jiading Campus in Shanghai. More than just a student activity center, the building is envisioned as a cultural anchor—an architectural node intended to catalyze student life and institutional identity. With a footprint of 21,750 square meters and completed in 2024, this dynamic project exemplifies how sustainable university architecture can integrate ecological design, spatial fluidity, and social interaction.




A Vertical Campus Inspired by Chinese Gardens
Positioned strategically between the academic blocks and dormitories, the Yijia Building serves as a spatial connector and landmark on the campus's southeastern edge. The architectural narrative draws inspiration from the idea of a “vertical campus,” where a series of ramps, terraces, and walkways weave through the structure. This circulation system forms a continuous spatial sequence, reminiscent of a traditional Chinese garden—inviting exploration through an interplay of indoor and outdoor transitions. The experience is one of spatial choreography, where scenes change with each step, offering a blend of architecture and nature.




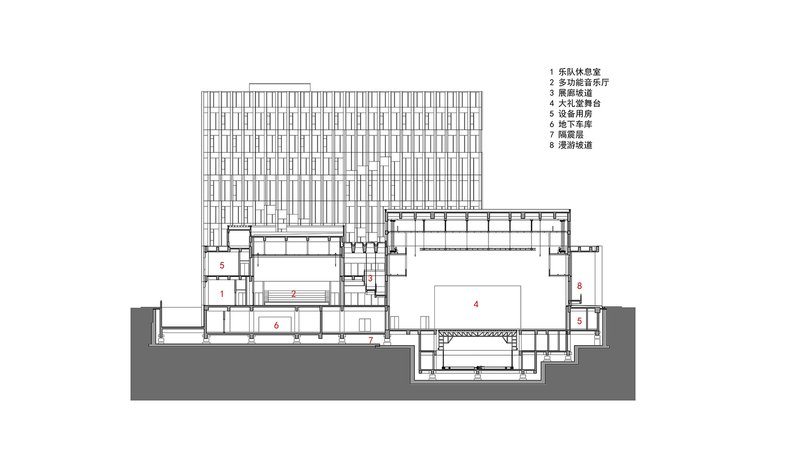
Seismic Safety and Modular Expression
Architecturally, the building is composed of a low podium and a soaring vertical tower, balanced by strong geometric massing and controlled modular expression. Clad in stone-like panels, the facade projects solidity and timelessness. Beneath this simplicity lies a complex engineering response: the building uses a floating seismic system with a 2-meter isolation layer beneath its foundation. The structural approach is prefabricated and modular, with over 40% of the concrete components factory-made to reduce construction waste and time.




Borderless Public Spaces and Student-Centered Design
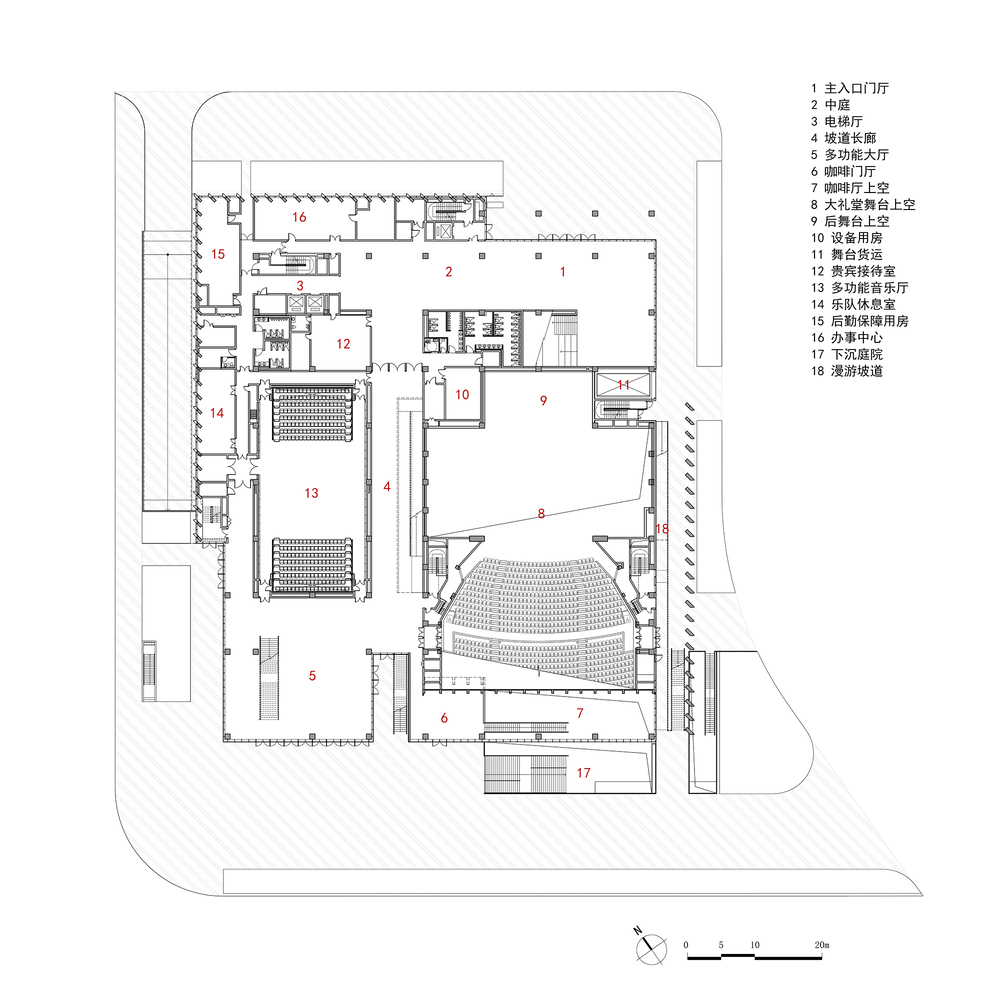
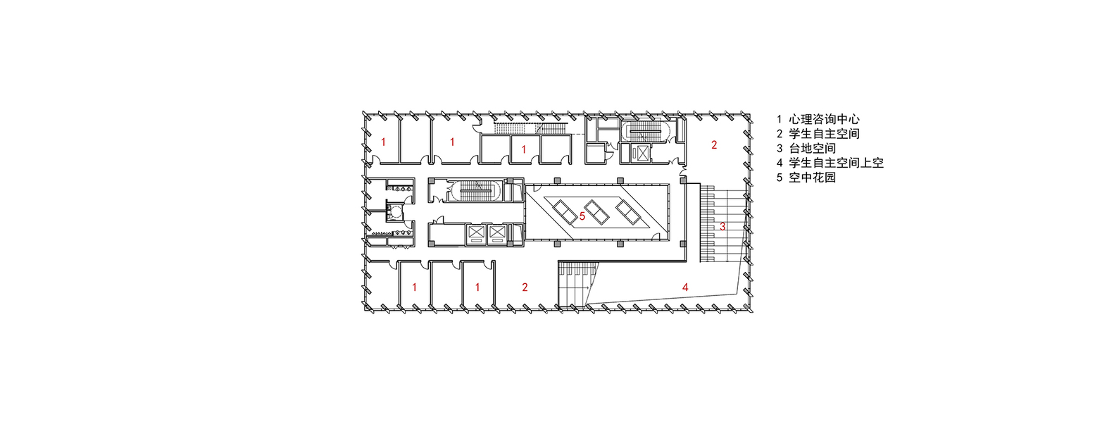
The interior of the Yijia Building blurs the boundaries between functional zones. Walkways are not mere passages but places of rest, discussion, and contemplation. The space invites informal gatherings, reading, thinking, and creative engagement—transforming the building into a multi-dimensional container of campus life. It avoids the rigidity of typical institutional buildings by offering a borderless composite of study lounges, galleries, and performance spaces. Natural materials and thoughtful lighting enhance the interior’s warm atmosphere.




Thermodynamic Innovation and Climate Strategy
A central atrium acts as both a visual anchor and a ventilation core. Designed with thermodynamic principles in mind, the building integrates a stack ventilation system using chimneys and atrium voids to guide airflow. This promotes natural ventilation during Shanghai's transitional seasons and minimizes reliance on mechanical systems. The south-facing public atrium also includes operable façades and a rooftop garden, enhancing thermal performance while enriching spatial experience.



The building's overall carbon emissions are reduced by 7% compared to conventional construction—an environmental achievement comparable to planting 250,000 trees across the Jiading Campus. Such ecological responsiveness sets a new benchmark for sustainable university architecture in China.




A Sensory Journey Through Light, Wind, and Texture
As one moves through the Yijia Building, the architectural experience is enriched by orchestrated play between light, wind, and material textures. Large openings frame views of nearby lakes and campus greenery, bringing external nature into internal life. Light filters through different angles, creating a kinetic effect of shadows on concrete and wood. The interplay of materials, light, and airflow transforms the building into a sensory vessel—a “spatial container of light and wind.”






A New Typology for Educational Architecture
The Yijia Building is more than a functional space; it redefines the typology of student-centered architecture. By seamlessly integrating structure, form, energy performance, and human experience, TJAD Atelier L+ has created a building that embodies the future of sustainable university architecture. Its layered approach—conceptually, materially, and ecologically—resonates with the evolving role of academic institutions as cultural and environmental stewards.






All Photographs are works of Shengliang Su
Popular Articles
Popular articles from the community
Atelier Macri Concept Store Interior Design by CASE-REAL
Atelier Macri store features a "ko" counter, walnut wood details, cork displays, blending retail, gallery, and seamless customer experiences.
The Ken Roberts Memorial Delineation Competition (Krob)
As the most senior architectural drawing competition currently in operation anywhere in the world, it draws hundreds of entries each year, awarding the very best submissions in a series of medium-based categories.
An Miên Lumière Cafe by xưởng xép, Ho Chi Minh City, Vietnam
An industrial-inspired café where layered steel and warm light create a dynamic, immersive environment shaped by reflection, depth, and perception.
Flamboyant House by Juliana Camargo + Prumo Projetos
Modern Brazilian house integrating existing tree, pool, and volumes with glass, wood, and transitional spaces blending interior, exterior, and landscape seamlessly.
Similar Reads
You might also enjoy these articles
Bamboo Housing Challenge 2026: Design Affordable, Sustainable Homes Using Bamboo
An international design competition by Bamboo U and IBUKU inviting architects and designers to reimagine affordable housing using bamboo — with the winning design built full-scale in Bali.
Computational Design & Education: Beegraphy Design Awards Introduces 7th Category (Featuring Jiyun's Innovative Approach)
Dive into Beegraphy’s 7th Design Awards category, where computational design meets education to create immersive, interactive learning tools, inspired by Jiyun’s work.
From Parametric Lighting to Urban Furniture: Join the 2nd Workshop in Beegraphy’s Computational Design Series
Dive into Cutting-Edge Design Techniques and Practical Applications with Industry Experts
Introducing Sphere by UNI: Pioneering a New Era in AEC Industry
Unlocking Global Potential with BIM and Agile Management
Explore Architecture Competitions
Discover active competitions in this discipline
The International Standard for Design Portfolios
The Global Benchmark for Architecture Dissertation Awards
The Global Benchmark for Graduation Excellence
Challenge to reimagine the Iron Throne
Comments (0)
Please login or sign up to add comments
No comments yet. Be the first to comment!