Corten Steel House Design: Rusty House on the Rye by Studio on the Rye
A Corten steel-clad home in South London showcasing modern design, sustainability, and seamless integration with its historical context.
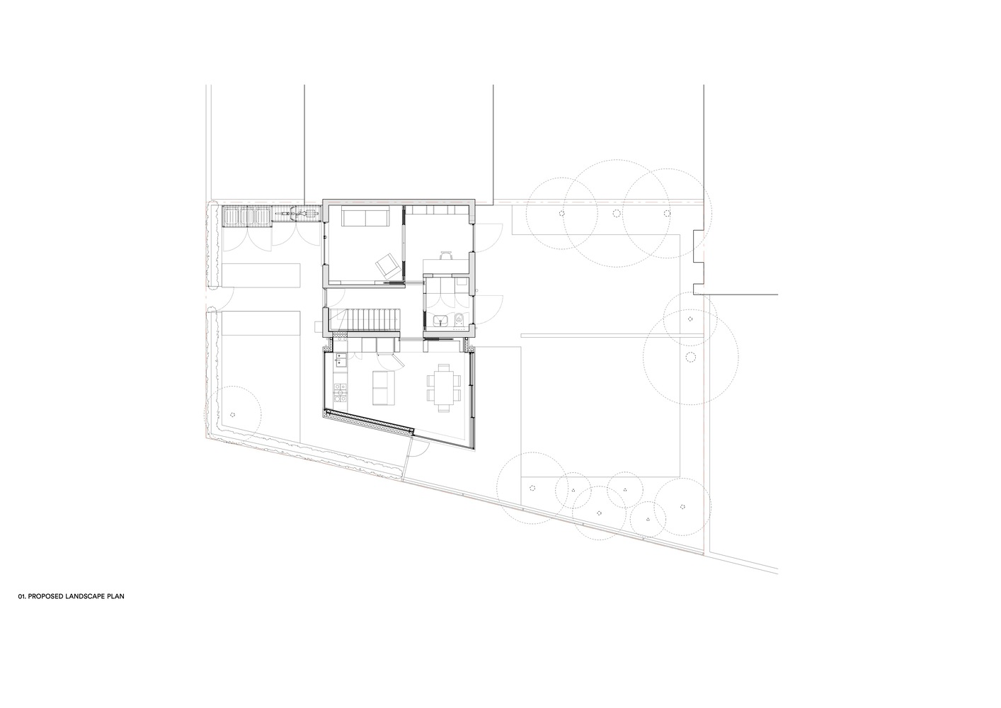
A Bold Extension in South London
The Rusty House on the Rye is a striking example of contemporary Corten steel house design. Located in the Holly Grove Conservation Area of Peckham, South London, this 1950s property has been transformed by Studio on the Rye. The project involved a two-story extension and significant modernization to create a home that harmonizes with its historical surroundings while embracing innovative materials and modern aesthetics.



Location and Historical Context
Situated at the corner of Bellenden Road leading to Rye Lane, the house occupies a prime position in a conservation area. This highly visible location presented a unique opportunity to create a landmark design. The owner, Victoria, resisted offers from developers and instead collaborated with Studio on the Rye to reimagine the space while preserving its connection to the neighborhood.


The conservation area restrictions required a design that respected the historic character of the surroundings without resorting to imitation. The result is a modern yet contextually sensitive home that bridges the 1950s architecture with more traditional neighboring structures.


The Use of Corten Steel in the Design
The standout feature of the Rusty House is its weathered Corten steel cladding. Studio on the Rye chose this material to complement the tones of the existing red brick while adding a bold, contemporary element. The steel's patina, pre-accelerated to achieve a rich, rusty hue, harmonizes with the conservation area and adds a unique character to the home.


The design emphasized monolithic forms, with recessed gutters and shadow gaps in the walls and roof enhancing the clean lines. This deliberate simplicity ensures the extension integrates seamlessly with the existing structure while asserting its modern identity.


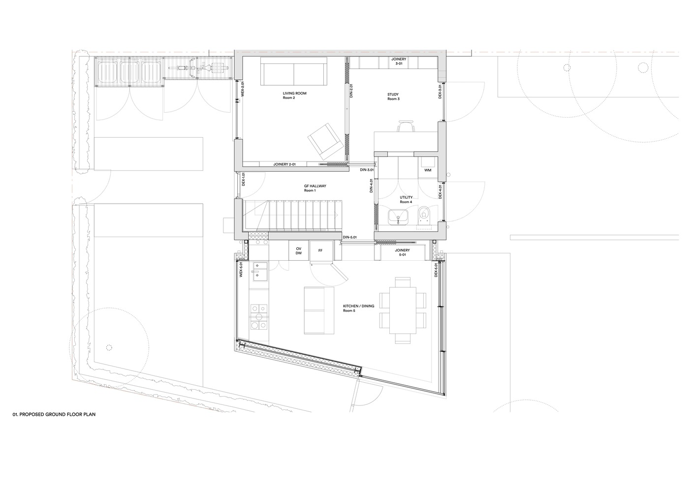
Functional Improvements and Layout
The project added significant living space, including a ground-floor kitchen and dining area, utility room, snug, and a second-floor master bedroom with an ensuite and walk-in wardrobe. The new kitchen, crafted from ash with bespoke joinery, became the heart of the home. Polished concrete tiles were used in the kitchen and dining area, with oak parquet flooring throughout the rest of the house.


Corner windows in the kitchen and master bedroom maximize natural light and offer unique views of the surrounding area. These bespoke glass elements, crafted by Fluid Glass, required innovative solutions to address the challenging angles dictated by the property boundaries.


Overcoming Design Challenges
Working with Corten steel presented both aesthetic and technical challenges. Rainwater runoff from the rusted steel could have stained surrounding finishes, but the application of a sealant prevented further rusting and protected the materials below. The studio collaborated closely with metal suppliers and contractors to ensure a seamless installation of the steel panels, achieving the sleek, minimalist look envisioned by the architect.


The master bedroom's corner windows required bespoke blackout shutters, designed to slide into the walls and remain concealed when not in use. These custom solutions highlight the attention to detail throughout the project.

Enhancing Connection to the Outdoors
The garden played a central role in the design. Large sliding doors, expansive windows, and a glazed corner in the kitchen create a seamless transition between the interior and the rear garden. This integration allows natural light to flood the spaces and makes the outdoors feel like an extension of the home.

The project also addressed the loss of side garden space by enhancing the connection to the rear garden, ensuring the home remained closely tied to its outdoor environment.


Sustainability Features
The Rusty House incorporates several energy-efficient upgrades. Insulation improvements, triple-glazed windows, and a bioethanol stove enhance thermal performance and reduce energy consumption. Natural daylight was prioritized through roof lights in key areas, minimizing reliance on artificial lighting.


Aesthetic Vision
The interior design reflects a Scandinavian-inspired aesthetic, with ash window surrounds, oak parquet flooring, and natural materials adding warmth and texture. The minimalist approach creates a calm, inviting atmosphere, aligning with the homeowner's vision for a serene, functional space.

Community Connection and Legacy
This project is deeply rooted in the local community. Architect Sarah Borowiecka, founder of Studio on the Rye, has lived in Peckham her entire life and named her practice after the area. Rusty House on the Rye represents more than a design project—it is a reflection of Sarah’s connection to her neighborhood and a meaningful contribution to Peckham’s architectural landscape.


A Landmark in Modern Residential Architecture
Rusty House on the Rye exemplifies the potential of Corten steel house design to transform and modernize residential architecture. By blending innovative materials, sustainability, and sensitivity to historical context, Studio on the Rye has created a home that stands out while honoring its surroundings.


All Photographs are works of French + Tye
Popular Articles
Popular articles from the community
Gads Hill Early Learning Center by JGMA: Adaptive Reuse Shaping Community-Focused Educational Architecture
Adaptive reuse transforms fragmented structure into vibrant early learning center with playful façade, natural light, and community-focused sustainable design.
On the Brooks House by Monsoon Collective – A Contemporary Kerala Home Rooted in Tradition
Kerala home blending tradition and modernity with water-inspired design, brick architecture, courtyard planning, and sustainable rainwater harvesting strategies.
A Contemporary Take on Iranian Residential Architecture
A modern interior design in Mashhad that reinterprets brick, light, and spatial flow to create a warm, contemporary residential architecture.
Louis Malle Cinema: A Limestone Cultural Landmark Revitalizing Community Life in Prayssac
Limestone cinema extension with public forecourt, blending heritage and modern design to create flexible cultural spaces and strengthen community interaction.
Similar Reads
You might also enjoy these articles
Bamboo Housing Challenge 2026: Design Affordable, Sustainable Homes Using Bamboo
An international design competition by Bamboo U and IBUKU inviting architects and designers to reimagine affordable housing using bamboo — with the winning design built full-scale in Bali.
Computational Design & Education: Beegraphy Design Awards Introduces 7th Category (Featuring Jiyun's Innovative Approach)
Dive into Beegraphy’s 7th Design Awards category, where computational design meets education to create immersive, interactive learning tools, inspired by Jiyun’s work.
From Parametric Lighting to Urban Furniture: Join the 2nd Workshop in Beegraphy’s Computational Design Series
Dive into Cutting-Edge Design Techniques and Practical Applications with Industry Experts
Introducing Sphere by UNI: Pioneering a New Era in AEC Industry
Unlocking Global Potential with BIM and Agile Management
Explore Architecture Competitions
Discover active competitions in this discipline
The International Standard for Design Portfolios
The Global Benchmark for Architecture Dissertation Awards
The Global Benchmark for Graduation Excellence
Challenge to reimagine the Iron Throne
Comments (0)
Please login or sign up to add comments
No comments yet. Be the first to comment!