GREEN PACIFIER COMPETITION - ECOZEN HOMES
1. INTRODUCTION
In response to the pressing need for eco-friendly housing solutions, EcoZen Homes presents a revolutionary approach to sustainable apartment living. Our project, designed for the Green Pacifier competition, reimagines the traditional apartment complex by prioritizing communal spaces, integrating innovative design elements, and emphasizing environmental sustainability. In this report, we outline the key features and principles that define EcoZen Homes and its commitment to creating a greener, more harmonious living environment.

2. CONCEPTUAL THINKING AND LAYOUTS
1.1. INITIAL DESIGN THINKING
Enhanced Arrival Experience
At EcoZen Homes, we believe that the journey to one's living space should be as enriching as the destination itself. Thus, our building is meticulously crafted to enhance the arrival experience at each unit. Through innovative landscape design, we transform the act of arrival into a distinctive concept, setting the tone for a serene and inviting atmosphere.
Communal Living Spaces
Central to the ethos of EcoZen Homes is the idea of community and interconnectedness. All units within the complex are conceived as individual homes, yet integrated within a unified community. Expansions and connections with open spaces take center stage, fostering a sense of belonging and shared ownership among residents.
Optimized Design
Our design is optimized for efficiency and sustainability, taking full advantage of the available space on a typical half-block lot. By carefully balancing volume and buildable area, we integrate double-height elements and circulation areas that offer glimpses of the serene interior landscape, enhancing the overall living experience.

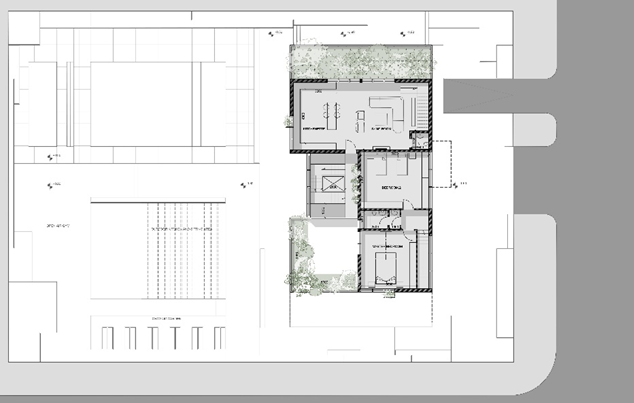
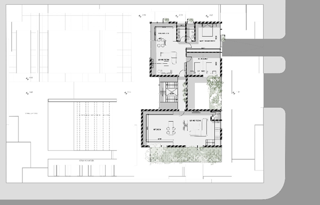
1.2. Apartment layouts
Prototype Apartments
EcoZen Homes offers two prototypes of apartments, each spanning two floors and featuring shared terraces for families. These prototypes are designed to enrich the living experience within the community, promoting interaction and collaboration among residents.






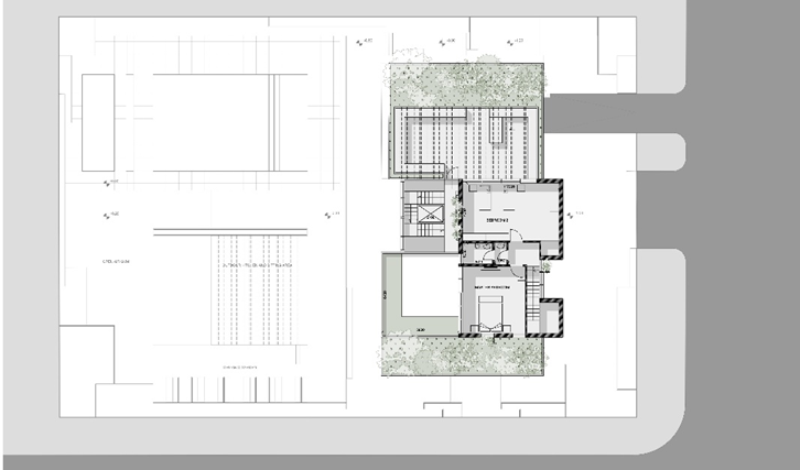
3. SECTIONS
Innovative Features
Our project incorporates a range of innovative features aimed at maximizing sustainability and comfort. Green rooftops and canopies contribute to environmental sustainability and air purification, while operable doors and covered terraces promote natural ventilation and weather protection.

4. Facade treatment
The facade of EcoZen Homes is adorned with louvers made from recycled wood, adding texture and visual interest while contributing to sustainability efforts. Deep sub-sill planter boxes enhance natural air purification and privacy, while Low-E glazing improves thermal performance and reduces energy consumption. Sustainable self-healing concrete ensures the longevity of the structure, while a green wall provides additional insulation and aesthetic appeal.


5. Exterior Shot



6. Interior shots


7. Conclusion
EcoZen Homes represents a paradigm shift in sustainable apartment living, redefining the way we think about communal spaces, environmental responsibility, and architectural innovation. By prioritizing sustainability, comfort, and community, we aim to create a living environment that not only meets the needs of residents but also nurtures a deeper connection to the natural world. With EcoZen Homes, the future of sustainable living is within reach.