Vil Genis School by BPA ARCHITECTURE – Massy, France
Vil Genis School in Massy, France, features sustainable design, south-facing classrooms, community integration, accessible spaces, and modern educational architecture.
IntroductionVil Genis School, designed by BPA ARCHITECTURE in Massy, France, stands as a modern educational facility seamlessly integrating nature and urban life. Strategically located on the periphery of a developing neighborhood, the school bridges the edge between the city and natural landscapes. The project emphasizes high architectural quality, environmental sustainability, and optimized learning conditions for students.




Urban Context & IntegrationThe school’s urban integration prioritizes connection with the local community while enhancing safety and accessibility. Its position near the Place des Écoles fosters proximity to residents, while the underground parking and delivery zones are placed along Vilgénis Street toward the Place des Commerces, ensuring secure access for staff, students, and visitors. The site’s layout creates a welcoming, safe environment for children and families.


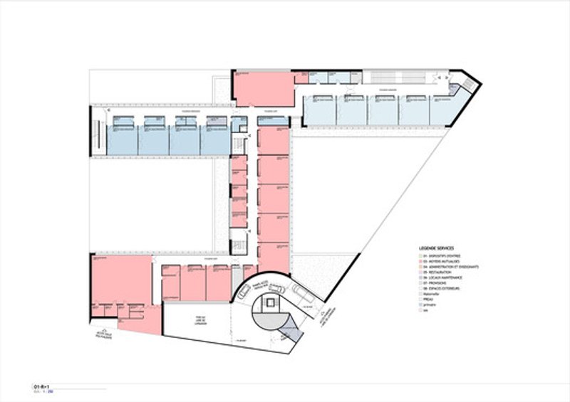
Architectural Design & OrganizationThe building adopts an H-shaped typology, offering a functional layout that organizes the various educational entities efficiently. This configuration optimizes natural light and ventilation throughout the school. Classrooms are oriented southward, maximizing daylight exposure, which supports teaching activities and improves student well-being. The design emphasizes accessibility for all levels, particularly for younger students, with reception areas, playgrounds, dining facilities, and classrooms easily reachable. Meanwhile, the upper floors accommodate older students, maintaining clear circulation and hierarchy within the building.



Sustainability & Environmental FeaturesVil Genis School demonstrates environmentally conscious architecture. The design incorporates bioclimatic strategies to regulate temperature and reduce energy consumption, including south-facing classrooms for passive heating and daylighting. Landscaping around the school promotes green outdoor spaces, contributing to biodiversity while providing safe recreational areas for students. The use of sustainable materials such as BETON BAS CARBONE ensures a lower carbon footprint, complementing the modern, responsible approach to school design.


Interior Experience & FunctionalityThe school interior is designed to support collaborative learning and daily functionality. Stairwells, corridors, and shared spaces promote movement and visual connections, while classrooms and specialized facilities like the restaurant and activity areas prioritize comfort and accessibility. The design balances openness with spatial zoning, ensuring a harmonious environment where students, staff, and visitors can interact efficiently while maintaining privacy and safety.


Vil Genis School is a forward-thinking educational facility that harmonizes modern architecture, sustainable design, and urban integration. Its thoughtful planning, functional H-shaped layout, and emphasis on environmental quality make it an exemplary model for contemporary school architecture. By prioritizing student well-being, natural light, and community engagement, BPA ARCHITECTURE has created a landmark institution that blends educational excellence with environmental responsibility.


All the photographs are works of
Popular Articles
Popular articles from the community
Fifth NRE Jazz Club – De Bever Architecten: Eindhoven’s Revitalized Cultural Hub
Historic gas factory transformed into Fifth NRE Jazz Club blending modern sustainability, jazz culture, dining, and heritage architecture seamlessly.
The Ken Roberts Memorial Delineation Competition (Krob)
As the most senior architectural drawing competition currently in operation anywhere in the world, it draws hundreds of entries each year, awarding the very best submissions in a series of medium-based categories.
Alton Cliff House: A Harmonious Retreat by f2a Architecture in Lake Country, Canada
Alton Cliff House blends corten steel, prefabrication, and sustainable design, creating a luxurious, energy-efficient retreat perched on Canadian cliffs.
Similar Reads
You might also enjoy these articles
The Ken Roberts Memorial Delineation Competition (Krob)
As the most senior architectural drawing competition currently in operation anywhere in the world, it draws hundreds of entries each year, awarding the very best submissions in a series of medium-based categories.
Waterfront Redevelopment and Urban Revitalization in Mumbai: Forging a New Dawn for Darukhana
A transformative waterfront redevelopment project reimagining Darukhana’s shipbreaking heritage into an inclusive urban future.
OUT-OF-MAP: A Call for Postcards on Feminist Narratives of Public Space
Rhizoma Design and Research Lab invites artists, designers, architects, researchers, and students to reflect on how feminist perspectives can reshape public space. Selected works will be exhibited in Barcelona, October 2026. Submissions open until 15 April 2026.
Documentation Work on Buddhist Wooden Temple
Architectural syncretism and cultural hybridity: A comparative study of the Buddhist temples in Chattogram Hill tracks
Explore Architecture Competitions
Discover active competitions in this discipline
The International Standard for Design Portfolios
The Global Benchmark for Architecture Dissertation Awards
The Global Benchmark for Graduation Excellence
Challenge to design public laboratory
Comments (0)
Please login or sign up to add comments
No comments yet. Be the first to comment!