Innovative Commercial Office Building Design: GAGAHOHO Architects' Masterpiece
Exploring the innovative design of the C-PROJECT, a commercial and office building by GAGAHOHO Architects in Namyangju-si, South Korea.
In the heart of Namyangju-si, South Korea, stands a testament to innovative commercial office building design - the C-PROJECT by GAGAHOHO Architects. This structure is not just a building; it's a bold statement in the realm of mixed-use architecture. Designed by the visionary Seungtae O and brought to life by MYUNG JIN Engineering, the C-PROJECT spans an impressive area of 690 m² and was completed in 2024. It serves as the headquarters for a company trading Japanese alcohol, nestled between residential areas and a bustling factory zone.



Design Philosophy and Challenges
The location of the C-PROJECT, with its proximity to both residential and industrial areas, presented unique challenges. The design team was tasked with creating a space that not only serves its functional purpose of storage and workspace but also blends harmoniously with its surroundings. The architects faced limitations such as restricted sunlight access and the need to mitigate noise and dust from the nearby industrial activity.


Program and Spatial Composition
Ground Floor: A Storage Haven
The building's ground floor is ingeniously designed to store alcohol, requiring a specialized insulation system to maintain different temperature zones. This space boasts a 6-meter ceiling height to accommodate forklift movement and large storage volumes, highlighting the architects' attention to functionality and efficiency.



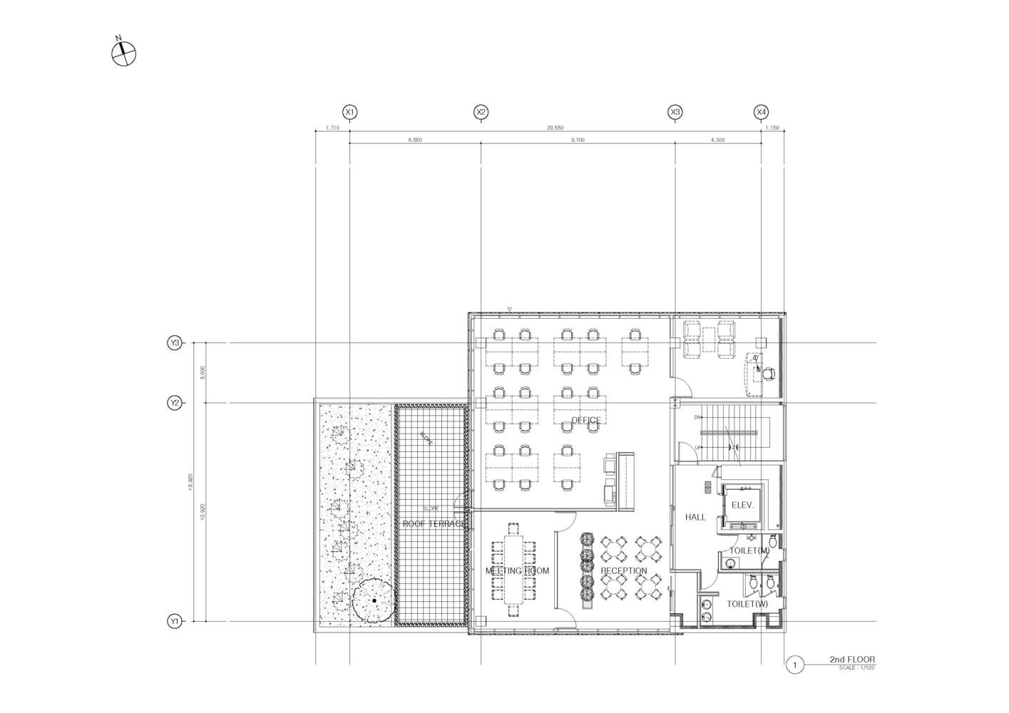
Second Floor: Serenity and Views
The workspace on the second floor is crafted to be a tranquil area where staff can work while enjoying views of the outside terrace. This design choice underscores the importance of a calm working environment in enhancing productivity and creativity.


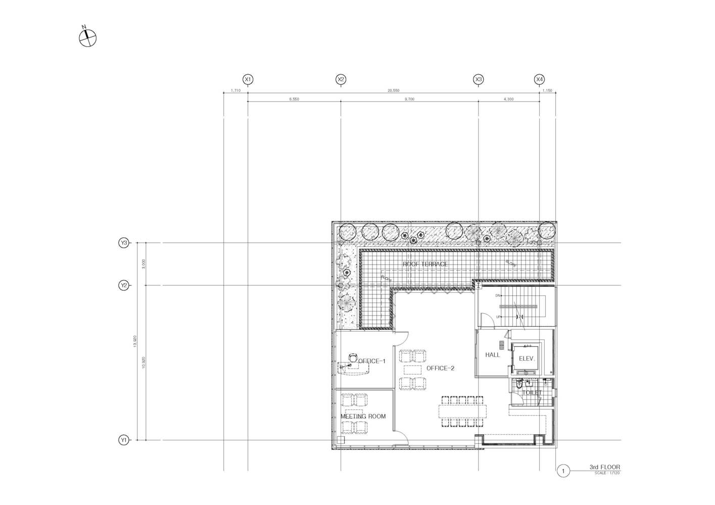
Third Floor: Privacy and Openness
The top floor serves as the client's personal space, designed to be private yet open. An external garden and folding doors connecting to the exterior allow for an expandable space, ideal for hosting events. This area represents a perfect blend of privacy and openness, catering to the client's specific needs.



Material Innovation and Exterior Design
The C-PROJECT's exterior is a nod to the surrounding industrial landscape, employing a minimalist yet geometric aesthetic through the use of exposed concrete and perforated plates. This choice not only achieves visual harmony with the nearby factory buildings but also introduces a new layer of material innovation in commercial office building design.


Creating a Double Skin
The exterior's double skin design is particularly noteworthy. It enhances privacy while allowing natural light to penetrate, creating a dynamic interplay of light and shadow within the workspace. This innovative approach to the building's façade demonstrates GAGAHOHO Architects' commitment to pushing the boundaries of traditional office building design.




A Landmark of Innovation
The C-PROJECT by GAGAHOHO Architects is more than just a building; it's a landmark of innovative commercial office building design. It stands as a beacon of creativity and functionality, embodying the architects' vision of blending a workspace with its industrial surroundings seamlessly. Through its thoughtful design and material innovation, the C-PROJECT establishes a new benchmark for mixed-use architecture in urban settings.


Exploring the Future of Architecture
As we move forward, the C-PROJECT serves as a powerful example of how architecture can respond to complex environmental and functional challenges. It invites us to rethink the possibilities of commercial and office building design, inspiring future projects to prioritize innovation, sustainability, and harmony with their surroundings.


