Innovative Residential Architecture in Mungyeong: Exploring Round Roofs Residence by Todot Architects and Partners
Explore Round Roofs Residence in Mungyeong, blending traditional Korean architecture with modern design to revitalize and inspire community interaction.
Situated in the scenic city of Mungyeong, Round Roofs Residence by Todot Architects and Partners represents a pinnacle of innovative residential architecture. This project blends traditional Korean architectural motifs with modern design principles, creating a distinctive living space that stands out in its urban environment.




Design Philosophy and Architectural Innovation
Integrating Historical Context with Modern Design
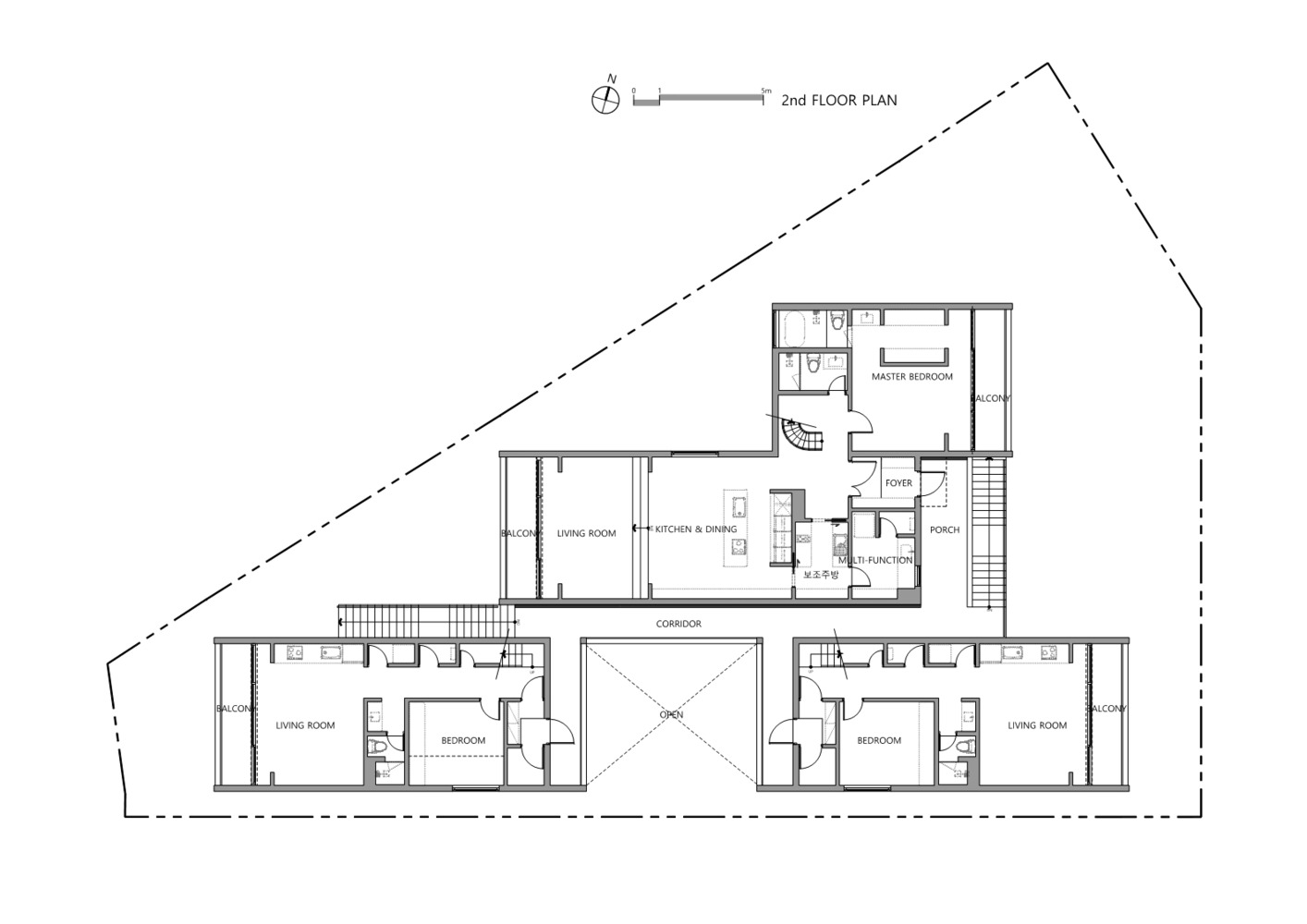
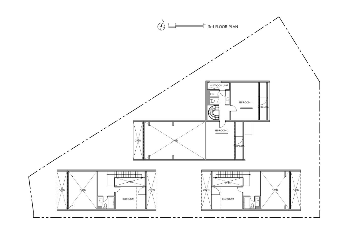
Round Roofs Residence draws inspiration from the ancient Chinese astronomical book, Zhou bi suan jing, which mentions, "The sky is round and the ground is angular." This philosophy is beautifully integrated into the building’s design, featuring curved roof lines that echo the roundness of the sky—a traditional aspect in Korean architecture—while the building's footprint and its angular site alignment reflect the angular ground.





Tailored to the Triangular Site
The residence is uniquely set on a triangular plot, dissected by a road and prominently located near Mungyeong City Hall and Mojeon Park. The design utilizes the shape and strategic position to enhance the site's visibility and accessibility. Staggered massing along the sharp edges of the site creates dynamic interstitial spaces, encouraging engagement with the building’s retail components while enhancing the residential experience.




Structural Features and Material Use
Innovative Use of Materials
Todot Architects and Partners approached the structural design with creativity, employing engineered wood structures alongside traditional concrete and steel. The combination of 2x8s, 2x10s, and OSB boards underlines the project's commitment to innovative and sustainable building practices. The seamless integration of these materials supports the curved designs of the roofs, providing both aesthetic appeal and structural integrity.




Designing with the Environment in Mind
The incorporation of semi-circular windows and recessed arches not only reinforces the connection to traditional design elements but also optimizes natural light and enhances the building's thermal efficiency. These features reflect a broader commitment to environmental sustainability within the scope of modern architecture.




Impact on the Community
Revitalizing the Local Area
Round Roofs Residence is more than just a residential and commercial complex; it is envisioned as a catalyst for revitalizing the surrounding area. By creating a building that naturally attracts residents and visitors, the project contributes to the vibrancy and economic vitality of Mungyeong. Its design and functionality encourage a slower, more engaged flow of movement, enriching the user experience and fostering community interactions.





Round Roofs Residence stands as a testament to the potential of innovative residential architecture in Mungyeong. With its philosophical design roots and modern execution, it sets a new standard for architectural excellence in the region. Todot Architects and Partners have created not just a building, but a landmark that respects its historical context while boldly looking towards the future.


All photographs are work of Jinbo Choi
Popular Articles
Popular articles from the community
Takeshi Hosaka Architects Suspends a Concrete Cross Above a Yokohama Cemetery
A 28-square-meter burial renovation in Yokohama lifts the symbol of resurrection into the sky so mourners see it against heaven.
3dor Concepts Wraps a Kerala Home in Mirrored Concrete Arcs Around a Courtyard Tree
In the Western Ghats foothills of Thamarassery, a 270 m² single-story house uses two curved volumes to frame nature as its center.
20 Most Popular Office Building Projects of 2025
From biophilic workspaces in India to net-positive energy offices in New Delhi, 20 office building projects that defined architecture in 2025.
HCCH Studio Wraps a Shanghai High-Rise Office in Curved Walls of Translucent Glass
A 1,000 square meter fit-out in Lujiazui replaces the typical tech-office palette with layered glass, micro-cement, and quiet rigor.
Similar Reads
You might also enjoy these articles
Olio Towers: A Mid-Rise for Performers That Fuses Housing, Rehearsal, and Stage
Located blocks from Houston's Theater District, this modular tower stacks living units around a central performance atrium.
Oasis: Modular Green Housing Carved into Dhaka's Urban Fabric
A shortlisted Plugin Housing entry reclaims unauthorized settlements in Dhaka with stepped concrete volumes, green roofs, and ventilation-driven design.
Black Hole: A Floating Megastructure for the Post-Physical Era
Emiliano Mazzarotto envisions a spherical, self-scaling arena where e-sports, digital hotels, and holographic stadiums replace traditional public space.
Compact & Sustainable Living in Piraeus: A Four-Level Family Home Built Around Light and Air
A narrow townhouse in one of Greece's densest port cities uses a central atrium and passive strategies to house three generations under one roof.
Explore Architecture Competitions
Discover active competitions in this discipline
The International Standard for Design Portfolios
The Global Benchmark for Architecture Dissertation Awards
The Global Benchmark for Graduation Excellence
Challenge to reimagine the Iron Throne
Comments (0)
Please login or sign up to add comments
No comments yet. Be the first to comment!