Innovative Urban Home Design: Exploring the LP115 House by Junsekino Architect and Design
The article showcases the LP115 House by Junsekino Architect and Design, highlighting its innovative solutions for urban living in Bangkok.
In the bustling city of Bangkok, Thailand, the LP115 House stands as a testament to Innovative Urban Home Design. Created by the renowned Junsekino Architect and Design, this home showcases how architectural ingenuity can overcome urban space constraints, providing a comfortable living environment for a small family within the dense cityscape.


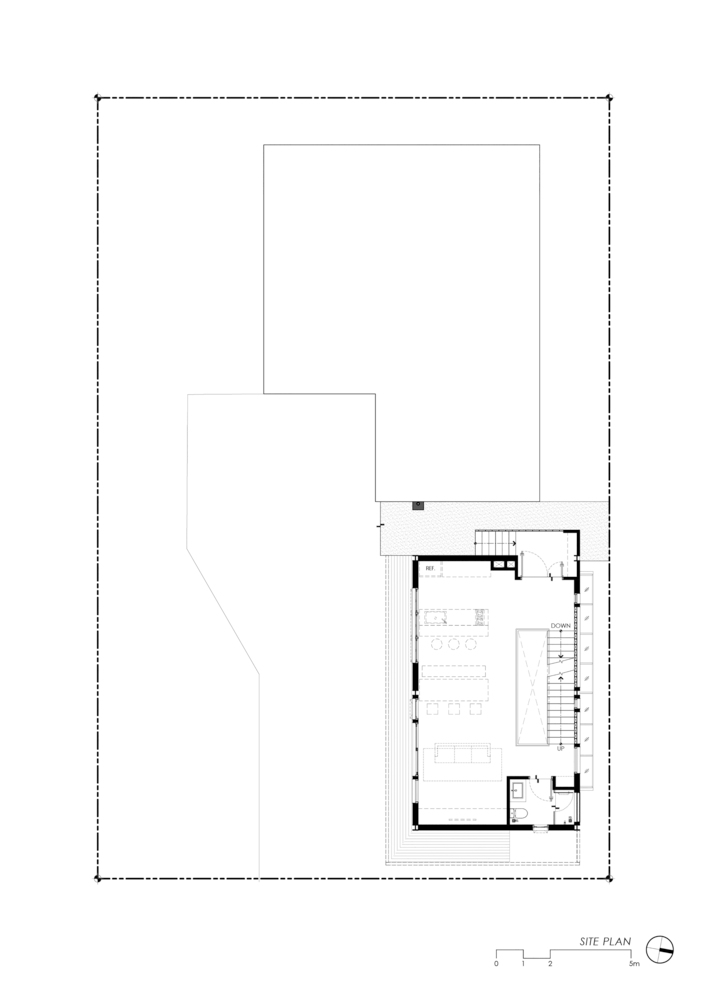
Maximizing Space on a Compact Urban Plot
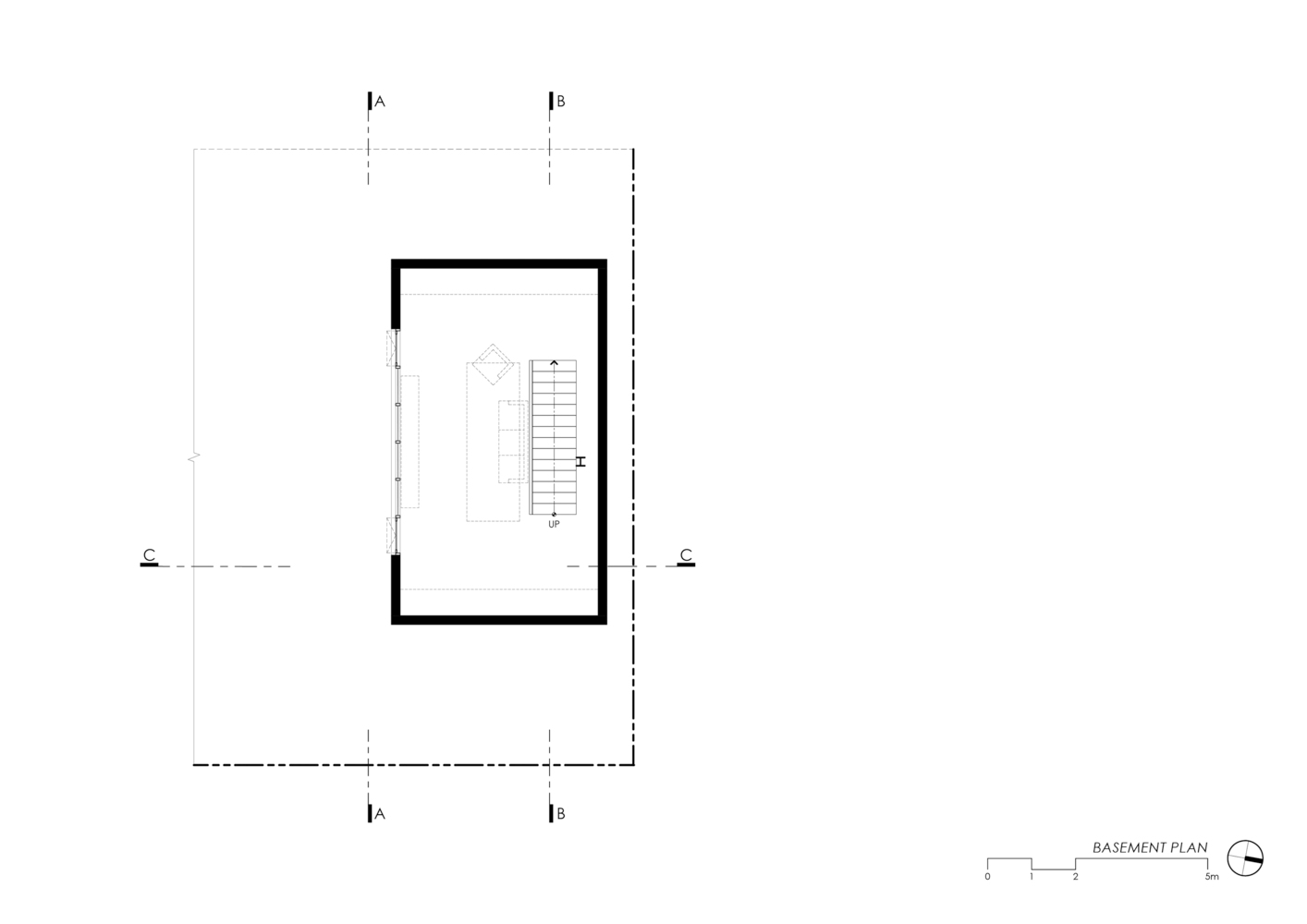
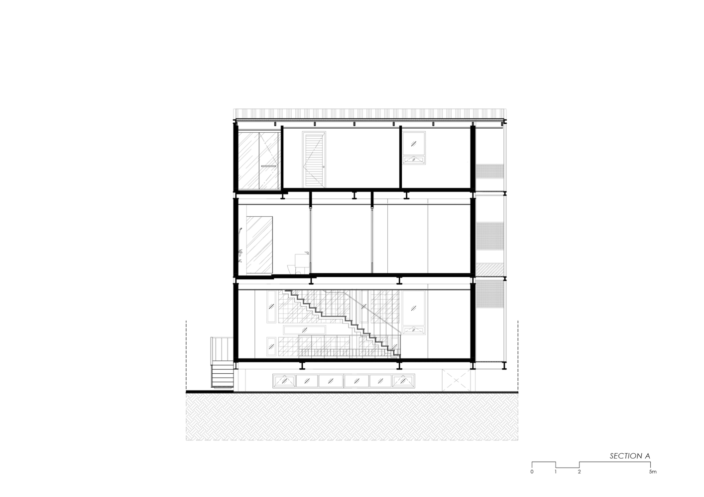
The inception of the LP115 House revolved around the challenge of constructing a new family home on the limited footprint of an existing property. The design cleverly incorporates the area of an old swimming pool by overlaying it with a new, lightweight steel structure. This approach not only preserves valuable urban space but also offers cost savings by avoiding the need to fill in or demolish the previous pool.




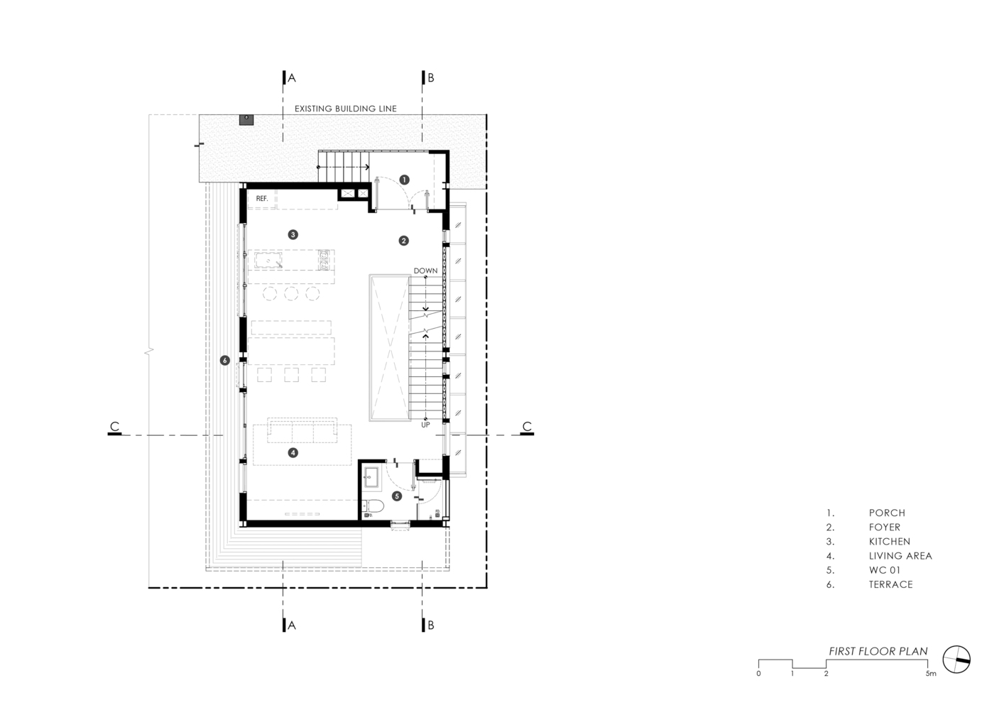
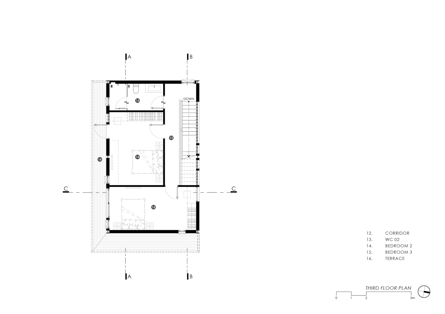
A Three-Story Solution for Family Living
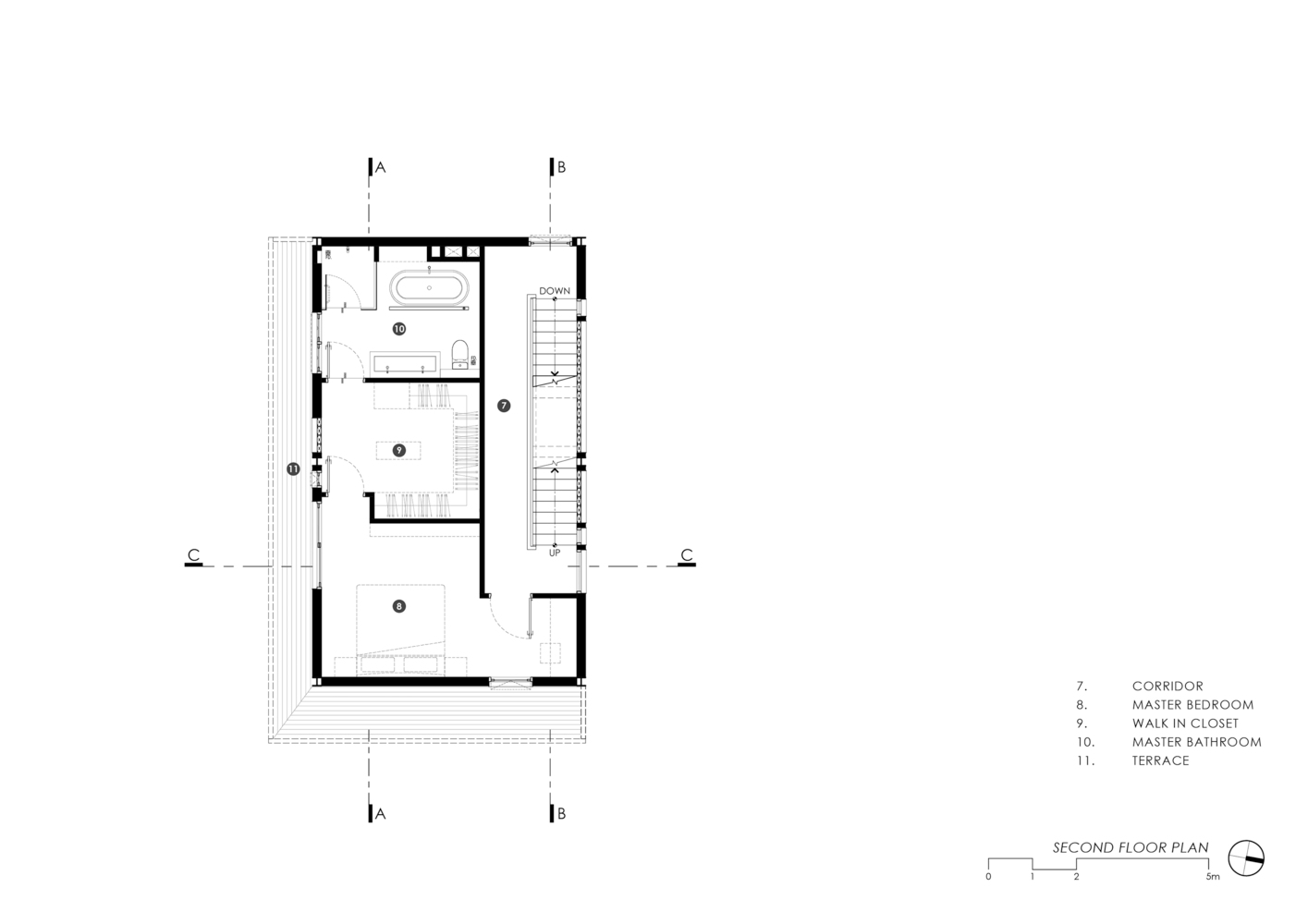
Understanding the need for ample living space, the architects designed the LP115 House as a vertical dwelling, stretching over three levels. The innovative layout positions the main living areas above ground level, transforming the old pool basin into a vibrant entertainment room. The second and third floors are dedicated to private family spaces, ensuring that each member has their own personal retreat.






Architectural Strategies for Comfort and Light
In addressing the challenges of Innovative Urban Home Design, the LP115 House employs smart architectural solutions to maintain comfort and privacy. The home's elevated structure not only safeguards against urban flooding but also facilitates natural light and air flow, reducing the reliance on artificial lighting and air conditioning.



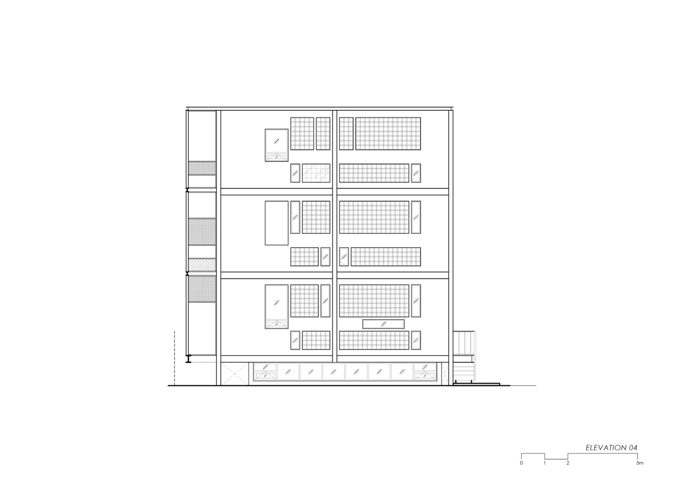
Facade Design: A Blend of Tradition and Modernity
The exterior of the LP115 House breaks down the building's mass into smaller, manageable segments, achieving a human scale within its urban context. The facade utilizes a combination of opaque, transparent, and translucent elements, allowing residents to adjust their level of exposure to the outside world. This dynamic system pays homage to traditional Thai homes while addressing the modern need for privacy and climate control.


Sustainable Features and Natural Ventilation
Embracing the principles of sustainable architecture, the LP115 House features passive cooling strategies such as cross-ventilation and shading devices. The strategic use of materials and facade design minimizes heat gain, creating comfortable indoor temperatures year-round.






Living with Light: The Dynamic Interior Experience
Inside the LP115 House, natural light plays a crucial role, transforming the interior ambiance throughout the day. At night, the house reverses its appearance, glowing warmly from within and adding a beacon of light to the urban landscape.



Redefining Urban Living
The LP115 House by Junsekino Architect and Design is a prime example of Innovative Urban Home Design, reflecting how creativity and thoughtful planning can lead to comfortable, sustainable living spaces in dense city environments. This project not only provides a functional and aesthetic dwelling for its inhabitants but also contributes to the broader dialogue on urban housing solutions.




All photographs are work of Spaceshift Studio