Parlow Residence: A Stunning Blend of Architecture and Landscape Design by AnnaBau
How did AnnaBau achieve the perfect harmony between architecture and landscape in the Parlow Residence?

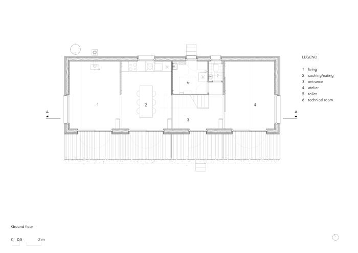
In the heart of a quaint village lies a remarkable architectural gem known as House Parlow. Designed by the esteemed AnnaBau Architektur und Landschaft, the house sits on a rectangular plot opposite the village church, with a sloping terrain that offers breathtaking views of the surrounding landscape.
What sets House Parlow apart is its small footprint. With a width of only 5 meters and a length of 15 meters, the architects were able to preserve ample open space. The house's shed roof is aligned parallel to the topography, creating a unique blend of landscape and architecture.
The interior of House Parlow is a masterclass in flexible design. The ground floor features four plateaus cascading down, with cross-laminated timber platforms arranged at varying heights, connected by stairs with different inclinations. This layout allows for numerous open visual relationships, resulting in a performative interior development.
The cross-laminated timber elements used in House Parlow's walls and rising structural elements are all visible, adding to the house's natural and organic feel. The exterior walls are insulated with cellulose fiber and covered with rough-cut spruce planks, creating a distinct red hue that contributes to the house's unique character.
Sustainability was at the forefront of the design for House Parlow, with a green roof featuring a retention layer that stores rainwater and releases it over time to the plants. The chosen wood building materials and energy concept, including an air heat pump and wood stove, reduce energy consumption, while underfloor heating and intermediate spaces promote warm air flow.
House Parlow's large glazed wall openings blur the line between interior and exterior spaces, with a terrace on the south side framed by hardy kiwi plants that provide shade during the summer months. The house's materials are intentionally raw and unpolished, showcasing the natural beauty of the building materials.
In summary, House Parlow is a masterful blend of architecture and landscape design, showcasing the talents of AnnaBau Architektur und Landschaft. With its sustainable features and flexible interior, House Parlow is a shining example of how buildings can harmoniously coexist with nature.



























Architects: ANNABAU Architektur and Landschaft GmbH
Area: 166 m²
Year: 2022
Photographs: Hanns Joosten
Wood Construction: Zimmerei David Krebs
Facade Builder: Zimmerei David Krebs
Heating And Plumbing: Bau Casekow
City: Friedrichswalde
Country: Germany
Popular Articles
Popular articles from the community
Louis Malle Cinema: A Limestone Cultural Landmark Revitalizing Community Life in Prayssac
Limestone cinema extension with public forecourt, blending heritage and modern design to create flexible cultural spaces and strengthen community interaction.
Inverted Architecture Installation by Studio Link-Arc: Exploring the Intersection of Architecture and Living Organisms
Inverted Architecture Installation by Studio Link-Arc blends mycelium, sustainability, inverted design, ecological cycles, and urban adaptive architecture in Shenzhen.
Solar Steam: A Climate-Responsive Architecture That Redefines the Monument
A climate-responsive memorial architecture that transforms heat, decay, and time into a living system reflecting humanity’s ecological impact.
An Miên Lumière Cafe by xưởng xép, Ho Chi Minh City, Vietnam
An industrial-inspired café where layered steel and warm light create a dynamic, immersive environment shaped by reflection, depth, and perception.
Similar Reads
You might also enjoy these articles
Zhuxi Wonderland: Reimagining Traditional Chinese Gardens by Doarchi Architects
Zhuxi Wonderland by Doarchi Architects reinterprets traditional Yangzhou gardens, integrating courtyards, pavilions, and tea houses in modern cultural design.
Doble Soga House: A Contemporary Brick Residence Rooted in Landscape in Quito, Ecuador
Brick house in Quito integrating nature, flexible living spaces, exposed materials, and rooftop terrace, creating warm contemporary architecture for modern family life.
Al Gharra Mosque in Medina Redefining Contemporary Islamic Architecture
Minimalist Medina mosque using concrete, light, and landscape to reinterpret Islamic worship spaces through symbolic spiritual transitions and contemporary architecture.
Viczonecode Villa by DDconcept – Tropical Family Living in Ho Chi Minh City
Tropical family villa in Ho Chi Minh City featuring courtyards, skylights, natural ventilation, elevated flooring, and seamless indoor–outdoor living surrounded by greenery.
Explore Architecture Competitions
Discover active competitions in this discipline
The International Standard for Design Portfolios
The Global Benchmark for Architecture Dissertation Awards
The Global Benchmark for Graduation Excellence
Challenge to reimagine the Iron Throne
Comments (0)
Please login or sign up to add comments
No comments yet. Be the first to comment!