Pioneering Sustainability: The Council of Engineers Headquarters by AATTN8A
The Council of Engineers Headquarters by AATTN8A melds sustainable design with community integration, setting a new standard for engineering spaces in Thailand.
In the bustling urban landscape of Khet Wang Thonglang, Thailand, the Council of Engineers Headquarters emerges as a beacon of sustainable engineering headquarters design. Conceptualized by AATTN8A and sprawling over an area of 11100 m², this architectural marvel completed in 2022 showcases how life, art, and technology can coalesce to foster well-being, innovation, and environmental stewardship.




A Vision of Community and Sustainability
The Core Ideology
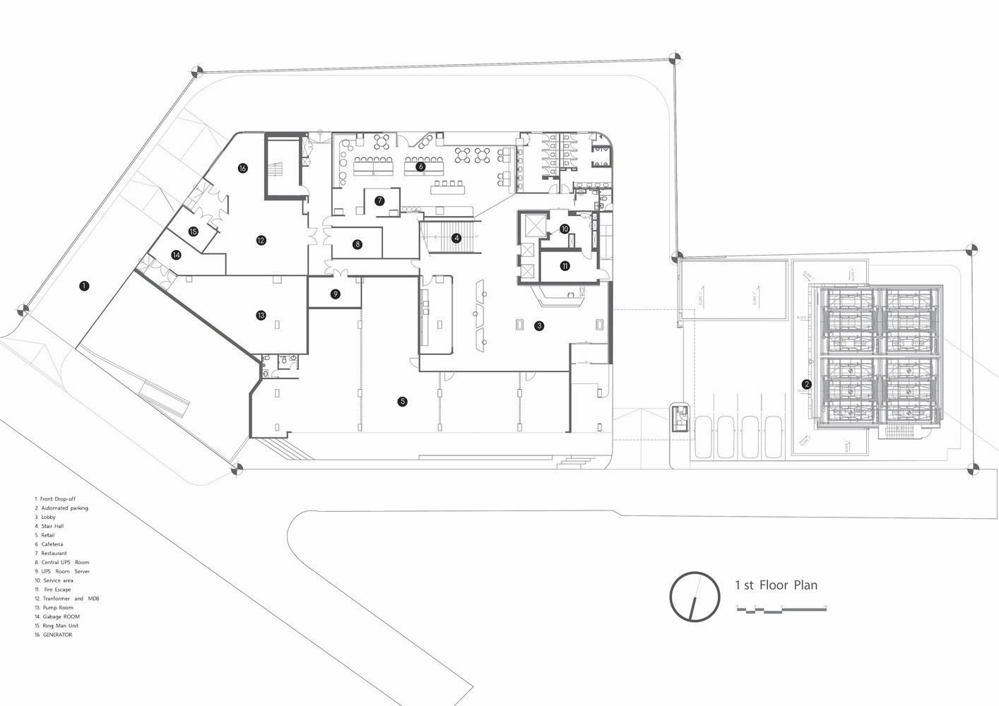
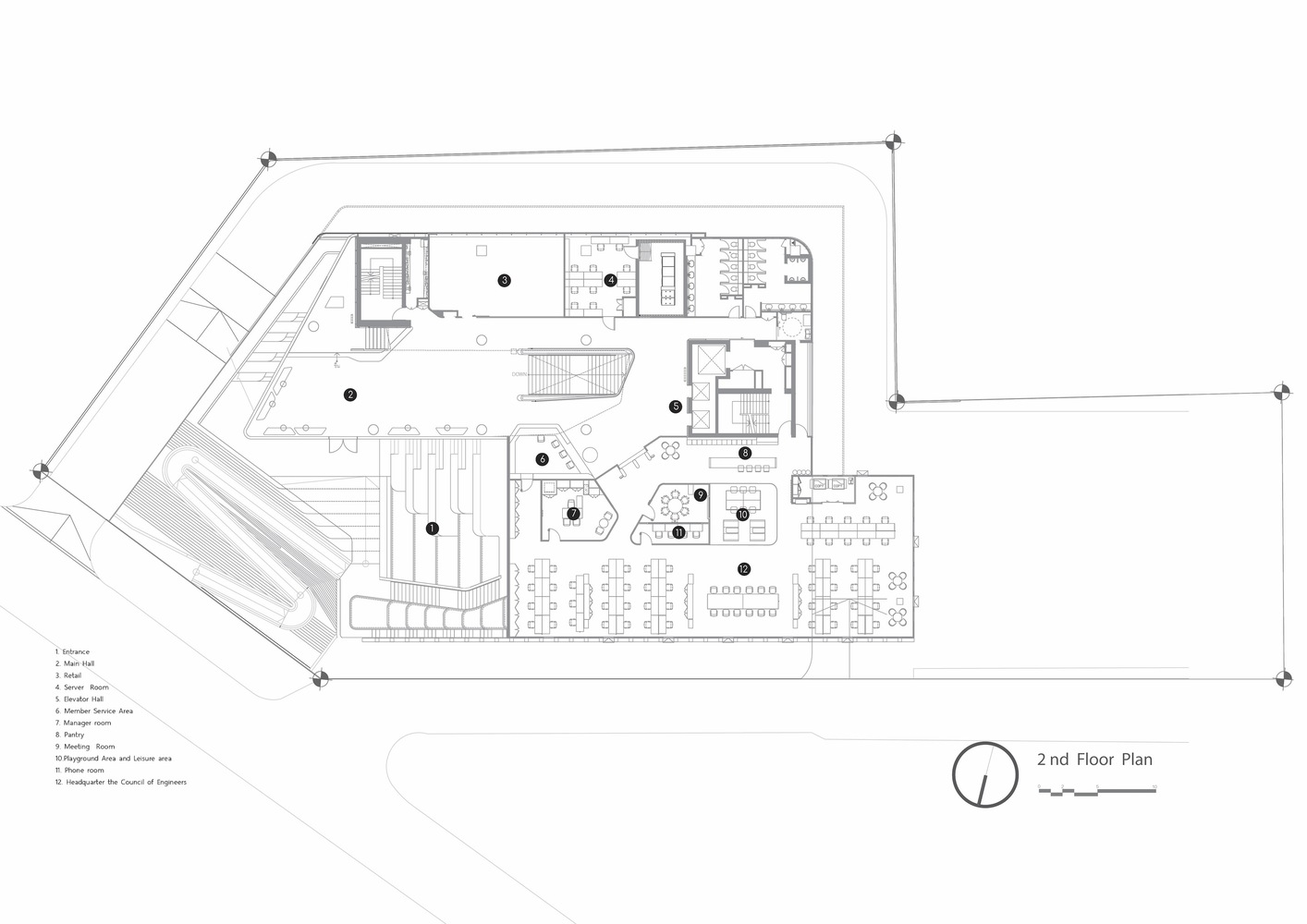
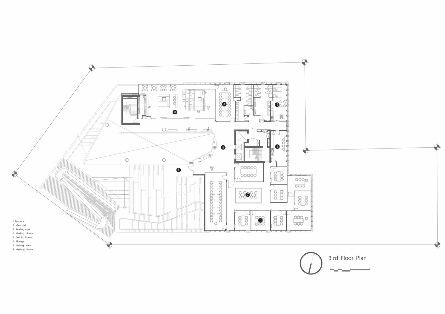
At the heart of its design philosophy, the Council of Engineers Headquarters is not just an office building; it is a visionary space that seeks to rejuvenate the city by integrating a vast green space, including a public park and library. This approach is aimed at enhancing the quality of life for all community members, making it a hub for work, learning, and interaction.




Architectural and Environmental Synergy
The lead architects, Salyawate Presertwittayakarn and Ativich Kulngamnetr, alongside landscape designers from 8.18 studio and structural engineers from Team Consulting & Management (TEAMG), have envisioned a building that is a testament to the power of sustainable architecture. The use of eco-friendly materials and engineering innovations ensures a minimal environmental footprint, demonstrating a commitment to reducing natural resource consumption and carbon production.




Design Strategies for a Sustainable Future
The Dual Zones: Integration with Nature
Divided into lower and upper zones, the building harmonizes modern Thai architectural elements with sophisticated green terrains accessible to the public. Its façade features vertical and horizontal patterns that act as sun-shading devices, contributing to energy efficiency and comfort.




Engineering Innovations at the Forefront
A showcase of civil engineering prowess allows the structure to extend up to 16 meters without support columns, creating an unobstructed internal space. Energy-efficient air conditioning saves up to 40% energy with a dual-temperature cold water system. Furthermore, the building employs sustainable practices like water reuse for irrigation and a natural garden for water treatment, underlining its green credentials.




A Focus on Community and Accessibility
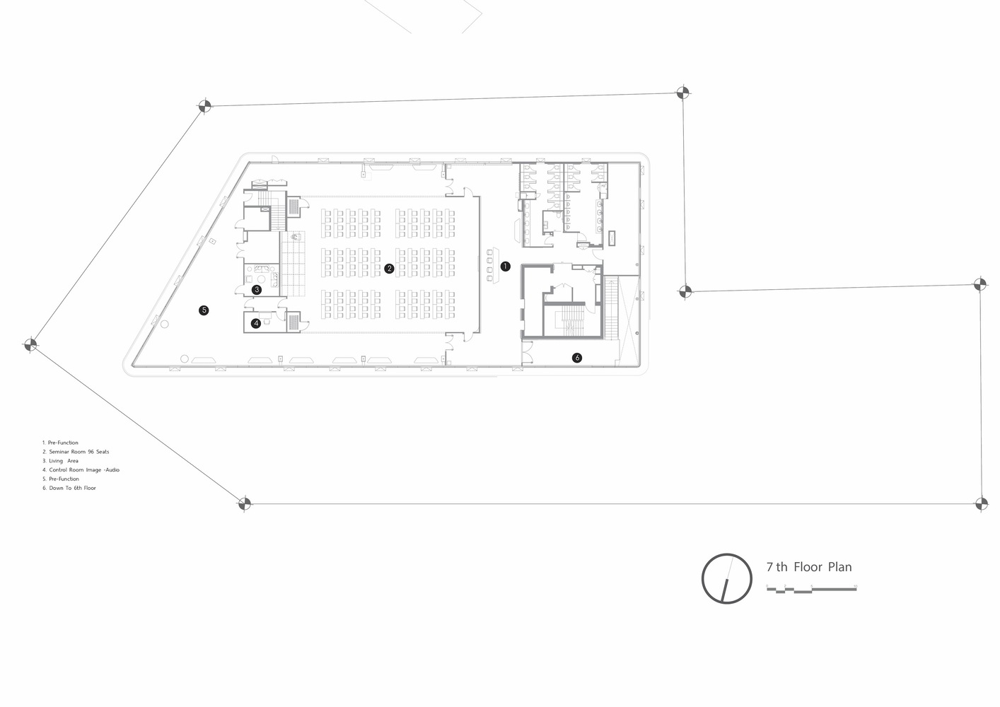
The Council of Engineers Headquarters prioritizes public accessibility, fostering a space where neighbors and educational institutions can collaborate. It invites external organizations to engage, facilitating professional development across various fields. This initiative ensures the project's role in societal advancement and community integration.




The Impact of Sustainable Design
Reducing Urban Heat and Enhancing Efficiency
The rooftop garden mitigates the urban heat island effect, while the sculptural form of the building, clad in perforated aluminum, reduces energy consumption. These features exemplify how architectural design can address climate change and urban sustainability challenges.


A Model for Future Engineering Workspaces
This project sets a new standard for sustainable engineering headquarters design, blending aesthetic appeal with functional and environmental considerations. It stands as a model for future workspaces, emphasizing the importance of architecture that supports both organizational goals and community well-being.














A Legacy of Innovation and Sustainability
The Council of Engineers Headquarters by AATTN8A is more than an architectural landmark; it is a forward-thinking initiative that embodies the principles of sustainable design. Through its innovative use of space, attention to environmental impact, and commitment to community engagement, the project marks a significant step toward a more sustainable and collaborative future in architecture and engineering.









All photographs are work of DOF Sky|Ground, Yamastudio , Supakorn Soontararak