Revolutionizing Education Spaces: Zhaohui Rong Studio's Innovation at Wenqi Road Primary School
Discover Zhaohui Rong Studio's revolutionary design at Wenqi Road Primary School, redefining innovative elementary education spaces.
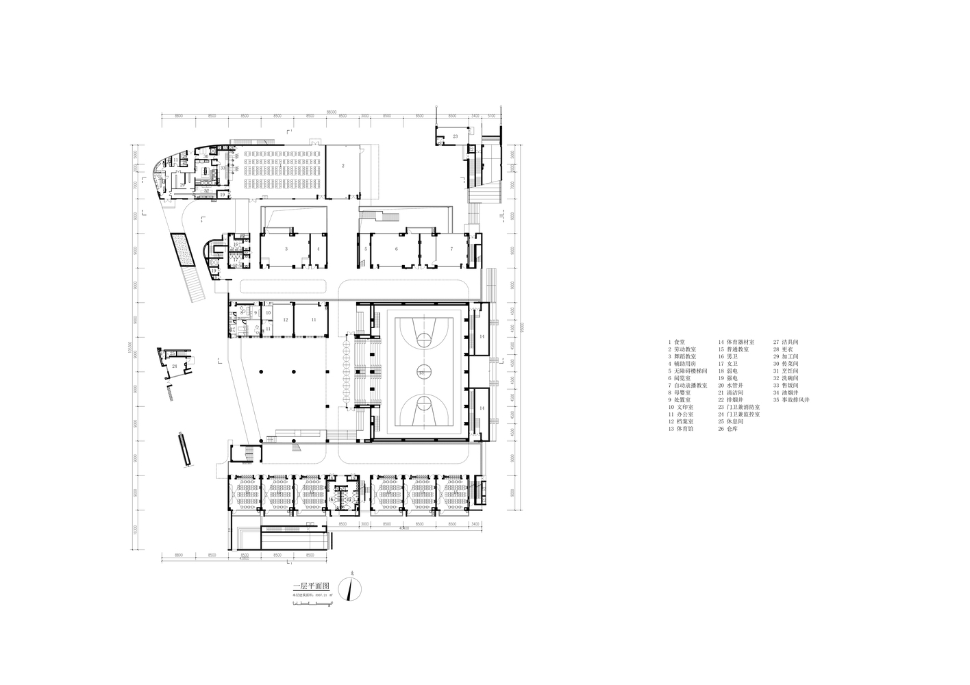
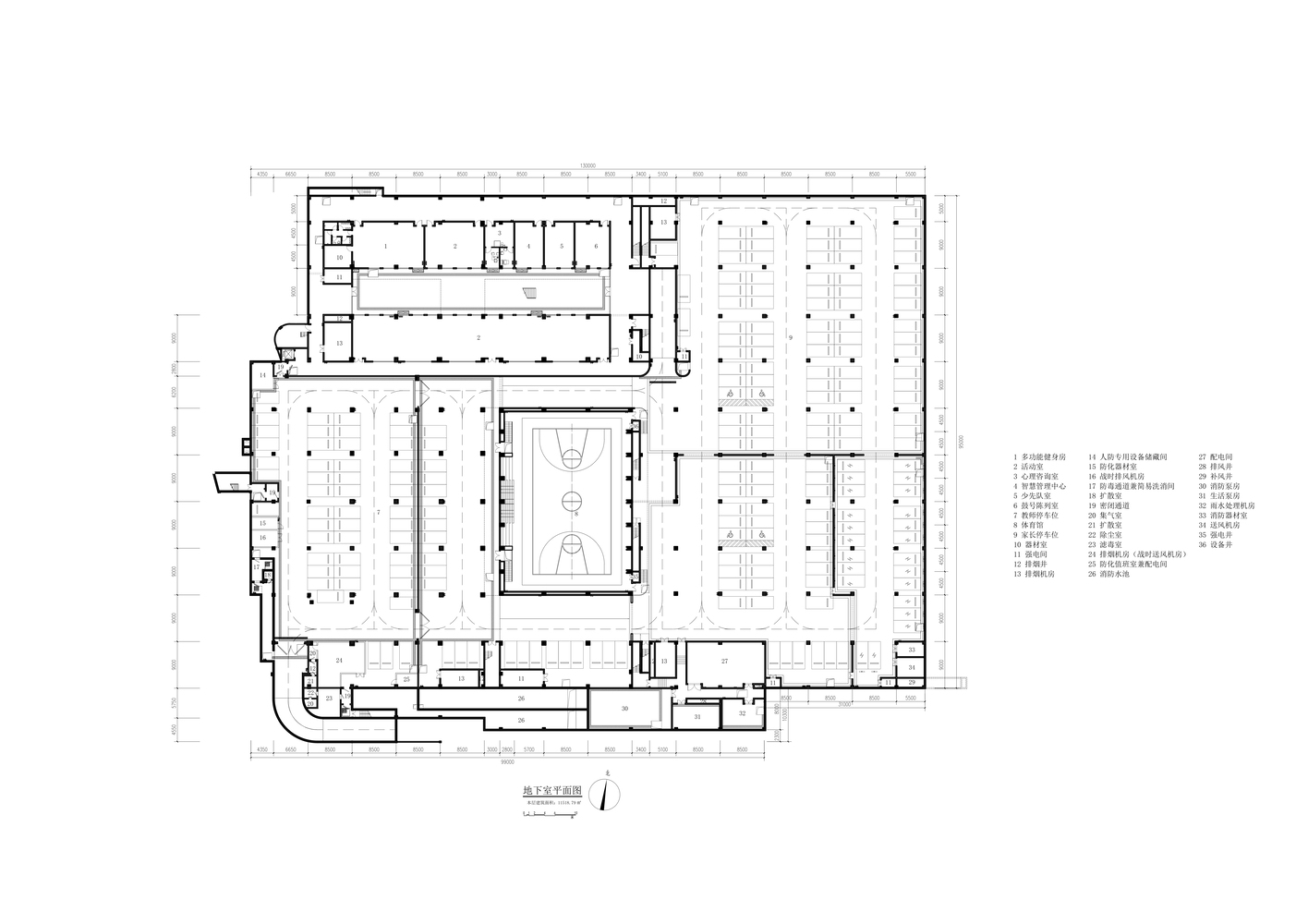
Discover the cutting-edge design of Wenqi Road Primary School in Nanjing, China, envisioned by Zhaohui Rong Studio. Encompassing 23,538 square meters, this article unravels the school's distinctive architectural principles, spotlighting spatial transparency and relationship redundancy as key elements.

Crafting Spatial Brilliance: Zhaohui Rong Studio's Visionary Approach
Explore the visionary architectural design of Wenqi Road Primary School by Zhaohui Rong Studio. This section sheds light on the studio's innovative philosophy, emphasizing the significance of spatial transparency and relationship redundancy, setting a new standard for educational spaces.


Architectural Marvels: Wenqi Road Primary School's Design Philosophy
Journey through the architectural wonders and innovative features defining Wenqi Road Primary School. From the versatile entrance gray space to the rooftop grand platform, each design aspect contributes to an unparalleled spatial experience. This section unveils the school's commitment to pushing the boundaries of conventional educational spaces.















Designing for Impact: Wenqi Road Primary School's Spatial Revolution
Uncover how Wenqi Road Primary School transforms traditional educational spaces. This section highlights the impact of Zhaohui Rong Studio's design philosophy on the spatial experience, underlining the importance of openness and dynamic relationships within the school environment.





The Essence of Innovation: Wenqi Road Primary School's Architectural Signature
Explore the essence of innovation embedded in Wenqi Road Primary School's architectural signature. This section delves into the core principles of spatial transparency and relationship redundancy, showcasing how these concepts create a unique and dynamic learning environment.



Shaping the Future: Wenqi Road Primary School's Influence on Educational Architecture
Delve into the future implications of Wenqi Road Primary School's design on educational architecture. As a pioneer in innovative elementary school design, this section discusses how the school establishes a precedent for reimagining educational spaces, influencing the future of learning environments.









Zhaohui Rong Studio's Legacy: Transforming Educational Spaces
Explore the enduring legacy of Zhaohui Rong Studio in reshaping educational spaces through Wenqi Road Primary School. This section celebrates the studio's dedication to pushing boundaries, fostering creativity, and creating architectural marvels that withstand the test of time.
All Photographs are the work of Bowen Hou
Popular Articles
Popular articles from the community
Louis Malle Cinema: A Limestone Cultural Landmark Revitalizing Community Life in Prayssac
Limestone cinema extension with public forecourt, blending heritage and modern design to create flexible cultural spaces and strengthen community interaction.
Treehouse Apartment: A Warm Timber Interior Blending Craft, Play, and Contemporary Living
Warm timber apartment with integrated treehouse, combining natural materials, craftsmanship, and playful design to create a flexible, family-oriented living environment.
The Ken Roberts Memorial Delineation Competition (Krob)
As the most senior architectural drawing competition currently in operation anywhere in the world, it draws hundreds of entries each year, awarding the very best submissions in a series of medium-based categories.
Inverted Architecture Installation by Studio Link-Arc: Exploring the Intersection of Architecture and Living Organisms
Inverted Architecture Installation by Studio Link-Arc blends mycelium, sustainability, inverted design, ecological cycles, and urban adaptive architecture in Shenzhen.
Similar Reads
You might also enjoy these articles
Top 15 Architecture Competitions to Enter in 2026
From student-friendly idea competitions to prestigious international awards, here are the best architecture competitions open for entries in 2026. Updated regularly.
DIY & Engineering in Computational Design : Enter the BeeGraphy Design Awards
Showcase Your Creativity with Computational Design and Open Source Projects

Innovative Design Solutions: Award-Winning Projects from Recent Architecture Competitions
Exploring award-winning architectural projects shaping the future of design, sustainability, and community.
Explore Architecture Competitions
Discover active competitions in this discipline
The International Standard for Design Portfolios
The Global Benchmark for Architecture Dissertation Awards
The Global Benchmark for Graduation Excellence
Challenge to reimagine the Iron Throne
Comments (0)
Please login or sign up to add comments
No comments yet. Be the first to comment!