Social Studio sparks meaningful connections through creativitySocial Studio sparks meaningful connections through creativity

Social Studio sparks meaningful connections through creativity

Samah Jouda
Samah Jouda published News under Architecture on
@KIM FOHMANN
@KIM FOHMANN

The rising land prices in the greater Freiburg area have made it difficult to acquire multi-family property for residential purposes. However, STUDIO SOZIA TINA, an architecture firm, has found a solution to this problem by developing a commercial property that can be converted into apartments in the future.

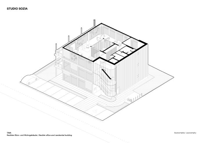
The building is a free-standing, three-storey solitaire with a unique geometry that is based on the surrounding developments of the new commercial area. The building has been designed to be flexible, allowing for the creation of variable office and apartment sizes. The project also includes a semi-circular stair landing that breaks up the clear geometry of the volume, marks the entrances to the individual units, and serves as a communicator in the surrounding urban space.

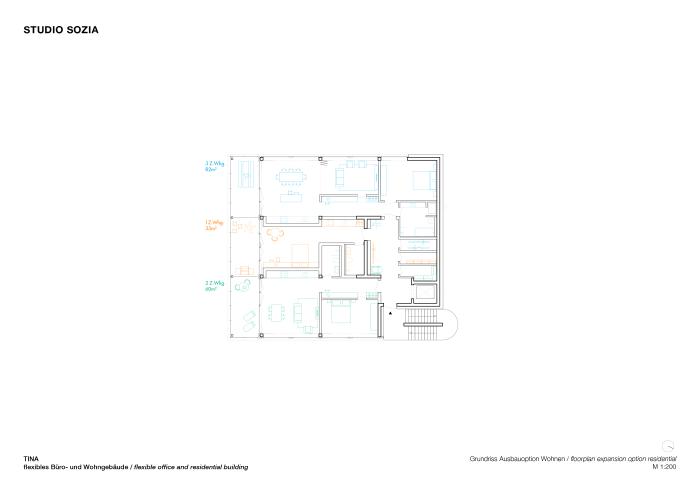
The functional concept of the building is based on a 5x5 meter load-bearing grid that transforms the building from a closed wall panel in the north to an open support structure in the south, with an adjoining, spacious outdoor area. This structural transformation makes it possible to create a resource-efficient, long-lasting supporting structure that enables maximum flexibility in use and zoning.

The building's spatial concept is based on the centralization of service rooms such as toilets, storage, and technology on the closed north wall. All work areas are oriented around the heart of the kitchen, creating a communicative place of exchange. The outdoor areas in the south are used for relaxation, informal exchange, and temporary workspace.

The building's facade design reflects the conceptual guiding principle of the transformation. The north facade appears completely opaque with a rear-ventilated trapezoidal sheet metal facade, while the west and east facades open up to the surroundings with large window elements. The south-facing balconies and terrace form the conclusion and the second physical interface to the outside space.

STUDIO SOZIA TINA has designed the building with special attention to the unburned-ling potential of the construction. The facade can be easily upgraded to the current status even if requirements change in the future, making the building a functionally sustainable and future-oriented structure.

The building is an innovative solution to the housing crisis in Freiburg, providing a flexible and efficient design that can adapt to future changes. STUDIO SOZIA TINA has created a building that is not only practical but also visually stunning, revitalizing the surrounding commercial area with its use of industrial quality components and a high proportion of glass in the facade.

@KIM FOHMANN
@KIM FOHMANN
@KIM FOHMANN
@KIM FOHMANN
@KIM FOHMANN
@KIM FOHMANN
@KIM FOHMANN
@KIM FOHMANN
@KIM FOHMANN
@KIM FOHMANN
@KIM FOHMANN
@KIM FOHMANN
@KIM FOHMANN
@KIM FOHMANN
@KIM FOHMANN
@KIM FOHMANN
@KIM FOHMANN
@KIM FOHMANN
@KIM FOHMANN
@KIM FOHMANN
@KIM FOHMANN
@KIM FOHMANN
@KIM FOHMANN
@KIM FOHMANN
@KIM FOHMANN
@KIM FOHMANN
@KIM FOHMANN
@KIM FOHMANN
@KIM FOHMANN
@KIM FOHMANN
@KIM FOHMANN
@KIM FOHMANN
@KIM FOHMANN
@KIM FOHMANN
@STUDIO SOZIA
@STUDIO SOZIA
@STUDIO SOZIA
@STUDIO SOZIA
@STUDIO SOZIA
@STUDIO SOZIA
@STUDIO SOZIA
@STUDIO SOZIA
@STUDIO SOZIA
@STUDIO SOZIA
@STUDIO SOZIA
@STUDIO SOZIA
@STUDIO SOZIA
@STUDIO SOZIA
@STUDIO SOZIA
@STUDIO SOZIA
@STUDIO SOZIA
@STUDIO SOZIA
@STUDIO SOZIA
@STUDIO SOZIA

Architects: STUDIO SOZIA

Area: 835 m²

Year: 2022

Photographs: Kim Fohmann

Manufacturers: Jakob, Giro, RAICO

Building Services Engineer: Ingenieurbüro für Gebäudetechnik Uwe Häberle

Structural Design: Mohnke Höss Bauingenieure

Design And Project Leaders: Valerio Calavetta, Lisa Häberle

City: Breisach

Country: Germany

Samah Jouda
Share your ideas with the world

Share your ideas with the world

Write about your design process, research, or opinions. Your voice matters in the architecture community.

Comments (0)

No comments yet. Be the first to comment!

Similar Reads

You might also enjoy these articles

publishedNews6 days ago
Zhuxi Wonderland: Reimagining Traditional Chinese Gardens by Doarchi Architects
publishedNews1 week ago
Doble Soga House: A Contemporary Brick Residence Rooted in Landscape in Quito, Ecuador
publishedNews1 week ago
Al Gharra Mosque in Medina Redefining Contemporary Islamic Architecture
publishedNews1 week ago
Viczonecode Villa by DDconcept – Tropical Family Living in Ho Chi Minh City

Explore Architecture Competitions

Discover active competitions in this discipline

Samah Jouda
Search in