Transforming a Modest House into a Stunning Home in the Vibrant 'Pol' Neighborhood
What Design Elements Can Elevate a Modest House in the 'Pol' Neighborhood?

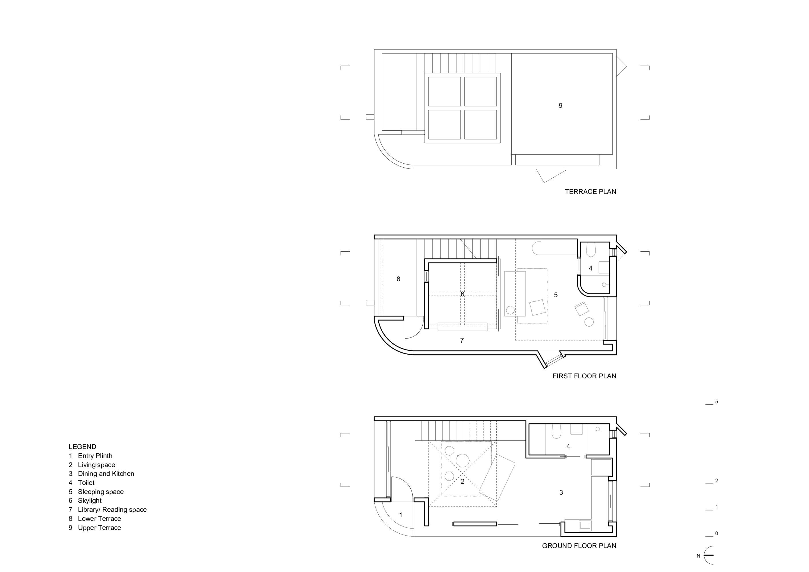
In the heart of Ahmedabad's 'Pol' neighbourhood, a modest house stands out with its unique approach to compact living. The Clever House, as it is called, is a single-storey structure that replaces a dilapidated building with an exposed concrete monolith that cuts, folds and bends to articulate the facades. It is a coming together of traditional community-based housing settlements prevalent in western India, particularly Gujarat, and the ideas of modernism that have shaped the architectural landscape of the city.
The house's functional robustness emerges from the fabric of the resident's life and everyday routines, reminiscent of community-driven living in polls. Its existence resonates amicably with the scale of the neighbourhood as a small urban insert, unapologetically and in striking contradiction with its surroundings.
Upon entering the home, one is welcomed into a clear open space, bathed in the warm embrace of the sun. The skylights and deeply recessed windows on each side allow for a connection to the street without compromising the privacy of the room. The living, washroom, and cooking spaces on the ground floor are arranged in a linear spread, one after the other. The absence of a defining physical barrier or threshold enhances the character of versatility to a single space that can accommodate multiple functions.
The furniture, particularly the sitting units, frame the living space against the backdrop of an artistic staircase - each step an independent piece of metal finished in wood. Intricate details in elements like the staircase, spouts, grills, doors, and even the furniture, juxtapose and balance the solidity of exposed concrete.
Upstairs, a single bedroom space and bathroom cover the entire floor, overlooking the expansive and lively living space below. The absence of opaque boundaries allows the furniture to convey the extent of the transition space, leading to a small bridge serving as a reading nook, with a bookcase and a reading ledge, showered on with light by the open skylight.
The play of light and shadow frames each part of this home, enhancing its old-world charm of pol houses, presented with a new outlook to represent the time it was built in and the aspirations of the people who reside in it. The Clever House is a testament to the fact that a modest house can be cleverly designed to achieve comfort in compact spaces, while preserving the essence of community living and interaction with the street that is the binding thread of the 'Pol' neighbourhood's urban fabric.
























