Unveiling the Luxury Beach House Design of House VF in Zapallar, Chile
Explore the architectural elegance of House VF in Zapallar, showcasing luxury beach house design by Román y Basualto Arquitectos.
Nestled in the serene coastal town of Zapallar, Chile, House VF stands as a testament to modern luxury beach house design. Designed by the renowned Román y Basualto Arquitectos, this 550 square meter residence beautifully integrates architectural innovation with breathtaking natural landscapes. Completed in 2019, the house offers a unique living experience, crafted from observations of the rhythmic waves of the nearby beach.



Architectural Concept and Design
The Inspirational Wave Sequence
The design of House VF is deeply inspired by the sequence of waves along the beach, each contributing to the rhythm and approach toward the shore. This natural spectacle led to the creation of two distinct volumes on a horizontal plinth, which elevate the house above the sea horizon, mimicking the powerful force of the eastern sea.




Volumetric Conception
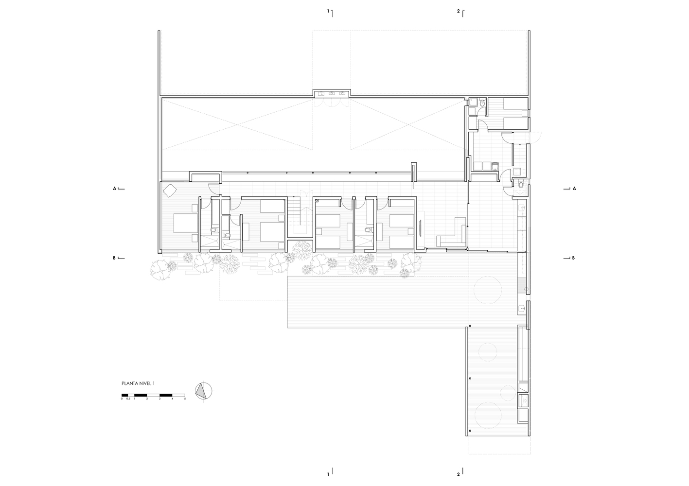
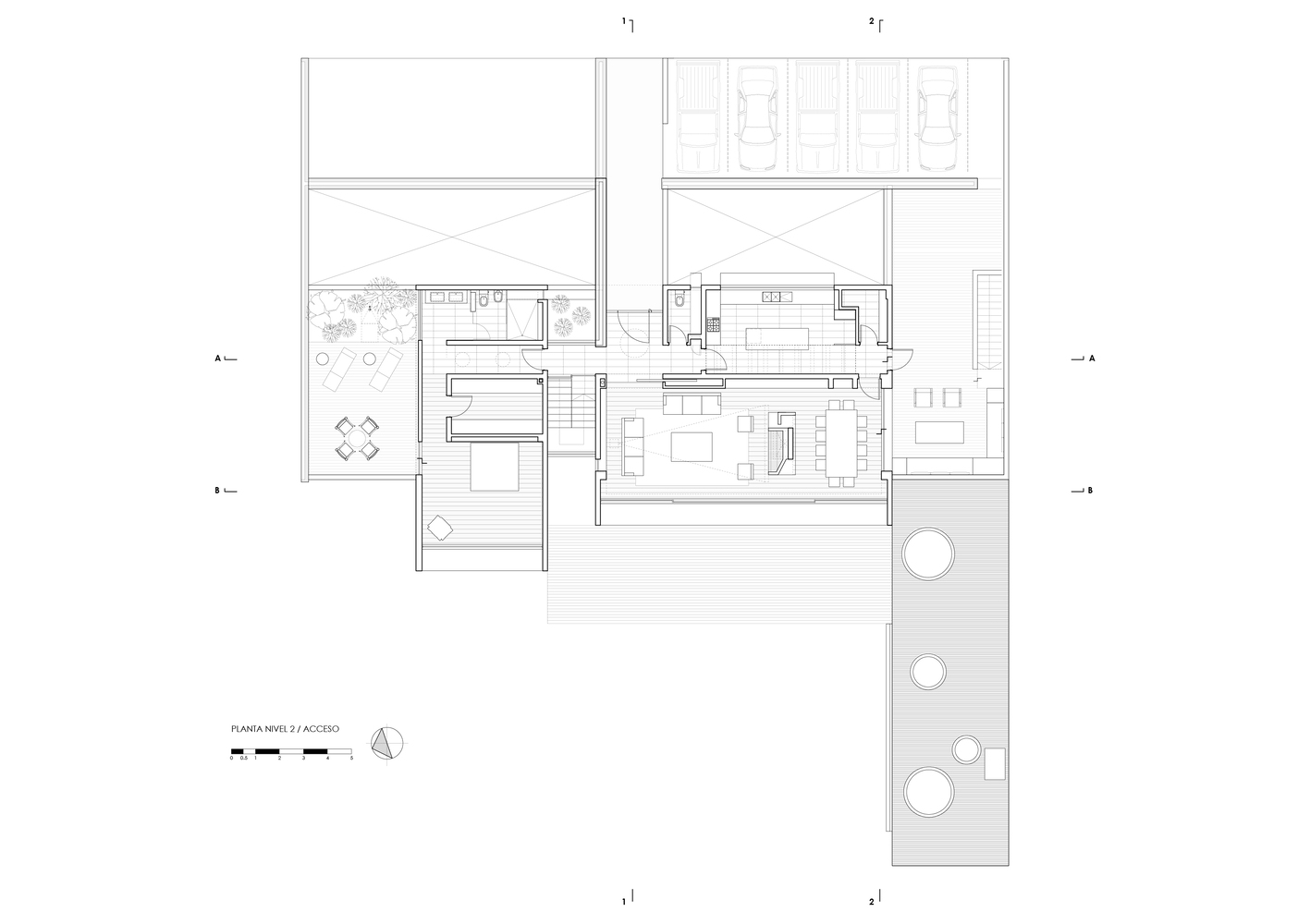
The architectural layout of House VF is an elegant solution to the dual requirements of privacy and expansiveness. The first volume serves as the primary living area when the owners are alone, encapsulating a master bedroom, home office, living and dining areas, kitchen, and a panoramic terrace. This section is entirely self-sufficient, emphasizing the versatility of luxury beach house designs.





Family and Recreation Spaces
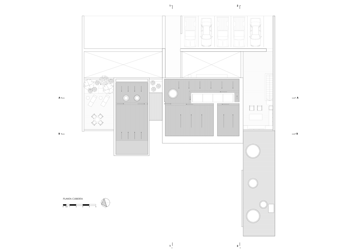
On the plinth level, House VF accommodates four children's bedrooms, including two en suites and two standard rooms with a shared bathroom. This level also hosts a large family room that integrates with an English patio to the east, affectionately known as the grandchildren's patio. The recreational areas, including a barbecue area, terraces, swimming pool, and a mini sports court, are strategically positioned to the west, all facing the sea and seamlessly blending with the garden.



Materiality and Aesthetic Choices
In keeping with the beach house ethos, House VF employs a palette of neutral grays from concrete and warm tones from reused pine wood, which was originally used for concrete moldings. This choice not only underscores the house's aesthetic alignment with its coastal environment but also showcases a commitment to sustainable building practices. The main materials include exposed reinforced concrete, pumpkin stone, and repurposed pine wood, treated with various inks and paints to achieve a rustic yet sophisticated finish.







A Benchmark in Luxury Beach House Design
House VF by Román y Basualto Arquitectos is more than just a residence; it's a landmark project that redefines luxury beach house design. With its thoughtful integration of form, function, and sustainability, it stands as a beacon of architectural excellence in Zapallar. Whether viewed from the perspective of an architectural aficionado or a potential homeowner, House VF embodies the pinnacle of modern living by the sea.





Popular Articles
Popular articles from the community
Alton Cliff House: A Harmonious Retreat by f2a Architecture in Lake Country, Canada
Alton Cliff House blends corten steel, prefabrication, and sustainable design, creating a luxurious, energy-efficient retreat perched on Canadian cliffs.
Fifth NRE Jazz Club – De Bever Architecten: Eindhoven’s Revitalized Cultural Hub
Historic gas factory transformed into Fifth NRE Jazz Club blending modern sustainability, jazz culture, dining, and heritage architecture seamlessly.
Free Architecture Competitions You Can Enter Right Now
No entry fees, real prizes. Here are the best free architecture competitions open for submissions in 2026.
Solar Steam: A Climate-Responsive Architecture That Redefines the Monument
A climate-responsive memorial architecture that transforms heat, decay, and time into a living system reflecting humanity’s ecological impact.
Similar Reads
You might also enjoy these articles
The Ken Roberts Memorial Delineation Competition (Krob)
As the most senior architectural drawing competition currently in operation anywhere in the world, it draws hundreds of entries each year, awarding the very best submissions in a series of medium-based categories.
Waterfront Redevelopment and Urban Revitalization in Mumbai: Forging a New Dawn for Darukhana
A transformative waterfront redevelopment project reimagining Darukhana’s shipbreaking heritage into an inclusive urban future.
OUT-OF-MAP: A Call for Postcards on Feminist Narratives of Public Space
Rhizoma Design and Research Lab invites artists, designers, architects, researchers, and students to reflect on how feminist perspectives can reshape public space. Selected works will be exhibited in Barcelona, October 2026. Submissions open until 15 April 2026.
Documentation Work on Buddhist Wooden Temple
Architectural syncretism and cultural hybridity: A comparative study of the Buddhist temples in Chattogram Hill tracks
Explore Architecture Competitions
Discover active competitions in this discipline
The International Standard for Design Portfolios
The Global Benchmark for Architecture Dissertation Awards
The Global Benchmark for Graduation Excellence
Challenge to reimagine the Iron Throne
Comments (0)
Please login or sign up to add comments
No comments yet. Be the first to comment!