Urban Renewal Community Center Design: A Model for Modern Living
This article explores the transformation of an old factory into a vibrant community center, showcasing innovative urban renewal and design.
The urban renewal community center design of the East Nanjing Road Sub-district Community Comprehensive Life Service Center in Shanghai stands as a beacon of innovation and sustainability. Spearheaded by TJAD Original Design Studio, this project exemplifies how adaptive reuse can breathe new life into old structures, transforming them into vibrant community hubs that cater to the needs of modern urban dwellers.




The Genesis of Transformation
Background and Vision
Originally constructed in 1989 as the Shanghai Wireless Radio Instrument Factory, the building underwent a radical transformation. The renovation project spearheaded by TJAD Original Design Studio morphed this erstwhile industrial structure into the Nanjing East Road Street Community Service Center, a nucleus for community life and activities.




Architectural Approach and Innovation
The project architects approached the renovation with a deep respect for the building's original character while introducing innovative design elements that align with contemporary needs. The incorporation of green spaces, community facilities, and open areas reflects a forward-thinking approach to urban design.




Core Components of the Renovation
Inward-Growing Landscape
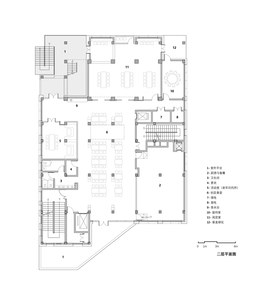
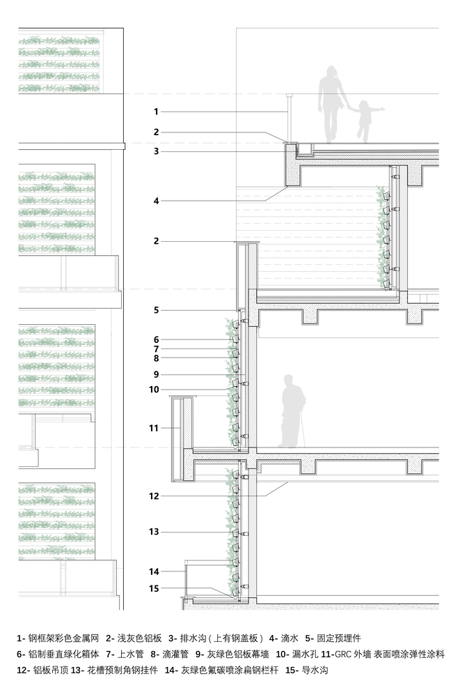
The design concept of an inward-growing landscape integrates the building with its surrounding environment. The introduction of the "Suzhou Green Funnel," a landscape staircase, not only enhances the building's ecological essence but also connects the community with the tranquil beauty of the Suzhou River.




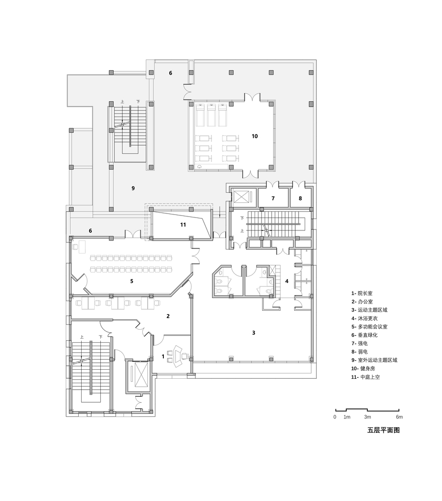
Composite Functionality
The architectural strategy cleverly stacks various functions vertically within the limited space. From community service stations and cafes to senior care facilities and a rooftop urban terrace, the building is a microcosm of community life, offering something for everyone.




Shared Community Spaces
The design fosters community interaction and supports a harmonious atmosphere. With open corners, semi-outdoor platforms, and public activity zones, the building serves as a vertical community hub, encouraging residents of all ages to come together.




The Rooftop Terrace: A Community Crown Jewel
The rooftop terrace of the East Nanjing Road Sub-district Community Comprehensive Life Service Center is a testament to the project's success. Offering panoramic views of the Suzhou River, it features leisure and fitness areas, creating a public space of unmatched beauty and utility.


A Blueprint for the Future
The urban renewal community center design of the East Nanjing Road Sub-district Community Comprehensive Life Service Center by TJAD Original Design Studio is not just a successful architectural project; it's a blueprint for future urban renewal projects. It showcases how thoughtful design can transform outdated structures into vibrant community centers that cater to the evolving needs of urban populations.

All photographs are work of Original Design Studio, ZY Architectural Photography
Popular Articles
Popular articles from the community
Treehouse Apartment: A Warm Timber Interior Blending Craft, Play, and Contemporary Living
Warm timber apartment with integrated treehouse, combining natural materials, craftsmanship, and playful design to create a flexible, family-oriented living environment.
On the Brooks House by Monsoon Collective – A Contemporary Kerala Home Rooted in Tradition
Kerala home blending tradition and modernity with water-inspired design, brick architecture, courtyard planning, and sustainable rainwater harvesting strategies.
The Ken Roberts Memorial Delineation Competition (Krob)
As the most senior architectural drawing competition currently in operation anywhere in the world, it draws hundreds of entries each year, awarding the very best submissions in a series of medium-based categories.
Louis Malle Cinema: A Limestone Cultural Landmark Revitalizing Community Life in Prayssac
Limestone cinema extension with public forecourt, blending heritage and modern design to create flexible cultural spaces and strengthen community interaction.
Similar Reads
You might also enjoy these articles
The Ken Roberts Memorial Delineation Competition (Krob)
As the most senior architectural drawing competition currently in operation anywhere in the world, it draws hundreds of entries each year, awarding the very best submissions in a series of medium-based categories.
Waterfront Redevelopment and Urban Revitalization in Mumbai: Forging a New Dawn for Darukhana
A transformative waterfront redevelopment project reimagining Darukhana’s shipbreaking heritage into an inclusive urban future.
OUT-OF-MAP: A Call for Postcards on Feminist Narratives of Public Space
Rhizoma Design and Research Lab invites artists, designers, architects, researchers, and students to reflect on how feminist perspectives can reshape public space. Selected works will be exhibited in Barcelona, October 2026. Submissions open until 15 April 2026.
Documentation Work on Buddhist Wooden Temple
Architectural syncretism and cultural hybridity: A comparative study of the Buddhist temples in Chattogram Hill tracks
Explore Architecture Competitions
Discover active competitions in this discipline
The International Standard for Design Portfolios
The Global Benchmark for Architecture Dissertation Awards
The Global Benchmark for Graduation Excellence
Challenge to reimagine the Iron Throne
Comments (0)
Please login or sign up to add comments
No comments yet. Be the first to comment!