19th Century Building Renovation in Strasbourg: A Modern Family Home by Nara Architects
A seamless blend of heritage and sustainability, this 19th-century Strasbourg renovation transforms a historic building into a modern family home.
Revitalizing Heritage with Modern Comforts
In the heart of Strasbourg, Nara Architects has meticulously transformed a late 19th-century Neustadt building into a 380 m² modern family home. This renovation celebrates the historical charm of the building while introducing sustainable materials, improved functionality, and contemporary aesthetics.




Preserving History: Restoring the Neustadt Facade
Facade Restoration
The street-facing facade, featuring Vosges sandstone and brickwork, has been cleaned and restored to its original appearance, preserving its historical integrity. This attention to detail highlights the architects' commitment to honoring the building's heritage.




Thermal Renovation
To enhance energy efficiency, the internal walls of the brick facades were renovated using hemp concrete spray. This eco-friendly approach maintains the thermal inertia of the original structure while providing modern insulation.




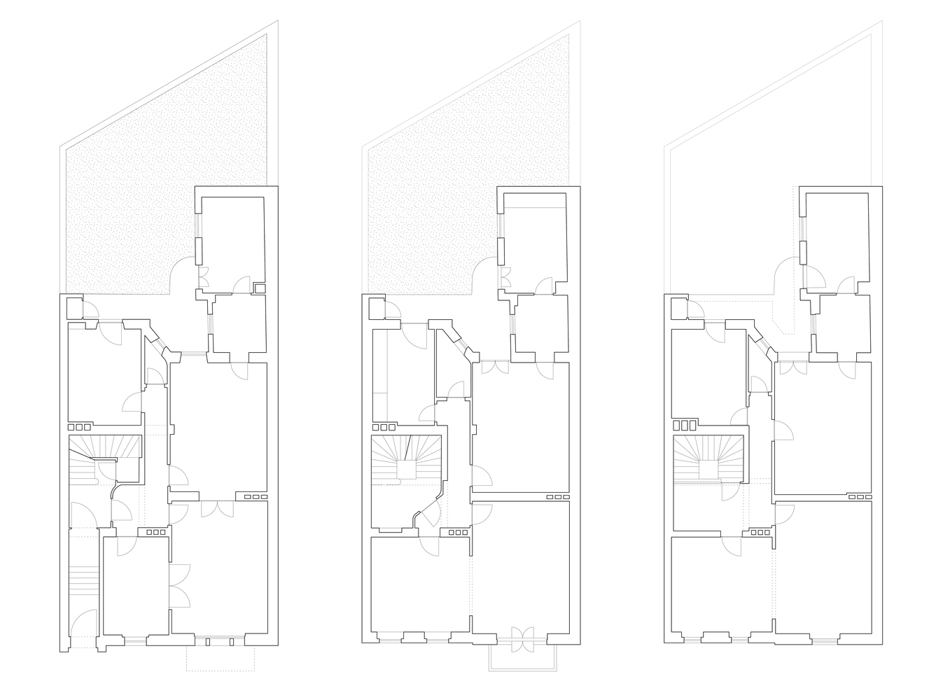
Redesigning the Interior: A Balance of Old and New
Respecting Original Features
The interior preserves the building’s historical elements, including:
- High ceilings with intricate moldings and plasterwork.
- Oak parquet flooring.
- Restored period frescoes.
These features celebrate the craftsmanship of the late 19th century while complementing modern design choices.



Reimagined Layout
The new interior design creates a seamless flow from the street to the garden. Each level has been reorganized to maximize functionality, providing spacious, open-plan living areas.


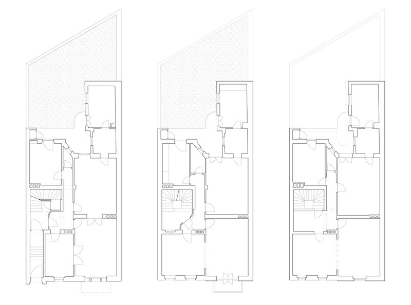
Innovative Modern Touches
Green Concrete Terraces
At the rear, outdated balconies were replaced with green concrete terraces tailored for each floor. These terraces overlook the garden, blending functionality with an eco-conscious design.


Light and Connectivity
The top floor features newly created light wells that flood circulation and wet areas with natural light. The existing staircase, enhanced with a glass roof and a full-height balustrade, allows sunlight to permeate the building’s core.

Creative Transitions
A standout feature is the pink felt-clad wall on the second floor, which provides a soft, tactile transition between living spaces, demonstrating a perfect blend of form and function.

Sustainability and Elegance Combined
Hemp Concrete for Thermal Efficiency
The use of hemp concrete exemplifies the project's dedication to sustainability, ensuring the historical building meets modern energy standards without compromising its character.

Eco-friendly Materials
From green concrete terraces to natural light integration, the design incorporates materials and techniques that reduce environmental impact while enhancing the home's livability.

A Harmonious Blend of Past and Present
Nara Architects’ renovation of the Neustadt building in Strasbourg exemplifies how heritage and sustainability can coexist. By preserving historical elements and integrating modern design innovations, this family home offers a blueprint for 19th-century building renovations.

All photographs are work of Simone Bossi
Popular Articles
Popular articles from the community
Residence BB 214: Quiet Precision in Ludhiana
Minimalist Architecture & Design Studio composes a residence of white volumes, filtered light, and deliberate restraint in Punjab's urban fabric.
Bood Design Bureau Splits a Gilan Residence in Two to Let the Forest In
Double Side House negotiates privacy and openness through interlocking concrete volumes and planted courtyards in northern Iran's humid Caspian lowlands.
MAKER architecten Rewire a 1972 Brutalist Dormitory on the VUB Campus as a Living Lab
A modular renovation strategy in Belgium breathes new life into Willy Van Der Meeren's modernist student housing without erasing its concrete bones.
Art 1 Office Strips Athens Back to Its Bones
Neiheiser Argyros transforms a 40-year-old Athens office building into a vivid, materially rich workplace anchored by red steel, exposed concrete, and roof
Similar Reads
You might also enjoy these articles
Filtering Space: A Gradual Spatial Experience
From urban intensity to spatial calm.
The Ken Roberts Memorial Delineation Competition (Krob)
As the most senior architectural drawing competition currently in operation anywhere in the world, it draws hundreds of entries each year, awarding the very best submissions in a series of medium-based categories.
Waterfront Redevelopment and Urban Revitalization in Mumbai: Forging a New Dawn for Darukhana
A transformative waterfront redevelopment project reimagining Darukhana’s shipbreaking heritage into an inclusive urban future.
OUT-OF-MAP: A Call for Postcards on Feminist Narratives of Public Space
Rhizoma Design and Research Lab invites artists, designers, architects, researchers, and students to reflect on how feminist perspectives can reshape public space. Selected works will be exhibited in Barcelona, October 2026. Submissions open until 15 April 2026.
Explore Architecture Competitions
Discover active competitions in this discipline
The International Standard for Design Portfolios
The Global Benchmark for Architecture Dissertation Awards
The Global Benchmark for Graduation Excellence
Challenge to reimagine the Iron Throne
Comments (0)
Please login or sign up to add comments
No comments yet. Be the first to comment!