A Flexible and Innovative Space Design for the Future
The article discusses the innovative design of the Taihu Cloud Valley Digital Industrial Park, focusing on flexibility and modernity in space planning.
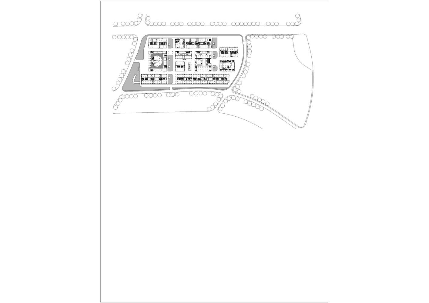
The “Taihu Cloud Valley” Digital Industrial Park in Suzhou, China, designed by 9-Town Design Studio, is an innovative project that addresses the evolving needs of digital industries. With a total construction area of 490,000 square meters, the park is designed to be flexible, adaptable, and ready to accommodate the future of digital enterprises. This article explores how the park’s design combines modern architecture with practical functionality to foster growth in the digital economy.





Adaptable Design for Uncertain Future Needs
The design of the Taihu Cloud Valley Digital Industrial Park is built around the principle of uncertainty. Unlike traditional industrial parks, where specific uses are defined, the park offers flexible spaces that can evolve with the shifting needs of its tenants. The layout does not tie specific functions to certain spaces; instead, it creates versatile environments that can accommodate changes in size, scale, and function. This approach allows for businesses to grow or downsize as necessary, making the park ideal for both large enterprises and startups.








Architectural Features for Versatility and Efficiency
The digital park features a unique architectural layout with 10 buildings, including five high-rise and five multi-story buildings. The high-rise buildings are dedicated to research and development offices, while the multi-story buildings house a mix of R&D offices and public facilities. To meet the diverse requirements of tenants, the first-floor height is designed to be 5.9 meters, allowing for flexibility in accommodating businesses with special space needs. The buildings are structured with a standardized column grid system to allow for easy partitioning and reconfiguration.







A Diffuse Public Space for Collaboration and Innovation
The park’s public spaces are integral to its design. They are intentionally diffuse, offering multiple levels of shared spaces that foster collaboration and interaction. The ground level features an expansive shared area, the second level connects to outdoor spaces, and the roof provides additional open space. These flexible and open spaces create opportunities for interaction between tenants and encourage spontaneous collaboration. In the age of digital connectivity, such spaces are becoming increasingly important for fostering innovation.








Focus on Sustainable and Youth-Centric Design
In line with the park’s modern approach to digital business, the design focuses on creating a sustainable and youthful environment. The park is intended for R&D professionals, often characterized by their youth and high education, who benefit from a dynamic and engaging workspace. Additionally, the design incorporates environmentally conscious elements and efficient use of resources to create a sustainable ecosystem.










All Photographs are work of Li Yao
Popular Articles
Popular articles from the community
Inverted Architecture Installation by Studio Link-Arc: Exploring the Intersection of Architecture and Living Organisms
Inverted Architecture Installation by Studio Link-Arc blends mycelium, sustainability, inverted design, ecological cycles, and urban adaptive architecture in Shenzhen.
Atelier Macri Concept Store Interior Design by CASE-REAL
Atelier Macri store features a "ko" counter, walnut wood details, cork displays, blending retail, gallery, and seamless customer experiences.
Solar Steam: A Climate-Responsive Architecture That Redefines the Monument
A climate-responsive memorial architecture that transforms heat, decay, and time into a living system reflecting humanity’s ecological impact.
Gads Hill Early Learning Center by JGMA: Adaptive Reuse Shaping Community-Focused Educational Architecture
Adaptive reuse transforms fragmented structure into vibrant early learning center with playful façade, natural light, and community-focused sustainable design.
Similar Reads
You might also enjoy these articles
The Ken Roberts Memorial Delineation Competition (Krob)
As the most senior architectural drawing competition currently in operation anywhere in the world, it draws hundreds of entries each year, awarding the very best submissions in a series of medium-based categories.
Waterfront Redevelopment and Urban Revitalization in Mumbai: Forging a New Dawn for Darukhana
A transformative waterfront redevelopment project reimagining Darukhana’s shipbreaking heritage into an inclusive urban future.
OUT-OF-MAP: A Call for Postcards on Feminist Narratives of Public Space
Rhizoma Design and Research Lab invites artists, designers, architects, researchers, and students to reflect on how feminist perspectives can reshape public space. Selected works will be exhibited in Barcelona, October 2026. Submissions open until 15 April 2026.
Documentation Work on Buddhist Wooden Temple
Architectural syncretism and cultural hybridity: A comparative study of the Buddhist temples in Chattogram Hill tracks
Explore Architecture Competitions
Discover active competitions in this discipline
The International Standard for Design Portfolios
The Global Benchmark for Architecture Dissertation Awards
The Global Benchmark for Graduation Excellence
Challenge to reimagine the Iron Throne
Comments (0)
Please login or sign up to add comments
No comments yet. Be the first to comment!