Adaptive Reuse of Department Stores: Kalle Neukölln by Max Dudler Transforms Berlin Landmark
This project explores the adaptive reuse of a Berlin department store into a vibrant hub for culture, work, and urban renewal.
Rethinking Retail Architecture for a Sustainable Urban Future
In the heart of Berlin’s Neukölln district, the once-forgotten Quelle department store has been radically transformed through the adaptive reuse of department stores. Designed by architect Max Dudler and developed by MREI, the project breathes new life into a brutalist megastructure from the 1970s, creating a vibrant urban center for culture, work, and community engagement. Now known as Kalle Neukölln, this architectural transformation demonstrates a visionary approach to urban regeneration and climate-conscious design.


Preserving Embodied Energy Through Architectural Revitalization
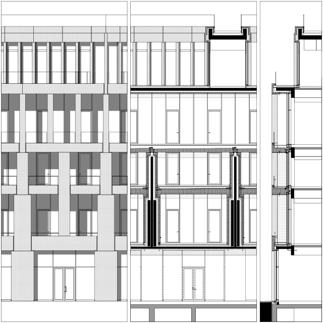
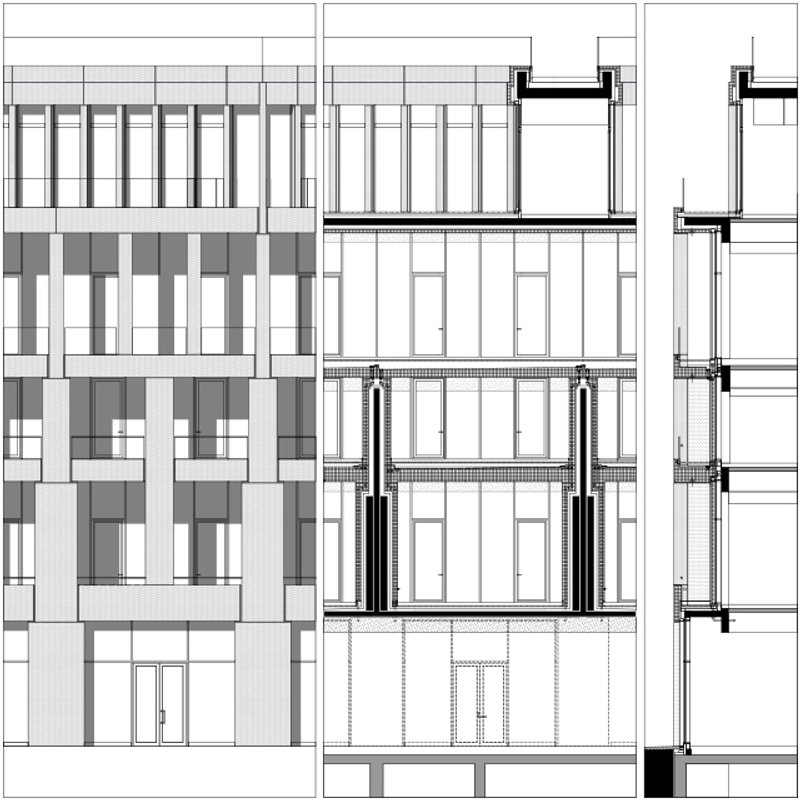
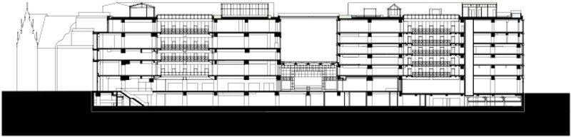
Rather than demolishing the massive concrete structure, the project adheres to the principle of “rethinking instead of demolishing.” This design philosophy prioritizes the retention of embodied energy and the monumental structure's original concrete frame. Spanning over 40,000 m², the reuse of the building significantly improves its carbon footprint compared to a new build, serving as a sustainable model for future urban projects. The original 24-meter concrete spans are preserved and showcased, emphasizing the building’s brutalist heritage while integrating new functions.


A Multifunctional Urban Hub for Berlin's Creative Community
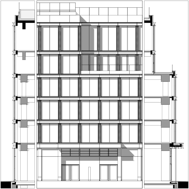
The revitalized complex comprises 26,000 m² of office space, 4,000 m² of retail, a 6,000 m² indoor market hall, and 4,000 m² of rooftop gardens. This layered program integrates workspace, commerce, leisure, and cultural programming to attract diverse users and invigorate the surrounding urban fabric. From basement to rooftop, every level of the building is activated, reimagining the site as a vertical urban village. The Kalle Neukölln complex is now home to institutions like CODE University, SoundCloud, and startup accelerators like Delta, reflecting the area’s thriving creative ecosystem.


Architectural Dialogue Through Contrasting Facades
Max Dudler’s redesign distinguishes between two primary volumes: the Karl-Marx-Straße side features a refined, bright stone loggia, while the former parking garage along Ganghofer Straße is clad in bronze-colored metal panels. The intervention is both respectful and expressive, integrating the building into its urban surroundings while marking its renewal. A former spiral ramp has been converted into a new “Winter Garden,” a public event space linking the two wings and serving as a venue for local festivals and exhibitions.


Rethinking the Future of Urban Retail Spaces
Kalle Neukölln stands as a compelling example of how outdated retail infrastructure can be reimagined to meet the demands of contemporary urban life. As department stores around the world lose their relevance, the Berlin model proposes a scalable and inclusive solution. The project not only preserves architectural value and environmental resources but also reintroduces a sense of place through public engagement and multipurpose design.


Collaboration and Cultural Integration
Successful adaptive reuse projects require more than architectural vision—they demand social and political collaboration. Realace initiated the concept, and Max Dudler refined it with input from local stakeholders. The transformation included careful planning around usage types, mobility strategies, and neighborhood integration. The active participation of community groups and temporary programming, like the “48h Neukölln” art festival, has cemented the site as a dynamic node of cultural activity and urban interaction.


A New Urban Identity for Karl-Marx-Straße
Kalle Neukölln redefines Karl-Marx-Straße as a lively urban boulevard. By merging cultural spaces with entrepreneurial hubs, the project generates a new rhythm for daily life in the neighborhood. It speaks to the potential of architecture not only to reuse buildings, but also to rejuvenate entire districts. Through thoughtful adaptive reuse, Max Dudler’s intervention brings forth a new typology for city centers—one rooted in history, flexibility, and sustainability.


All photographs are works of Stefan Mueller
Popular Articles
Popular articles from the community
Inverted Architecture Installation by Studio Link-Arc: Exploring the Intersection of Architecture and Living Organisms
Inverted Architecture Installation by Studio Link-Arc blends mycelium, sustainability, inverted design, ecological cycles, and urban adaptive architecture in Shenzhen.
An Miên Lumière Cafe by xưởng xép, Ho Chi Minh City, Vietnam
An industrial-inspired café where layered steel and warm light create a dynamic, immersive environment shaped by reflection, depth, and perception.
Louis Malle Cinema: A Limestone Cultural Landmark Revitalizing Community Life in Prayssac
Limestone cinema extension with public forecourt, blending heritage and modern design to create flexible cultural spaces and strengthen community interaction.
The Ken Roberts Memorial Delineation Competition (Krob)
As the most senior architectural drawing competition currently in operation anywhere in the world, it draws hundreds of entries each year, awarding the very best submissions in a series of medium-based categories.
Similar Reads
You might also enjoy these articles
Top 15 Architecture Competitions to Enter in 2026
From student-friendly idea competitions to prestigious international awards, here are the best architecture competitions open for entries in 2026. Updated regularly.
DIY & Engineering in Computational Design : Enter the BeeGraphy Design Awards
Showcase Your Creativity with Computational Design and Open Source Projects

Innovative Design Solutions: Award-Winning Projects from Recent Architecture Competitions
Exploring award-winning architectural projects shaping the future of design, sustainability, and community.
Explore Architecture Competitions
Discover active competitions in this discipline
The International Standard for Design Portfolios
The Global Benchmark for Architecture Dissertation Awards
The Global Benchmark for Graduation Excellence
Challenge to reimagine the Iron Throne
Comments (0)
Please login or sign up to add comments
No comments yet. Be the first to comment!