Adaptive Reuse Office Architecture: Astroscale US Headquarters by Neoera
A historic train depot becomes Astroscale's futuristic HQ through adaptive reuse office architecture blending heritage, innovation, and cultural identity.
A Space Industry Pioneer in a Historic Structure
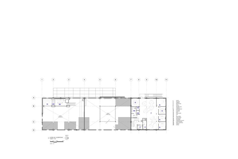
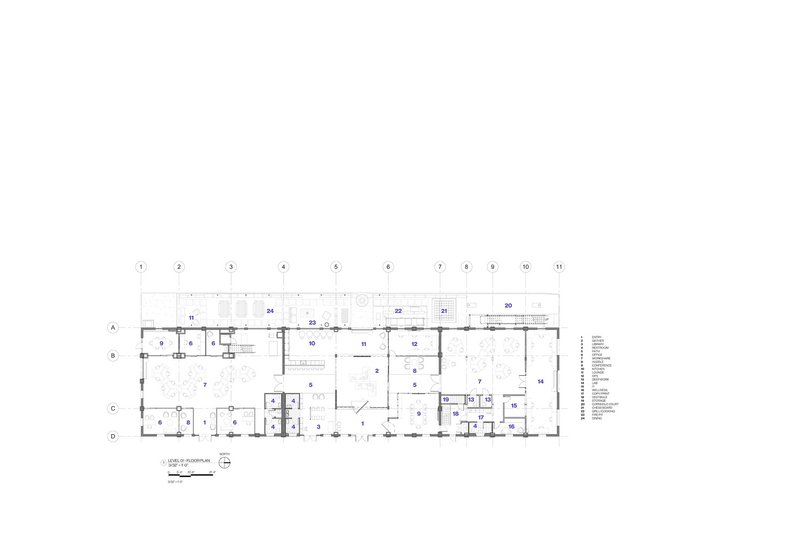
Astroscale’s new U.S. headquarters in Denver is a stellar example of adaptive reuse office architecture that redefines workplace design in the space industry. Designed by Neoera, a women-led architecture firm based in Denver, the project transforms a 1910 industrial train depot into a vibrant, collaborative, and thematically rich environment for a company focused on space sustainability.


The 13,500-square-foot space merges innovation with history, offering a workplace that simultaneously respects its architectural heritage and embodies the futuristic vision of Astroscale. Located in Denver’s South Broadway district, the design maintains the original heavy timber and masonry of the historic depot while integrating modern spatial strategies and materials that speak to the company’s mission and cultural roots.


Merging Japanese Culture with Space Innovation
Neoera’s design draws clear inspiration from Astroscale’s Japanese origins. Pivoting and sliding Shoji screens made from translucent blue polycarbonate create flexible communal and presentation spaces while evoking traditional Japanese design principles. These screens serve as spatial dividers that allow for adaptable environments, reflecting both cultural sensitivity and functionality.


The office layout also takes cues from satellite structures. The central bay serves as a metaphorical control hub, echoing the operational core of a satellite. It houses vital community functions including a kitchen, library, Mission Operations room, and boardroom. The north and south wings—designed as the “solar panels” of the layout—provide workspace infused with thematic identity and character.


Thematic Zones and Community-Driven Design
Astroscale’s headquarters is more than a workplace—it is a cultural and experiential environment. Each section is tailored to enrich employee engagement and inspire creativity. In the north and south bays, private and open offices are enhanced with science fiction themes: a Star Trek-inspired cocktail bar and a Star Wars-themed lounge offer playful and immersive zones for relaxation and informal collaboration. These are centered around a sunken dining area that anchors communal interaction.


In the central bay, openness and light define the heart of the space. This area is designed to foster a sense of community through shared experiences—whether it’s over coffee, reading in the open library, or watching satellite data in real-time in the Mission Operations room.


Workspace Innovation and Interior Character
The office embraces innovation not only in form but in function. Custom-designed boomerang-shaped desks support various configurations and collaboration modes, making the layout flexible to both teams and individuals. The interior palette reflects a joyful departure from the sterile aesthetics of typical aerospace offices. Colorful furniture, ambient lighting, and natural materials inject warmth and vibrancy into the work environment.


By offering an imaginative alternative to conventional office planning, the space promotes creativity and well-being. Employees are not just accommodated—they are inspired and energized by the design.


Sustainability and Adaptive Reuse as Core Values
The headquarters stands as a beacon of adaptive reuse office architecture, showing how an old structure can be reimagined for a high-tech, future-oriented company. The reuse of the 1910 industrial depot not only preserves cultural and architectural heritage but also aligns with Astroscale’s mission of sustainability. The integrity of the original structure remains intact, with timber beams and masonry walls providing a tactile connection to the past.


Neoera’s approach illustrates how design can reflect a company’s identity while also contributing to broader environmental goals. The building does not just house innovation; it physically represents it through sustainable practices and thoughtful reuse.

A Workplace That Embodies Vision
Astroscale’s Denver headquarters is more than an office—it is a cultural landmark and an architectural narrative of progress. Through its adaptive reuse, inventive layout, and strong thematic coherence, the building exemplifies how architecture can embody an organization’s ethos.

The headquarters isn’t merely a place of business; it’s a curated environment where innovation, history, and community converge. Neoera has crafted a space that honors legacy while projecting Astroscale’s vision of the future—where sustainability, space technology, and people co-exist harmoniously.
All Photographs are works of Justin Martin
Popular Articles
Popular articles from the community
Fifth NRE Jazz Club – De Bever Architecten: Eindhoven’s Revitalized Cultural Hub
Historic gas factory transformed into Fifth NRE Jazz Club blending modern sustainability, jazz culture, dining, and heritage architecture seamlessly.
Split House: A Compact Urban Home Blending Privacy, Light, and Flexible Living in Japan
Compact Japanese home featuring DOMA space, flexible café potential, passive lighting, privacy zoning, and sustainable urban living design.
Alton Cliff House: A Harmonious Retreat by f2a Architecture in Lake Country, Canada
Alton Cliff House blends corten steel, prefabrication, and sustainable design, creating a luxurious, energy-efficient retreat perched on Canadian cliffs.
Similar Reads
You might also enjoy these articles
Free Architecture Competitions You Can Enter Right Now
No entry fees, real prizes. Here are the best free architecture competitions open for submissions in 2026.
Top 15 Architecture Competitions to Enter in 2026
From student-friendly idea competitions to prestigious international awards, here are the best architecture competitions open for entries in 2026. Updated regularly.
DIY & Engineering in Computational Design : Enter the BeeGraphy Design Awards
Showcase Your Creativity with Computational Design and Open Source Projects

Innovative Design Solutions: Award-Winning Projects from Recent Architecture Competitions
Exploring award-winning architectural projects shaping the future of design, sustainability, and community.
Explore Architecture Competitions
Discover active competitions in this discipline
The International Standard for Design Portfolios
The Global Benchmark for Architecture Dissertation Awards
The Global Benchmark for Graduation Excellence
Challenge to reimagine the Iron Throne
Comments (0)
Please login or sign up to add comments
No comments yet. Be the first to comment!