Adaptive Sustainable Home Design in Belgium: DeDe House by OYO Architects
DeDe House showcases adaptive sustainable home design, merging historical charm, modern functionality, and environmental mindfulness in Belgium.
The DeDe House Vision
DeDe House, designed by OYO Architects, is a striking example of adaptive sustainable home design located in Drongen, Belgium. With a footprint of 369 m², this residence merges innovative architecture with sustainable practices, respecting the historical charm of its site while catering to the evolving needs of its occupants.




Historical Context and Sustainable Design
The site of DeDe House was previously occupied by an early 20th-century derelict barn. Instead of starting anew, OYO Architects embraced sustainability by salvaging materials from the original structure.






Recycling Materials
- Bricks from the barn were reused to craft a visually authentic ground floor.
- The upper level introduces modern materials while retaining a sense of connection to the site's history. This creative approach embodies the philosophy of preserving the "spirit" of a place through sustainable architectural practices.





Architectural Design: A Blend of Form and Function
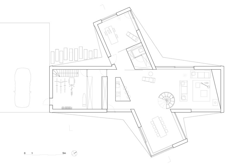
The architectural layout of DeDe House combines aesthetic appeal with practicality. The design overlays the original barn’s rectangular footprint with a modern "X" shape for the ground floor.




The X-Shape Concept
- Private spaces: The X-shaped layout ensures secluded corners within and around the house.
- Framed views: Large windows and sliding doors frame the surrounding landscape, creating seamless indoor-outdoor transitions. This thoughtful design balances privacy with openness, enhancing the living experience for its residents.




Adaptive Design for Modern Living
DeDe House is tailored to meet the dynamic needs of a family of five, emphasizing inclusivity and functionality.



Ground Floor: Living in Nature
The ground floor features:
- Panoramic garden views through expansive windows.
- Open-plan living areas that foster family interaction while maintaining a strong connection to nature.


Upper Floor: A Versatile Playground
The upper floor is a haven of adaptability:
- Children’s space: A creative playground where the children can personalize and transform their environment.
- Parents' retreat: A private bedroom offering serene views of the outdoors, separated from the family area for privacy.
This adaptive design approach reflects a deep understanding of how residents engage with their spaces.


Material Integrity and Design Details
DeDe House is defined by its use of honest materials, blending industrial aesthetics with artisanal charm.
Key Material Choices
- Wood and exposed concrete: These materials create a harmonious contrast, balancing austerity with warmth.
- Minimal cladding: The absence of unnecessary adornments highlights the authenticity of the design.
By celebrating the raw beauty of materials, OYO Architects craft a home that feels both modern and timeless.


A Home for the Future
DeDe House stands as a testament to OYO Architects’ commitment to adaptive and sustainable architecture. Its ability to blend historical respect, functional flexibility, and environmental mindfulness makes it a model for future residential design.

DeDe House by OYO Architects is a perfect marriage of past and present, sustainability and adaptability. Located in Drongen, Belgium, this home is more than a residence—it’s an evolving sanctuary that redefines the boundaries of modern architecture.

All photographs are work of Tim Van de Velde, Karen Van der Biest, OYO architects
Popular Articles
Popular articles from the community
Rede Arquitetos Builds an Open-Air School in Fortaleza That Doubles as a Neighborhood Living Room
Educar II SESC-CE folds sports, dance, and community gathering into a courtyard campus wrapped in mesh and tropical color.
Split House: A Compact Urban Home Blending Privacy, Light, and Flexible Living in Japan
Compact Japanese home featuring DOMA space, flexible café potential, passive lighting, privacy zoning, and sustainable urban living design.
Filtering Space: A Gradual Spatial Experience
From urban intensity to spatial calm.
TGK Nirasaki Plant: A Smart Factory Blending Technology, Landscape, and Wellness
Smart factory in Japan blending IoT manufacturing, scenic trail design, natural ventilation, and landscape integration to enhance user experience and sustainability.
Similar Reads
You might also enjoy these articles
Filtering Space: A Gradual Spatial Experience
From urban intensity to spatial calm.
The Ken Roberts Memorial Delineation Competition (Krob)
As the most senior architectural drawing competition currently in operation anywhere in the world, it draws hundreds of entries each year, awarding the very best submissions in a series of medium-based categories.
Waterfront Redevelopment and Urban Revitalization in Mumbai: Forging a New Dawn for Darukhana
A transformative waterfront redevelopment project reimagining Darukhana’s shipbreaking heritage into an inclusive urban future.
OUT-OF-MAP: A Call for Postcards on Feminist Narratives of Public Space
Rhizoma Design and Research Lab invites artists, designers, architects, researchers, and students to reflect on how feminist perspectives can reshape public space. Selected works will be exhibited in Barcelona, October 2026. Submissions open until 15 April 2026.
Explore Architecture Competitions
Discover active competitions in this discipline
The International Standard for Design Portfolios
The Global Benchmark for Architecture Dissertation Awards
The Global Benchmark for Graduation Excellence
Challenge to reimagine the Iron Throne
Comments (0)
Please login or sign up to add comments
No comments yet. Be the first to comment!