Aesop Palisades Village by Odami: A Biophilic Sanctuary in the Heart of Los Angeles
Aesop Palisades Village blends biophilic design, textured materials, and natural light to create a serene, nature-inspired retail sanctuary.
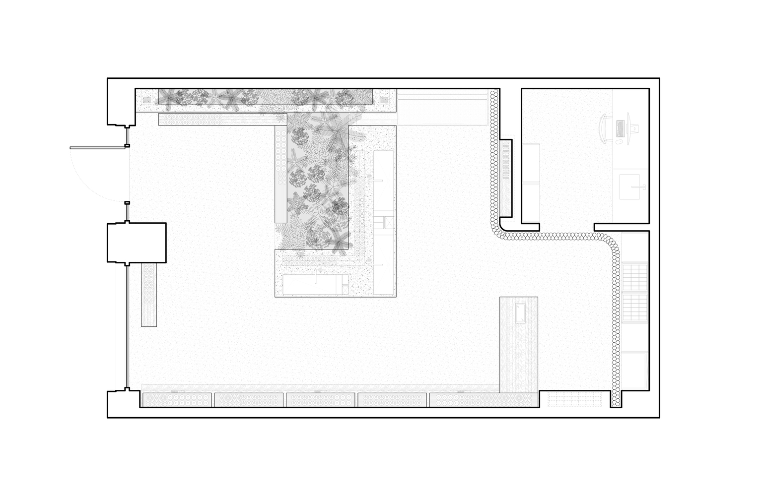
Nestled in the scenic Pacific Palisades neighborhood of Los Angeles, the Aesop Palisades Village store by Toronto-based studio Odami reimagines retail as a sanctuary—where architectural clarity, material tactility, and nature converge. Completed in 2022, the boutique blends immersive interior design with regional influences, drawing direct inspiration from the area's vernacular architecture and iconic hillside homes, notably referencing architect Ray Kappe’s famed residence.


Contextual Inspiration and Natural Integration
Set within a lush coastal landscape of ridges and valleys, the design concept embraces the topographical richness of the Pacific Palisades. This environmentally sensitive approach is not merely aesthetic—it is deeply spatial and experiential. Odami’s design is grounded in biophilic design principles, reinforcing Aesop’s philosophy of ritual, calm, and connection to nature.
The material palette is rich and textured, evoking a sense of tranquility. Microcement finishes span the walls, ceiling, and floor, creating a seamless, earthen interior. A soft velvet curtain flows across the rear of the space, concealing storage areas while simultaneously introducing softness, shimmer, and a dynamic play of light and shadow that enhances spatial depth.


Material Harmony and Minimal Intervention
The display and storage units are articulated as horizontal planes, crafted from reclaimed wood and stainless steel—a balanced interplay between natural warmth and industrial precision. These surfaces subtly hover within the space, echoing the terrain’s undulating horizontality and maintaining a sense of openness and fluidity.
A defining element of the design is the introduction of a skylight that channels daylight into a newly created interior garden—a quiet, living centerpiece that dissolves the boundaries between inside and outside. Around this green enclave, a continuous bench, consultation sink, and product display gently wrap the space, inviting moments of pause and reflection.


Elevating the Ritual of Self-Care
More than just a retail environment, Aesop Palisades Village functions as a sensorial retreat that celebrates the ritual of skincare through immersive, nature-infused architecture. The spatial narrative prioritizes light, materiality, and plant life to elevate the experience of self-care into a meditative daily act.
Designed in collaboration with WORD Design x Architecture (architect of record), RKM Consulting Engineers Inc., and Precise Contractor Inc., the project is a tactile and serene destination that reflects the brand's commitment to design excellence and ecological sensitivity.

All Photographs are works of Rafael Gamo