Alpha XXL Mediterranean Mixed-Use Architecture by Rémy MARCIANO Architecte
Explore the innovative Alpha XXL Mediterranean Mixed Block by Rémy MARCIANO, blending sustainable architecture and urban living.
Introduction to Alpha XXL Mediterranean Mixed Block
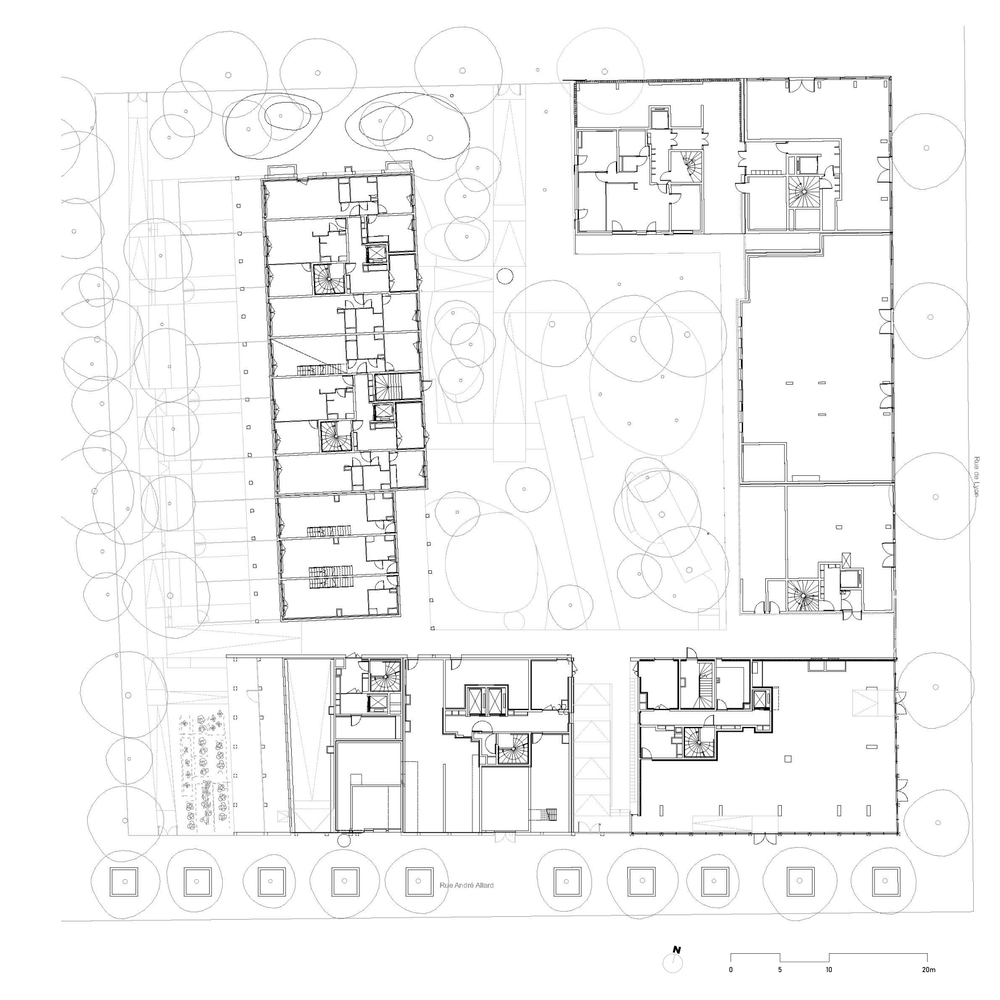
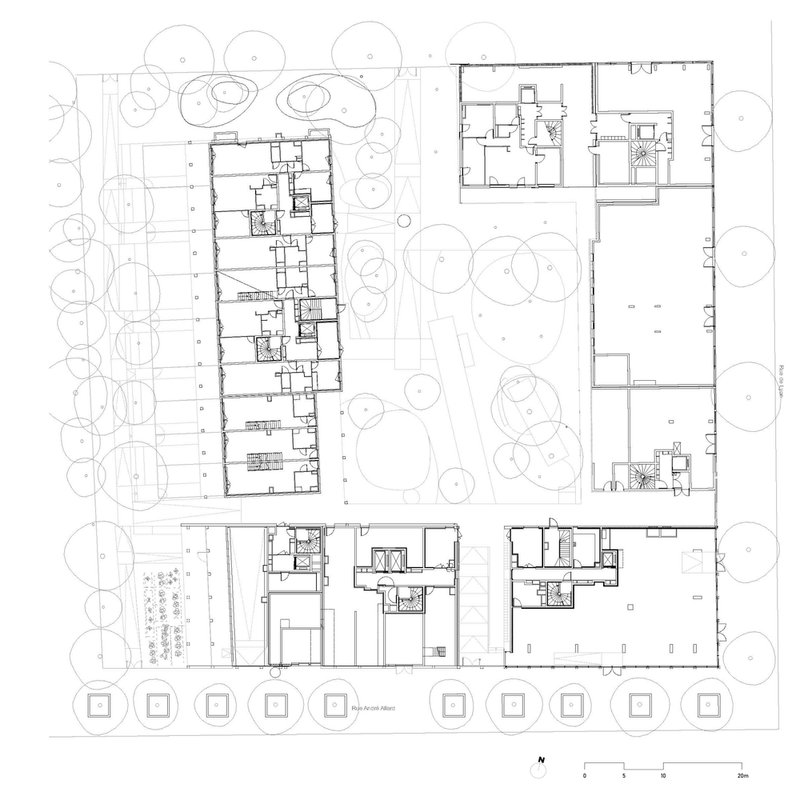
The Alpha XXL Mediterranean Mixed Block is an innovative architectural project designed by Rémy MARCIANO Architecte, located in the vibrant Euroméditerranée district of Marseille, France. The project features a harmonious blend of urban design with Mediterranean influences, delivering a mix of residential and commercial spaces. By integrating three architectural expressions, the design addresses both the urban challenges of the neighborhood and the broader Mediterranean context.





Architectural Concept and Design Elements
A Mediterranean Identity with White Concrete Grids
The Alpha XXL Mediterranean Mixed Block is defined by a structural grid in white concrete, which is central to its Mediterranean identity. This grid not only provides an aesthetic element but also plays a functional role by framing the vast surrounding landscape. The use of thick, shadowed loggias, combined with the rhythmic porosity of the façade, creates a dialogue between the built environment and nature. The design celebrates the region’s unique architectural language while providing a modern, sustainable living space.




Integrating the Landscape: Creating a Connection with Nature
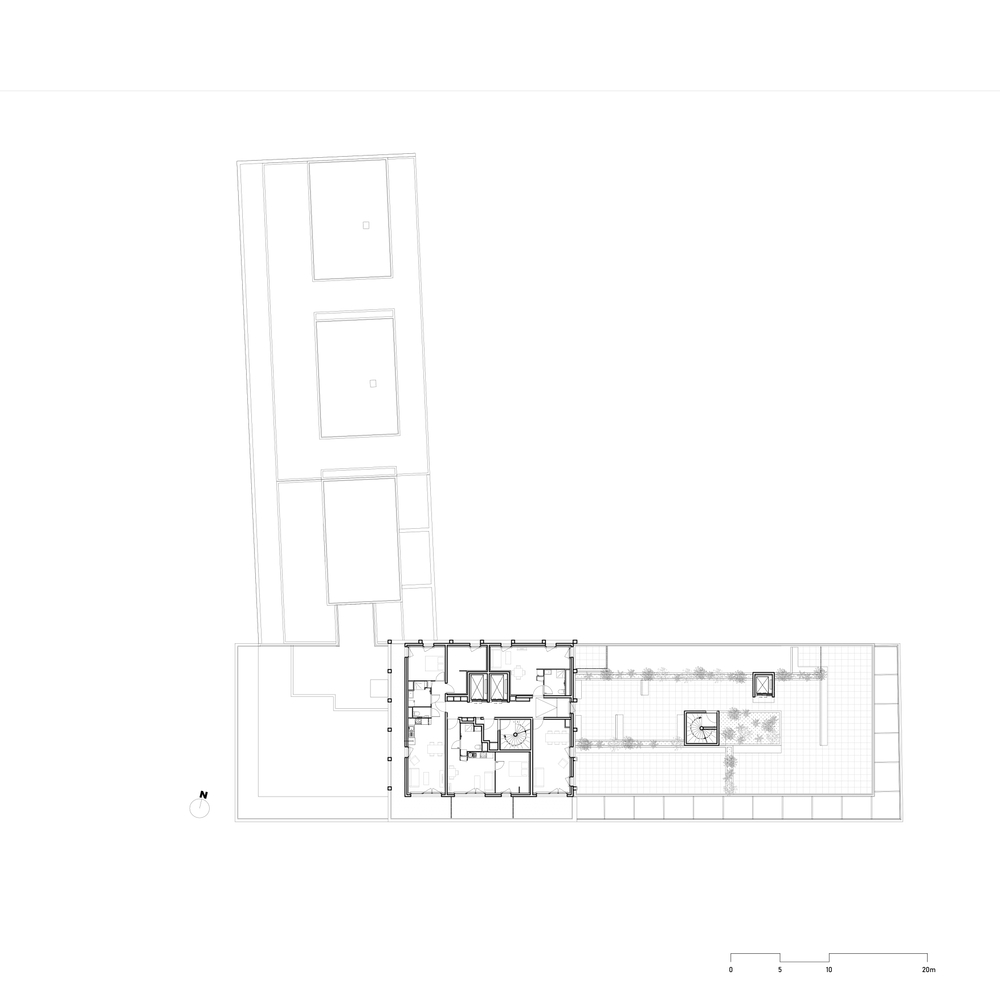
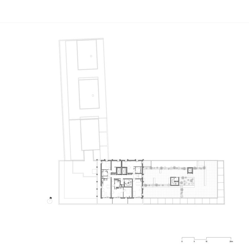
The design ensures a seamless integration with the natural surroundings. The building’s circulation spaces, including vegetable gardens, green terraces, and inner gardens, foster a holistic environment that encourages a close relationship with nature. This consideration of landscape design within the urban block enhances the quality of life for the residents while also acknowledging the importance of sustainability in modern architecture.




A Dual Approach to Scale: Urban and Domestic
Alpha XXL embraces two distinct architectural scales. The first, an urban scale, caters to the new neighborhood’s dynamics, connecting to local streets like Crottes and Rue de Lyon. The second, the more intimate domestic scale, is reflected in the layout of white concrete-roofed houses and the pathways that flow through the development. These pathways connect the public spaces to the inner garden, creating a comfortable and accessible living experience for residents.





Sustainable Design and Construction Techniques
Low-Carbon White Concrete
A key feature of the Alpha XXL design is its use of low-carbon white concrete, which plays a vital role in reducing the environmental impact of the building. Poured on-site, this concrete was crafted with sustainability in mind, offering both structural integrity and aesthetic appeal. The process of casting the white concrete was particularly challenging at the upper levels of the building, where a crenelated matrix was incorporated to create a striking visual element.





Implementing an Eco-Friendly Urban Ecosystem
The development goes beyond traditional architecture by incorporating elements that align with sustainable urban ecosystems. With dedicated spaces like a vegetable garden and green terraces, the project fosters environmental responsibility while encouraging community interaction. The design includes multiple shared spaces, including a 200-square-meter shared terrace and a communal room for residents to gather, ensuring a sense of community and collaboration.




A Mixed-Use Project for the Future
Alpha XXL Mediterranean Mixed Block represents a bold vision for contemporary Mediterranean architecture, blending urban functionality with ecological sensitivity. The project offers 148 homes of various typologies, including cross-through apartments with views of both the city and the sea, ground-floor duplexes with private gardens, and rooftop houses. Additionally, the building provides commercial spaces and common areas that encourage community living and sustainable practices.


By addressing both the physical and social needs of its residents, Alpha XXL is a perfect example of modern mixed-use architecture that balances the demands of urban living with the serenity of Mediterranean landscapes.

All Photographs are works of Stéphane Aboudaram | WE ARE CONTENT(S)
Popular Articles
Popular articles from the community
Atelier Macri Concept Store Interior Design by CASE-REAL
Atelier Macri store features a "ko" counter, walnut wood details, cork displays, blending retail, gallery, and seamless customer experiences.
Solar Steam: A Climate-Responsive Architecture That Redefines the Monument
A climate-responsive memorial architecture that transforms heat, decay, and time into a living system reflecting humanity’s ecological impact.
Fifth NRE Jazz Club – De Bever Architecten: Eindhoven’s Revitalized Cultural Hub
Historic gas factory transformed into Fifth NRE Jazz Club blending modern sustainability, jazz culture, dining, and heritage architecture seamlessly.
Similar Reads
You might also enjoy these articles
The Ken Roberts Memorial Delineation Competition (Krob)
As the most senior architectural drawing competition currently in operation anywhere in the world, it draws hundreds of entries each year, awarding the very best submissions in a series of medium-based categories.
Waterfront Redevelopment and Urban Revitalization in Mumbai: Forging a New Dawn for Darukhana
A transformative waterfront redevelopment project reimagining Darukhana’s shipbreaking heritage into an inclusive urban future.
OUT-OF-MAP: A Call for Postcards on Feminist Narratives of Public Space
Rhizoma Design and Research Lab invites artists, designers, architects, researchers, and students to reflect on how feminist perspectives can reshape public space. Selected works will be exhibited in Barcelona, October 2026. Submissions open until 15 April 2026.
Documentation Work on Buddhist Wooden Temple
Architectural syncretism and cultural hybridity: A comparative study of the Buddhist temples in Chattogram Hill tracks
Explore Architecture Competitions
Discover active competitions in this discipline
The International Standard for Design Portfolios
The Global Benchmark for Architecture Dissertation Awards
The Global Benchmark for Graduation Excellence
Challenge to reimagine the Iron Throne
Comments (0)
Please login or sign up to add comments
No comments yet. Be the first to comment!