An Architectural Haven in Harmony with Nature: Atelier L'Abri Presents Schnee-Eule
Can Atelier L'Abri's Schnee-Eule Design be the Perfect Blend of Functionality and Aesthetic Appeal?

Escape to Nature's Tranquility: Discover Atelier L'Abri's Schnee-Eule Chalet
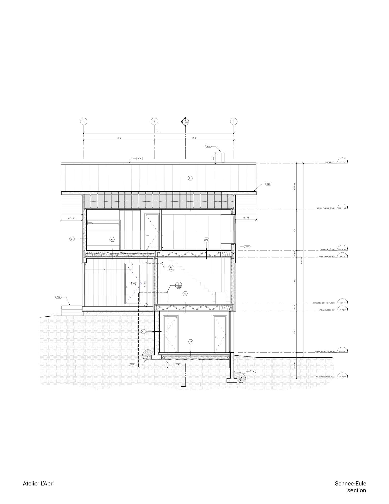
Nestled in the serene forest of Morin-Heights, Quebec, the Schnee-Eule chalet offers a haven for a family of four seeking solace in the beauty of the natural world. Drawing inspiration from Austrian Alpine architecture, this enchanting retreat harmoniously combines functionality with its idyllic surroundings. The name itself, Schnee-Eule, meaning "snowy owl" in German, evokes images of this majestic white bird, perfectly adapted to the winter landscape.
A testament to thoughtful design, the chalet's square plan emphasizes compactness, minimizing its footprint and blending seamlessly into the environment. The vertical volume ingeniously places the bedrooms on the upper floor, allowing occupants to slumber among the treetops. Reflecting the family's passion for outdoor pursuits, the lower floor features a dedicated gear room, granting direct access to cross-country skiing and mountain biking trails. To further bridge the gap between indoor and outdoor living, a spacious terrace and screened veranda face south, inviting a seamless connection to the surrounding splendour.
The chalet's exterior boasts white wood cladding, arranged vertically to effortlessly merge with the winter landscape. Horizontal subdivisions pay homage to traditional alpine huts, complemented by a double-pitched roof and generous overhangs. Inside, a tranquil and inviting atmosphere prevails, bathed in natural light streaming through expansive bay windows. The living area, centred around a cosy woodstove, beckons relaxation, while the master bedroom offers a dedicated reading nook. Adding to its allure, the house features bespoke furniture meticulously crafted by Inat, a Montreal-based woodworker.
The Schnee-Eule chalet epitomizes the perfect synergy between architecture and nature, creating an oasis of tranquillity for those seeking respite from the bustling world. Immerse yourself in the calm embrace of nature's beauty and embark on a journey of serenity within this architectural masterpiece.






















Popular Articles
Popular articles from the community
Solar Steam: A Climate-Responsive Architecture That Redefines the Monument
A climate-responsive memorial architecture that transforms heat, decay, and time into a living system reflecting humanity’s ecological impact.
Treehouse Apartment: A Warm Timber Interior Blending Craft, Play, and Contemporary Living
Warm timber apartment with integrated treehouse, combining natural materials, craftsmanship, and playful design to create a flexible, family-oriented living environment.
Fifth NRE Jazz Club – De Bever Architecten: Eindhoven’s Revitalized Cultural Hub
Historic gas factory transformed into Fifth NRE Jazz Club blending modern sustainability, jazz culture, dining, and heritage architecture seamlessly.
A Contemporary Take on Iranian Residential Architecture
A modern interior design in Mashhad that reinterprets brick, light, and spatial flow to create a warm, contemporary residential architecture.
Similar Reads
You might also enjoy these articles
SOM LAND Hotel by RooMoo: A Sustainable Retreat Rooted in Nature and Local Craft
Sustainable boutique hotel in Shanghai blending adaptive reuse, natural materials, vernacular craftsmanship, and slow living within a serene countryside landscape.
Zhuxi Wonderland: Reimagining Traditional Chinese Gardens by Doarchi Architects
Zhuxi Wonderland by Doarchi Architects reinterprets traditional Yangzhou gardens, integrating courtyards, pavilions, and tea houses in modern cultural design.
Doble Soga House: A Contemporary Brick Residence Rooted in Landscape in Quito, Ecuador
Brick house in Quito integrating nature, flexible living spaces, exposed materials, and rooftop terrace, creating warm contemporary architecture for modern family life.
Al Gharra Mosque in Medina Redefining Contemporary Islamic Architecture
Minimalist Medina mosque using concrete, light, and landscape to reinterpret Islamic worship spaces through symbolic spiritual transitions and contemporary architecture.
Explore Architecture Competitions
Discover active competitions in this discipline
The International Standard for Design Portfolios
The Global Benchmark for Architecture Dissertation Awards
The Global Benchmark for Graduation Excellence
Challenge to reimagine the Iron Throne
Comments (0)
Please login or sign up to add comments
No comments yet. Be the first to comment!