Angkor Market by UAD Architects: A Sustainable Design Balancing Heritage and Modernity
A vibrant market blending Khmer architectural heritage and sustainability, Angkor Market redefines urban spaces in Siem Reap.
A New Urban Icon in Siem Reap
Angkor Market, designed by UAD Architects, is a contemporary architectural marvel located on Preah Sihanouk Avenue, Siem Reap, Cambodia. This two-story red-brick market not only serves as a shopping hub but also bridges the cultural and historical essence of its iconic neighborhood, which includes landmarks like the Angkor National Museum and the historic Raffles Grand Hotel d'Angkor.


Location and Context
Strategically positioned near the northern route to Angkor Wat, a UNESCO World Heritage Site, Angkor Market connects the city's downtown with its rich heritage zones. Its design embraces the area's historic charm while filling a void in the urban fabric, creating a vibrant community space.



Design Philosophy: A Harmony of Culture and Functionality
The design by Mengly Khuth and Visal Nuon focuses on sustainability and cultural integration. It reflects Khmer architecture through the use of locally sourced materials like red bricks and handcrafted tiles. This approach not only ensures durability but also celebrates Cambodia’s rich artisanal heritage.



Material Choices and Sustainability
- Red Brick Facade: The market's signature wavy brick facade exudes timelessness and strength, while its unique bonding technique enhances structural integrity.
- Locally Sourced Tiles: Handcrafted Khmer tiles were chosen for their aesthetic and practical qualities, creating a balance between tradition and innovation.
- Natural Integration: Palm trees at the street level and a tropical garden bring a lush, inviting ambiance to the structure.




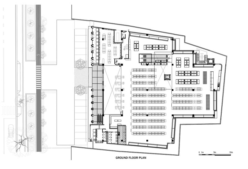
Interior Design: A Blend of Utility and Aesthetic
Inside, the market features colorful terrazzo flooring, strategic lighting, and high ceilings, which elevate the shopping experience. Natural light filters through latticework, creating an interplay of shadows that adds warmth and depth to the space.


Community and Commerce: Supporting Local Farmers
Angkor Market is more than a commercial space; it is a community-centric initiative supporting local farmers from Kulen Mountain. By dedicating areas to fresh produce and locally sourced goods, the market connects consumers with the region’s agricultural roots.

Diverse Offerings
- Grocery stores, pharmacies, and household goods create a one-stop shop for residents.
- The design ensures easy navigation through thoughtfully placed color-coded areas and signage.


Architectural Highlights
- Facade Design: The exposed brick facade combines modern aesthetics with traditional Khmer motifs.
- Spatial Experience: High ceilings and open spaces foster a sense of grandeur and ease.
- Lighting and Ambiance: A mix of natural light and strategically placed fixtures enhance visibility and create a welcoming atmosphere.


A Gathering Place for the Future
Angkor Market redefines the shopping experience by merging practicality with cultural and environmental consciousness. It stands as a beacon of Siem Reap’s commitment to blending tradition with progress, offering a space that is functional, beautiful, and deeply connected to its roots.


UAD Architects' Angkor Market is a testament to how thoughtful design can transform urban spaces. With its sustainable materials, cultural resonance, and focus on community, the market is poised to become a landmark of contemporary Cambodian architecture.

All photographs are work of Oudompheaktra Ang
Popular Articles
Popular articles from the community
The Ken Roberts Memorial Delineation Competition (Krob)
As the most senior architectural drawing competition currently in operation anywhere in the world, it draws hundreds of entries each year, awarding the very best submissions in a series of medium-based categories.
Treehouse Apartment: A Warm Timber Interior Blending Craft, Play, and Contemporary Living
Warm timber apartment with integrated treehouse, combining natural materials, craftsmanship, and playful design to create a flexible, family-oriented living environment.
Fifth NRE Jazz Club – De Bever Architecten: Eindhoven’s Revitalized Cultural Hub
Historic gas factory transformed into Fifth NRE Jazz Club blending modern sustainability, jazz culture, dining, and heritage architecture seamlessly.
A Contemporary Take on Iranian Residential Architecture
A modern interior design in Mashhad that reinterprets brick, light, and spatial flow to create a warm, contemporary residential architecture.
Similar Reads
You might also enjoy these articles
The Ken Roberts Memorial Delineation Competition (Krob)
As the most senior architectural drawing competition currently in operation anywhere in the world, it draws hundreds of entries each year, awarding the very best submissions in a series of medium-based categories.
Waterfront Redevelopment and Urban Revitalization in Mumbai: Forging a New Dawn for Darukhana
A transformative waterfront redevelopment project reimagining Darukhana’s shipbreaking heritage into an inclusive urban future.
OUT-OF-MAP: A Call for Postcards on Feminist Narratives of Public Space
Rhizoma Design and Research Lab invites artists, designers, architects, researchers, and students to reflect on how feminist perspectives can reshape public space. Selected works will be exhibited in Barcelona, October 2026. Submissions open until 15 April 2026.
Documentation Work on Buddhist Wooden Temple
Architectural syncretism and cultural hybridity: A comparative study of the Buddhist temples in Chattogram Hill tracks
Explore Architecture Competitions
Discover active competitions in this discipline
The International Standard for Design Portfolios
The Global Benchmark for Architecture Dissertation Awards
The Global Benchmark for Graduation Excellence
Challenge to reimagine the Iron Throne
Comments (0)
Please login or sign up to add comments
No comments yet. Be the first to comment!