Appels architekten unveils a stunning new design for bornholmer strasse 6
What inspired Appels Architekten's innovative design for Bornholmer Strasse 6, and how will it impact the surrounding area?

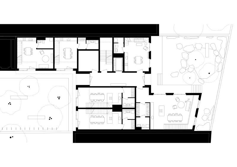
The recently constructed 24-apartment building is located at the back of the former Imperial Post Office Berlin Prenzlauer Berg (N113). It replicates the pre-war building's footprint, thus completing the block.
Its rugged construction blends seamlessly into the historic townhouses, enclosing two courtyards with distinctive outdoor areas on the extended plot.






















