Aquapark Sport and Relaxation Center Kyjov: A Harmonious Fusion of Design and Leisure
Aquapark Kyjov by SENAA architekti blends modern architecture with leisure, offering a holistic aquatic experience for all ages.
A New Chapter in Kyjov’s Aquatic Legacy
The Aquapark Sport and Relaxation Center in Kyjov, Czech Republic, designed by SENAA architekti, masterfully merges modern architecture with leisure amenities. What began as a simple modernization of an outdoor swimming pool has evolved into a comprehensive indoor and outdoor aquatic facility. This thoughtfully designed space celebrates its historical roots while offering contemporary recreational experiences.







Integrating Architecture with Nature
Situated at the interface of Kyjov’s urban fabric and central park, the Aquapark seamlessly blends with its surroundings. The linear architecture runs parallel to Mezivodí Street, concluding in a forecourt that connects the pool with the city’s pedestrian and cycling routes. Enhanced by a rejuvenated alley of century-old trees, the new design encourages community interaction and outdoor relaxation.
The building’s facade, adorned with brick strips and gold-colored perforated metal, complements the greenery while maintaining a modern aesthetic. The full-surface glazing of the pool area establishes a visual connection between indoor and outdoor spaces, amplifying the sense of openness.







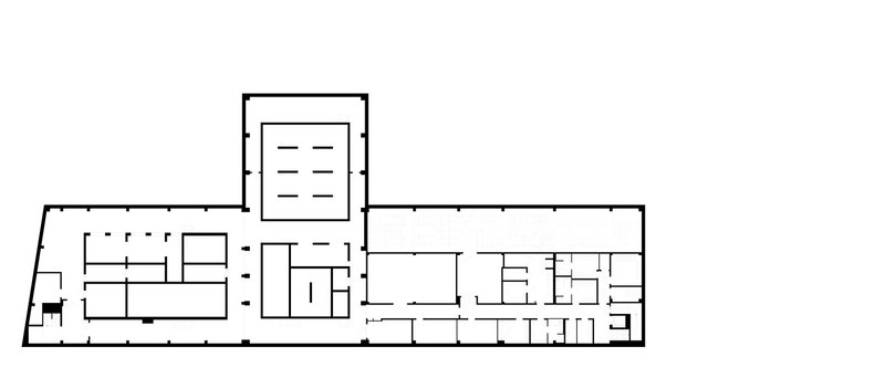
Designing for Recreation and Relaxation
The indoor pool area features three primary zones: a swimming pool, an adventure pool, and a wellness space. The main pool offers five 25-meter lanes, catering to fitness enthusiasts and competitive swimmers. Meanwhile, the adventure pool provides a variety of features, including massage benches, spouts, a water slide, and a whirlpool, making it a hub of family-friendly activities. Children can enjoy their own wading pool designed for safe water play.






Visitors to the wellness area can indulge in five saunas—tropical, salt, aroma, Turkish steam bath, and Finnish ceremonial sauna. These saunas are crafted to provide varying levels of heat and intimacy, complemented by a cooling pool and a serene relaxation room featuring a Barrisol starry sky. Three outdoor terraces offer tranquil spaces for unwinding amidst nature.





A Modernized Outdoor Experience
While the outdoor swimming pool retains its historic charm, new stainless-steel insertions have enhanced its functionality. The adventure pool features water slides, a basketball hoop, and bubble massage benches. A wading pool caters to younger visitors, while a 50-meter lap pool accommodates avid swimmers. Central to the outdoor area is an Aqua bar, ensuring refreshments are always within reach.









Sustainability and Future Expansion
The architectural design anticipates future development, with a phased plan to expand the pool's offerings over the next decade. By emphasizing sustainability and adaptability, SENAA architekti has created a facility that will continue to meet the evolving needs of the community.







Celebrating Community and Recreation
The Aquapark Sport and Relaxation Center Kyjov is more than a swimming facility—it’s a testament to thoughtful design that prioritizes community engagement and environmental harmony. With its blend of leisure, wellness, and architectural excellence, it promises to be a cherished landmark in Kyjov for years to come.






All Photographs are work of BoysPlayNice
Popular Articles
Popular articles from the community
Paco Oria Estudio Rebuilds a 1949 Valencian Town House Around Timber, Terracotta, and a New Interior Patio
In Godella, Spain, a semi-detached house from the postwar era is stripped to its party walls and rebuilt with wood and ceramics.
boq architekti Fits a Gabled Family House onto a Tiny Moravian Hillside Plot with No Room for a Garden
A 115 square meter home in South Moravia trades a garden for a rooftop terrace and a fully glazed facade facing the village below.
Biophilic Architecture and Regenerative Stadium Design: Biophilia Lagos by Rachel George
A regenerative stadium in Lagos transforms landfill into a living ecosystem through biophilic architecture, waste reuse, and environmental healing.
Architects Group RAUM Stacks Offset White Volumes into a Compact Office Tower in Busan
A 524-square-meter building on a tight corner lot in Haeundae plays with sunlight rights and shifting floor plates to create generous terraces.
Similar Reads
You might also enjoy these articles
Olio Towers: A Mid-Rise for Performers That Fuses Housing, Rehearsal, and Stage
Located blocks from Houston's Theater District, this modular tower stacks living units around a central performance atrium.
Oasis: Modular Green Housing Carved into Dhaka's Urban Fabric
A shortlisted Plugin Housing entry reclaims unauthorized settlements in Dhaka with stepped concrete volumes, green roofs, and ventilation-driven design.
Black Hole: A Floating Megastructure for the Post-Physical Era
Emiliano Mazzarotto envisions a spherical, self-scaling arena where e-sports, digital hotels, and holographic stadiums replace traditional public space.
Compact & Sustainable Living in Piraeus: A Four-Level Family Home Built Around Light and Air
A narrow townhouse in one of Greece's densest port cities uses a central atrium and passive strategies to house three generations under one roof.
Explore Architecture Competitions
Discover active competitions in this discipline
The International Standard for Design Portfolios
The Global Benchmark for Architecture Dissertation Awards
The Global Benchmark for Graduation Excellence
Challenge to reimagine the Iron Throne
Comments (0)
Please login or sign up to add comments
No comments yet. Be the first to comment!